- Typ projektuWolnostojący
- StylTradycyjny
- Powierzchnia użytkowa77.71 m²
- KondygnacjeParterowy, z poddaszem
- GarażBez garażu
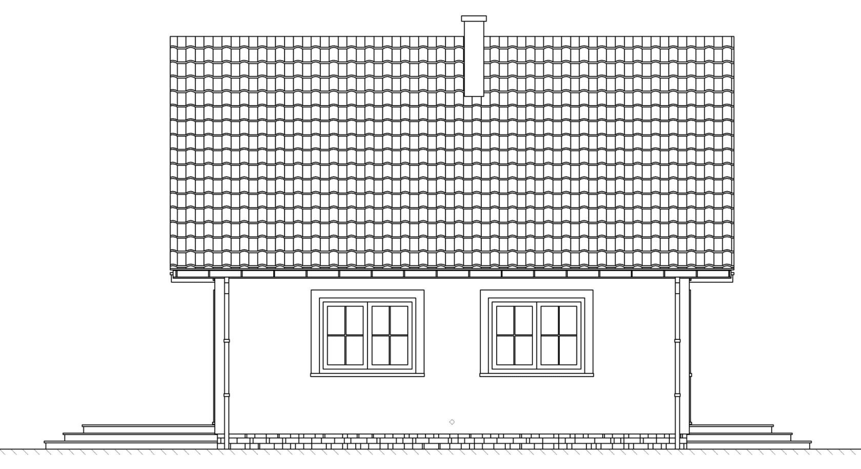
- DachDwuspadowy
- Odbicie lustrzaneTak
- Czas realizacji7 dni Zobacz więcej >
Opis
Zgodność z WT 2021 i Eurokodami
Ze względu na dostosowywanie projektu do standardu WT 2021, czas realizacji może się różnić od standardowego.
Skontaktuj się z nami aby poznać szczegóły dotyczące wybranego projektu.
Rzuty
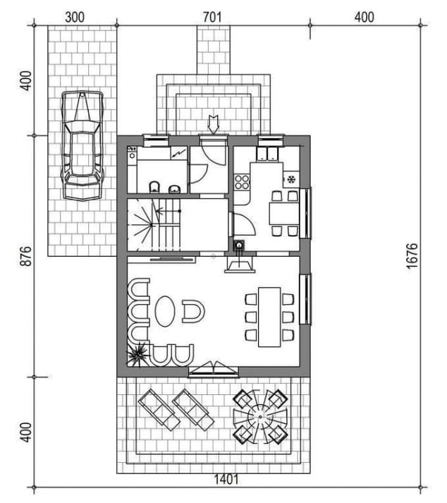
Rzut parteru
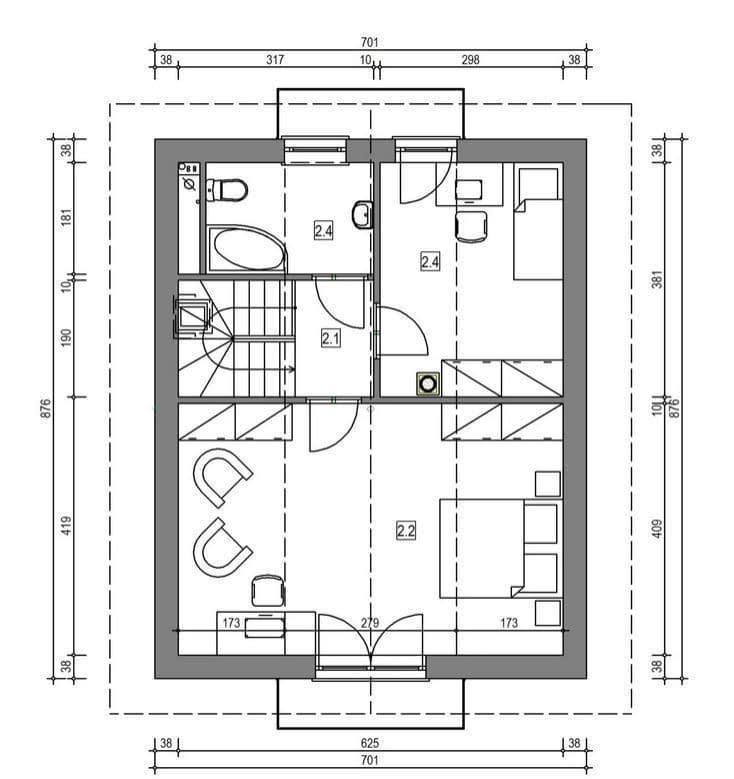
Rzut poddasza
Przekrój
Usytuowanie na działce
Dane techniczne
- Powierzchnia użytkowa77.71 m²
- Powierzchnia zabudowy61.41 m²
- Liczba pokoi2
- Kubatura353.53 m³
- Długość domu8.76 m
- Szerokość domu7.01 m
- Wysokość domu7.68 m
- Minimalne wymiary działki16.76 x 14.01m
- GarażBez garażu
- Rodzaj dachuDwuspadowy
Instalacja grzewcza
- Instalacja opcjonalna
Zawartość projektu
Co zawiera projekt:
Projekt arch. - budowlany:
-część opisowa i rysunkowa:
- elewacje,
- rzuty,
- przekroje.
Projekt techniczny:
- konstrukcja:
- rzuty,
- przkroje,
- szczegóły konstrukcyjne
- zestawienie głównych materiałów konstr.
- założenia i wyniki obliczeń stat. – wytrz.
- instalacje: – schematy (z doborem urządzeń):
- ogrzewania,
- wentylacji,
- wody,
- kanalizacji,
- elektr.,
- dwie charakterystyki energetyczne dla dwóch źródeł ciepła.
Dodatki
Bezpłatne dodatki
GratisZestaw umów
GratisZmiany w projekcie
GratisTablica budowy
GratisDziennik budowy












