- Typ projektuWolnostojący
- StylTradycyjny
- Powierzchnia użytkowa95.23 m²
- KondygnacjeParterowy, z poddaszem
- GarażBez garażu
- DachDwuspadowy
- Odbicie lustrzaneTak
- Czas realizacji7 dni Zobacz więcej >
Opis
Zgodność z WT 2021 i Eurokodami
Ze względu na dostosowywanie projektu do standardu WT 2021, czas realizacji może się różnić od standardowego.
Skontaktuj się z nami aby poznać szczegóły dotyczące wybranego projektu.
Rzuty
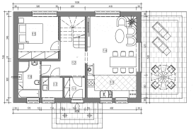
Rzut parteru
- 1.1 Przedsionek2.69
- 1.2 Hol i schody11.35
- 1.3 Aneks kuchenny7.36
- 1.4 Pokój dzienny18.88
- 1.5 Pokój11.08
- 1.6 Łazienka5.20
- 1.7 Pom. techniczne2.79
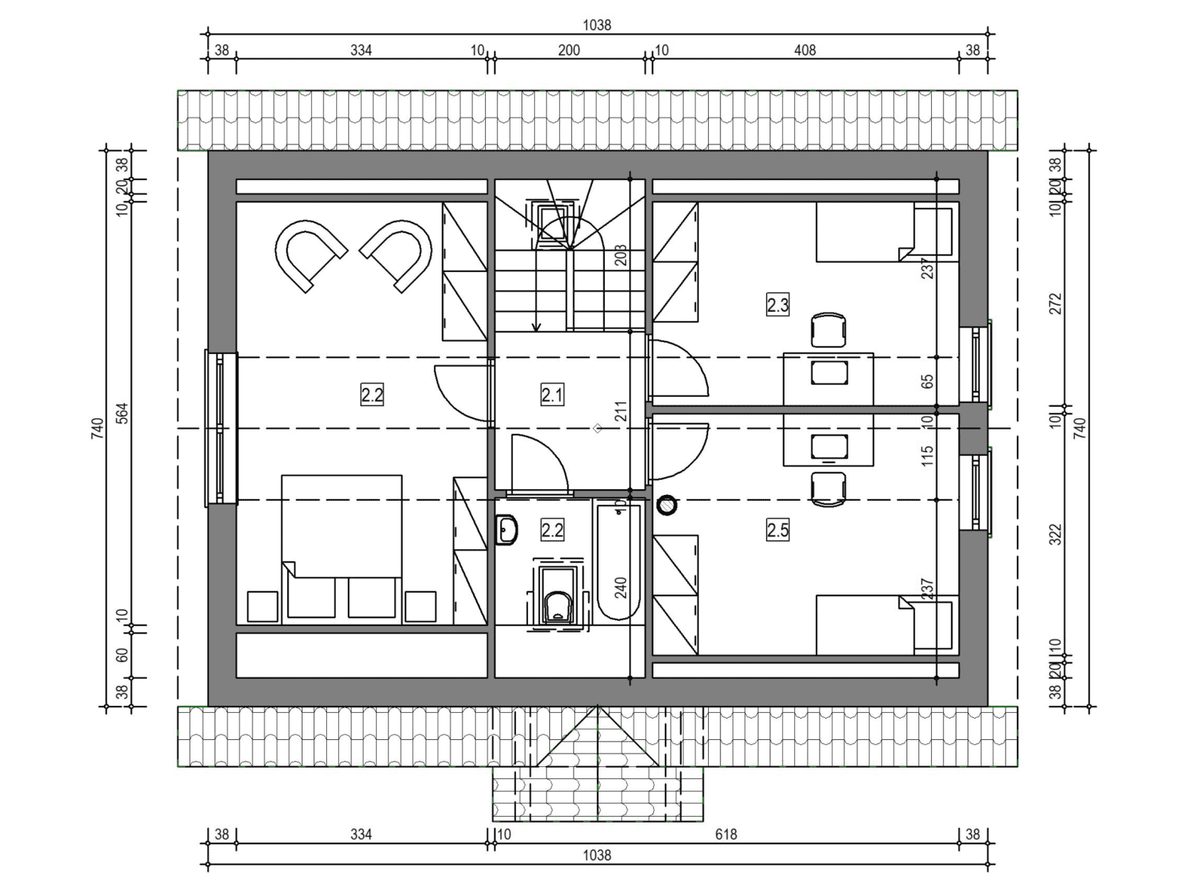
Rzut poddasza
Usytuowanie na działce
Przekrój
Dane techniczne
- Powierzchnia użytkowa95.23 m²
- Powierzchnia zabudowy79.34 m²
- Liczba pokoi5
- Kubatura419.35 m³
- Długość domu7.4 m
- Szerokość domu10.38 m
- Wysokość domu7.23 m
- PoddaszeUżytkowe
- Minimalne wymiary działki15.4 x 17.38m
- GarażBez garażu
- Rodzaj dachuDwuspadowy
Instalacja grzewcza
- Instalacja opcjonalna
Zawartość projektu
Co zawiera projekt:
Projekt arch. - budowlany:
-część opisowa i rysunkowa:
- elewacje,
- rzuty,
- przekroje.
Projekt techniczny:
- konstrukcja:
- rzuty,
- przkroje,
- szczegóły konstrukcyjne
- zestawienie głównych materiałów konstr.
- założenia i wyniki obliczeń stat. – wytrz.
- instalacje: – schematy (z doborem urządzeń):
- ogrzewania,
- wentylacji,
- wody,
- kanalizacji,
- elektr.,
- dwie charakterystyki energetyczne dla dwóch źródeł ciepła.
Dodatki
Bezpłatne dodatki
GratisZestaw umów
GratisZmiany w projekcie
GratisTablica budowy
GratisDziennik budowy












