Projekt domu domek Mokka (053 ES)
Promocja ważna do
17-02-2026
- Typ projektuWolnostojący
- StylTradycyjny
- Powierzchnia użytkowa114.19 m²
- KondygnacjeParterowy
- GarażBez garażu
- DachCzterospadowy
- Odbicie lustrzaneTak
- Czas realizacji7 dni Zobacz więcej >
Opis
Zgodność z WT 2021 i Eurokodami
Ze względu na dostosowywanie projektu do standardu WT 2021, czas realizacji może się różnić od standardowego.
Skontaktuj się z nami aby poznać szczegóły dotyczące wybranego projektu.
Rzuty
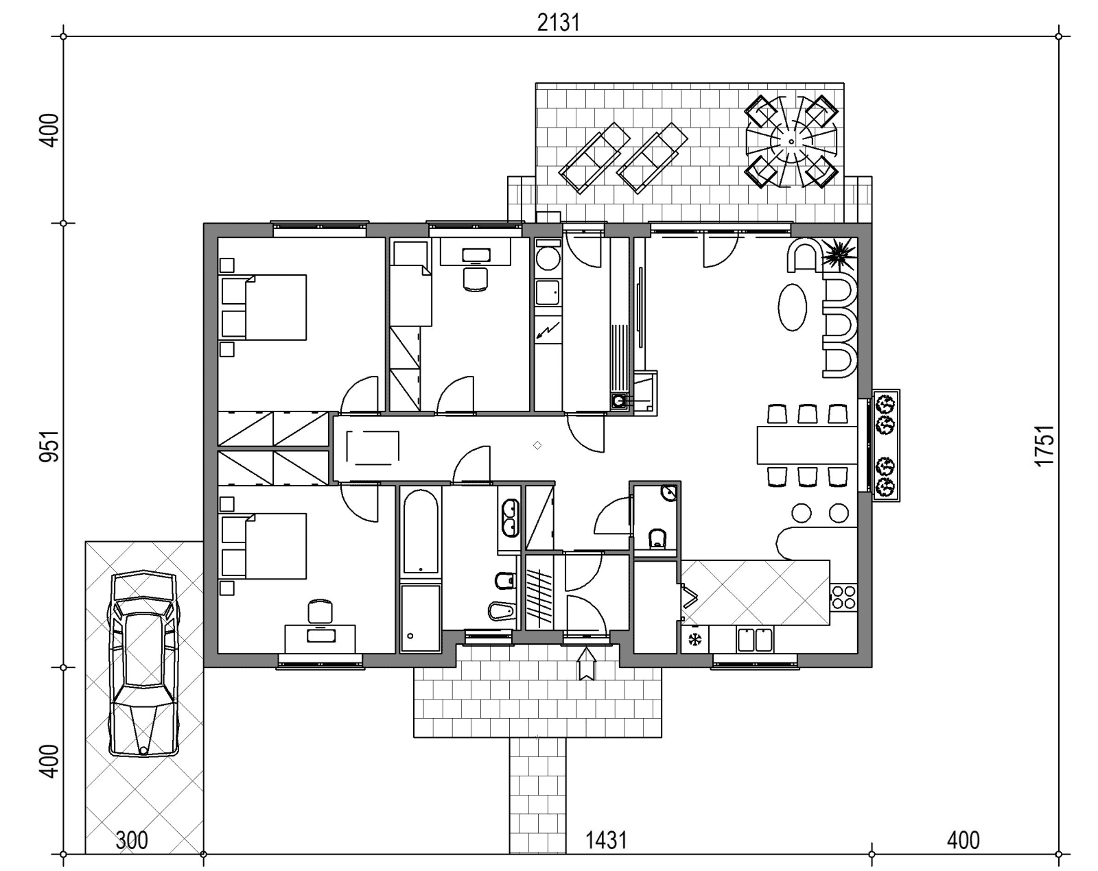
Rzut parteru
- 1.1 Przedsionek3.50
- 1.2 Komunikacja11.84
- 1.3 WC1.36
- 1.4 Spiżarka1.74
- 1.5 Aneks kuchenny13.86
- 1.6 Pokój dzienny z jadalnią24.80
- 1.7 Pom. techniczne7.46
- 1.8 Sypialnia 111.03
- 1.9 Sypialnia 214.97
- 1.10 Sypialnia 315.28
- 1.11 Łazienka8.35
Przekrój
Usytuowanie na działce
Dane techniczne
- Powierzchnia użytkowa114.19 m²
- Powierzchnia zabudowy136.9 m²
- Liczba łazienek2
- Liczba pokoi4
- Kubatura520.22 m³
- Długość domu14.34 m
- Szerokość domu9.54 m
- Wysokość domu6.35 m
- Minimalne wymiary działki1751 x 2131m
- GarażBez garażu
- Rodzaj dachuCzterospadowy
Instalacja grzewcza
- Instalacja opcjonalna
Zawartość projektu
Co zawiera projekt:
Projekt arch. - budowlany:
-część opisowa i rysunkowa:
- elewacje,
- rzuty,
- przekroje.
Projekt techniczny:
- konstrukcja:
- rzuty,
- przkroje,
- szczegóły konstrukcyjne
- zestawienie głównych materiałów konstr.
- założenia i wyniki obliczeń stat. – wytrz.
- instalacje: – schematy (z doborem urządzeń):
- ogrzewania,
- wentylacji,
- wody,
- kanalizacji,
- elektr.,
- dwie charakterystyki energetyczne dla dwóch źródeł ciepła.
Dodatki
Bezpłatne dodatki
GratisZestaw umów
GratisZmiany w projekcie
GratisTablica budowy
GratisDziennik budowy











