Projekt domu A-101 z bali
Promocja ważna do
23-04-2026
- Typ projektuWolnostojący
- Powierzchnia użytkowa101.3 m²
- KondygnacjeParterowy, z poddaszem, z piwnicą
- GarażJednostanowiskowy
- Kąt nach. dachu40°
- Odbicie lustrzaneTak
- Czas realizacjido 10 dni roboczych Zobacz więcej >
Opis
Zgodność z WT 2021 i Eurokodami
Ze względu na dostosowywanie projektu do standardu WT 2021, czas realizacji może się różnić od standardowego.
Skontaktuj się z nami aby poznać szczegóły dotyczące wybranego projektu.
Opis projektu
Projekt domu A-101 „DOM KARSKA” – niewielki dom jednorodzinny z poddaszem i garażem Projekt A-101 „DOM KARSKA” to propozycja dla rodzin poszukujących funkcjonalnego domu jednorodzinnego parterowego z poddaszem użytkowym. Budynek został zaprojektowany z myślą o działkach o mniejszej szerokości – jego dach i bryła idealnie pasują do wąskich parceli. Układ funkcjonalny – komfort w niewielkiej formie Dom oferuje 4 ustawne pokoje oraz kuchnię, co czyni go idealnym rozwiązaniem dla rodziny 3–4-osobowej. Na parterze zaplanowano strefę dzienną z przestronnym salonem i jadalnią, które naturalnie łączą się z kuchnią. Z salonu można wyjść bezpośrednio do ogrodu, co sprzyja wspólnemu spędzaniu czasu na świeżym powietrzu. Poddasze mieszkalne to prywatna część domu. Znajdują się tu trzy sypialnie oraz łazienka, która pomieści zarówno wannę, jak i prysznic. Dzięki przemyślanemu rozkładowi wnętrz dom zapewnia wygodę wszystkim domownikom. Praktyczny garaż w bryle budynku W projekcie przewidziano również garaż jednostanowiskowy, połączony z domem. To praktyczne rozwiązanie, które zwiększa komfort codziennego użytkowania i doskonale sprawdza się w każdych warunkach pogodowych. Dom na wąską działkę – wygoda i styl Projekt domu A-101 „DOM KARSKA” wyróżnia się nie tylko funkcjonalnością, ale także tradycyjną i elegancką estetyką. Dzięki swojej kompaktowej formie świetnie nadaje się na działki o ograniczonej szerokości, zapewniając przy tym pełen komfort użytkowania.Rzuty
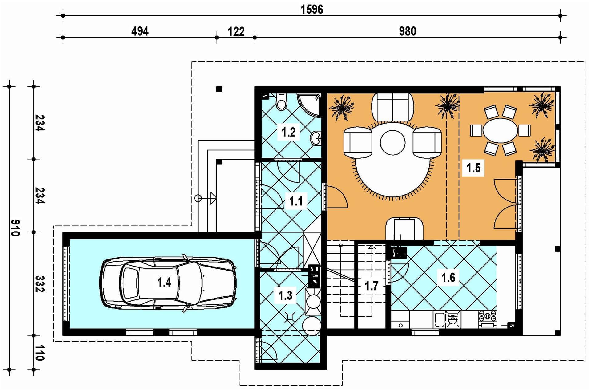
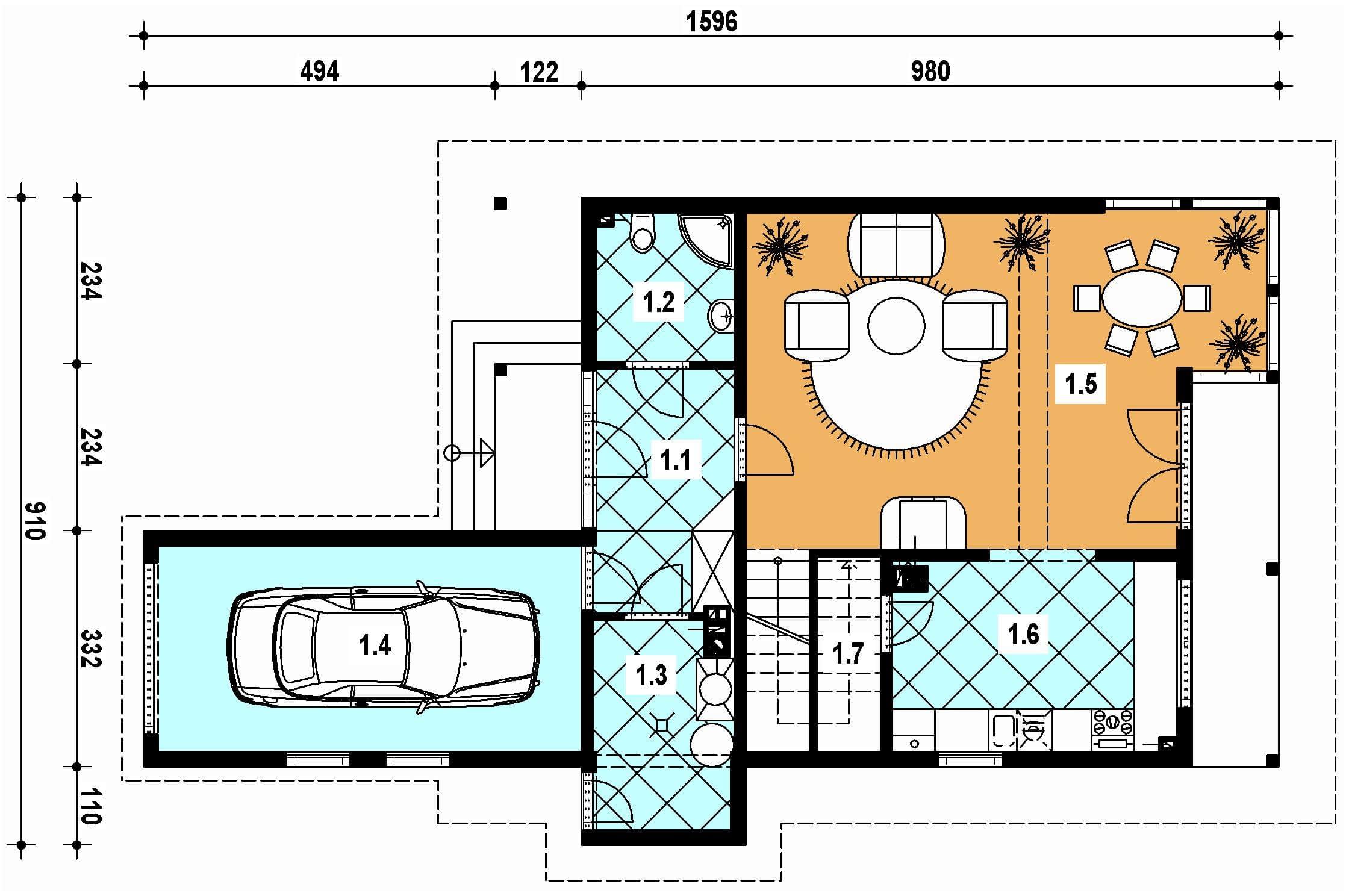
Parter
- wiatrołap 6.40 łazienka 3.80 kotłownia 4.90 garaż 0.00 pokój dzienny 30.80 kuchnia 10.30 klatka schodowa 2.600
Poddasze
Dane techniczne
- Powierzchnia użytkowa101.3 m²
- Powierzchnia zabudowy94.9 m²
- Kubatura613.4 m³
- Wysokość domu8.37 m
- Piwnicatak
- PoddaszeUżytkowe
- Minimalne wymiary działki17.5 x 24m
- GarażJednostanowiskowy
- Kąt nach. dachu40°
Zawartość projektu
Dokumentacja obejmuje 3 egzemplarze projektu architektoniczno-budowlanego oraz 3 teczki projektu technicznego.
Architektura
- Opis techniczny do części architektonicznej
- Część rysunkowa
- Zestawienie podstawowych materiałów
Konstrukcja
- Opis techniczny
- Obliczenia statyczne
- Schematy konstrukcyjne
Projekt wewnętrznej instalacji C.O.; WOD-KAN; GAZ
- Opis techniczny instalacji
- Zestawienie podstawowych materiałów
- Część rysunkowa
Projekt elektrycznych instalacji wewnętrznych
- Opis techniczny
- Część rysunkowa
Projektant dokonujący adaptacji projektu gotowego może wprowadzić w nim następujący zakres zmian bez naruszenia praw autorskich firmy:
- Zaprojektować użycie innych materiałów budowlanych na konstrukcję budynku {ściany i stropy} pod warunkiem zachowania wymagań konstrukcji i ochrony cieplnej budynku oraz jego elewacji.
- Wprowadzić zmiany w usytuowaniu niekonstrukcyjnych ścianek działowych i otworów drzwiowych wewnątrz domu.
- Wprowadzić zmiany materiałów wykończeniowych na zewnątrz oraz wewnątrz domu.
- Wprowadzić zmiany usytuowania i rodzaju armatury sanitarnej i instalacji elektrycznej.
- Wprowadzić częściowe lub całkowite podpiwniczenie budynku przy zachowaniu poziomu posadzki parteru na wysokości nie przekraczającej 60 cm ponad poziom terenu projektowanego.
- Przesuwać okna na elewacji pod warunkiem zachowania prawidłowej kompozycji elewacji polegające na zachowaniu wspólnej linii usytuowania okien nad sobą lub obok siebie.
- Projekt powiększenia lub zmniejszenia garażu może być wykonany przez projektanta adaptującego w zakresie adaptacji projektu gotowego do konkretnej działki budowlanej.
Wprowadzenie innych zmian do projektu wymaga uzyskania pisemnej zgody autora projektu, która jest wystawiana po uprzednim zgłoszeniu inwestora. Wszelkie zmiany należy nanieść na projekcie w kolorze czerwonym trwałą i czytelną techniką (lub wykonać rysunki zamienne)
Uwaga: Istnieje możliwość zakupu dodatkowego egzemplarza projektu.
Dodatki
Bezpłatne dodatki
GratisZestaw umów
GratisZmiany w projekcie
GratisTablica budowy
GratisDziennik budowy













