Projekt domu A-103 z bali
Promocja ważna do
23-04-2026
- Typ projektuWolnostojący
- Powierzchnia użytkowa113.7 m²
- KondygnacjeParterowy, z poddaszem, z piwnicą
- GarażJednostanowiskowy
- Kąt nach. dachu37°
- Odbicie lustrzaneTak
- Czas realizacjido 10 dni roboczych Zobacz więcej >
Opis
Zgodność z WT 2021 i Eurokodami
Ze względu na dostosowywanie projektu do standardu WT 2021, czas realizacji może się różnić od standardowego.
Skontaktuj się z nami aby poznać szczegóły dotyczące wybranego projektu.
Opis projektu
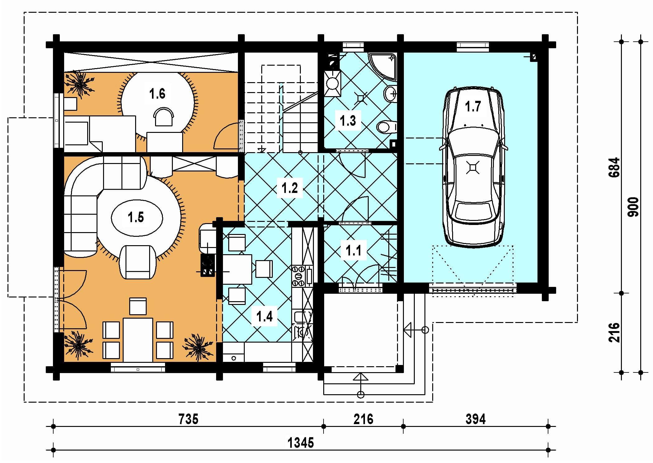
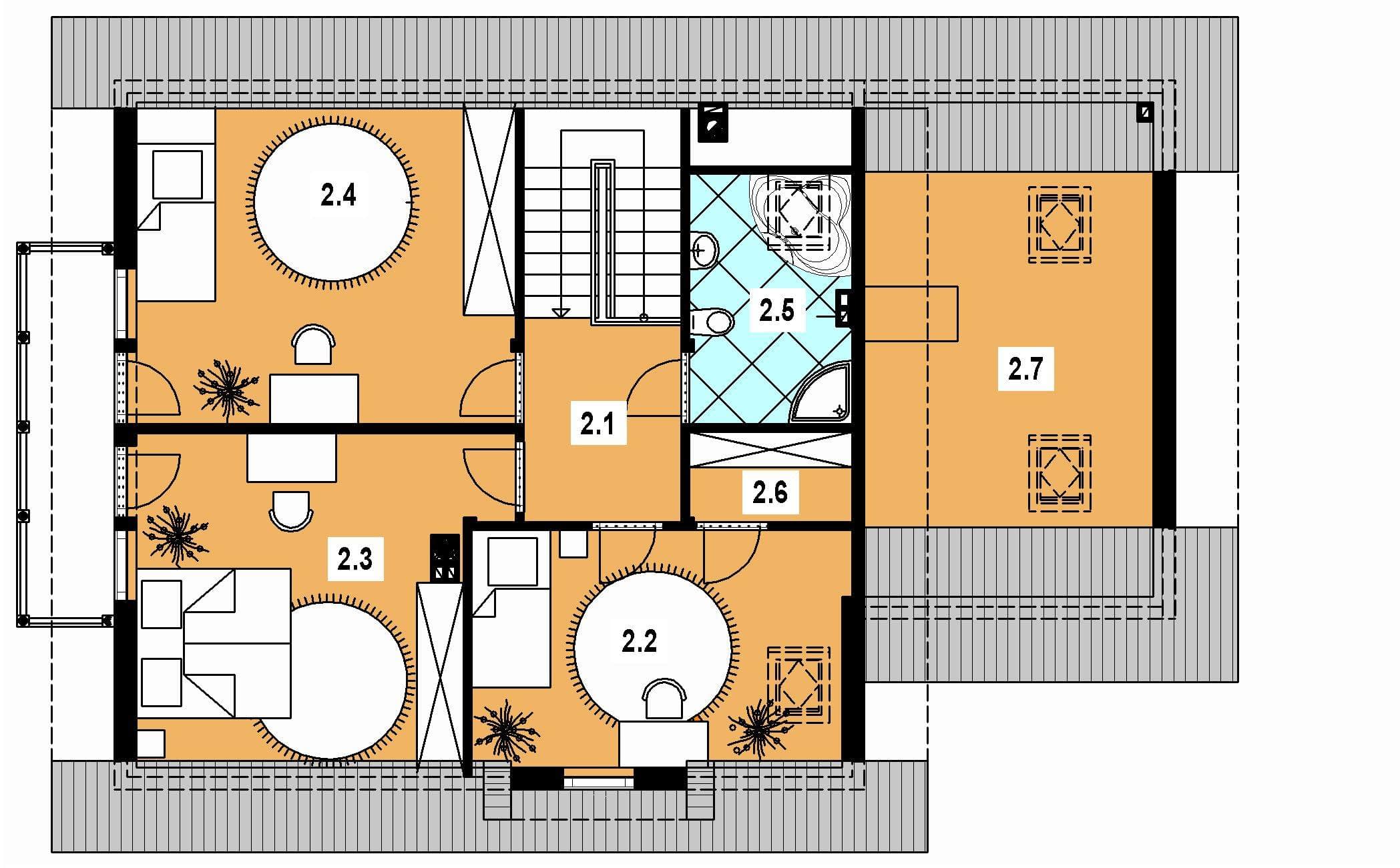
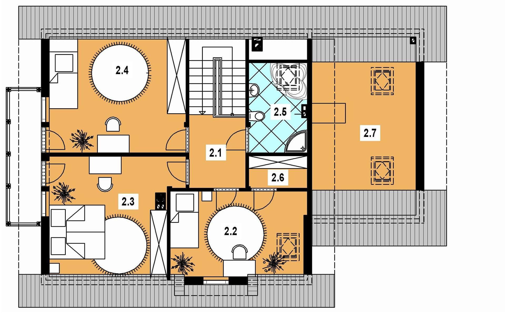
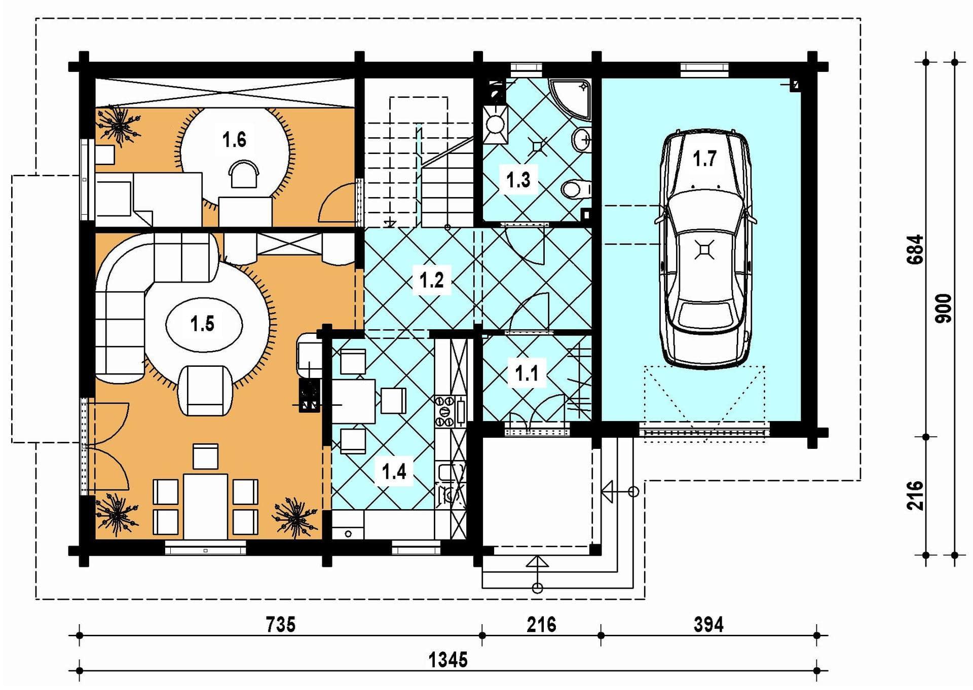
Projekt domu A-103 „DOM JARZĘBATA” – funkcjonalny dom jednorodzinny z poddaszem i garażem Projekt A-103 „DOM JARZĘBATA” to propozycja dla osób szukających komfortowego domu jednorodzinnego parterowego z poddaszem mieszkalnym i garażem jednostanowiskowym. To rozwiązanie łączy w sobie tradycyjny styl z nowoczesną funkcjonalnością, tworząc idealną przestrzeń dla 4–5-osobowej rodziny. Tradycyjna forma i wygodny układ Budynek wyróżnia się prostą, klasyczną bryłą, której lekkości dodaje dwuspadowy dach. Dzięki takiej architekturze dom doskonale wpasuje się zarówno w otoczenie miejskie, jak i podmiejskie czy wiejskie. Garaż został połączony z budynkiem, co gwarantuje wygodę użytkowania – niezależnie od pogody. Parter – serce rodzinnego życia Na parterze zaplanowano przestronną strefę dzienną. Salon z dużymi oknami tarasowymi wypełnia wnętrze naturalnym światłem i zachęca do wspólnego wypoczynku. Obok salonu znajduje się jadalnia z widokiem na ogród, a także funkcjonalna kuchnia, której układ umożliwia wygodne gotowanie. Atutem tej kondygnacji jest dodatkowy pokój – idealny jako gabinet, pokój gościnny lub przestrzeń do hobby. Poddasze – prywatna strefa mieszkańców Poddasze użytkowe zostało zaprojektowane z myślą o komforcie i prywatności domowników. Znajdują się tutaj trzy ustawne i dobrze doświetlone sypialnie, które zapewniają przytulne warunki do wypoczynku. Do dyspozycji mieszkańców jest również łazienka z miejscem na wannę, prysznic oraz dwie umywalki, co czyni ją wygodną dla całej rodziny. Garaż – praktyczne uzupełnienie projektu W bryle budynku przewidziano garaż jednostanowiskowy, który łączy się bezpośrednio z domem. To rozwiązanie szczególnie docenią rodziny korzystające na co dzień z samochodu – gwarantuje wygodny dostęp i zwiększa funkcjonalność domu. Projekt dla rodziny ceniącej komfort Projekt „DOM JARZĘBATA” A-103 to idealny wybór dla rodzin szukających praktycznego domu o tradycyjnej formie. Przemyślany układ, 5 pokoi, poddasze mieszkalne i garaż w bryle budynku sprawiają, że to dom, który łączy estetykę, wygodę i funkcjonalność w jednym.Rzuty
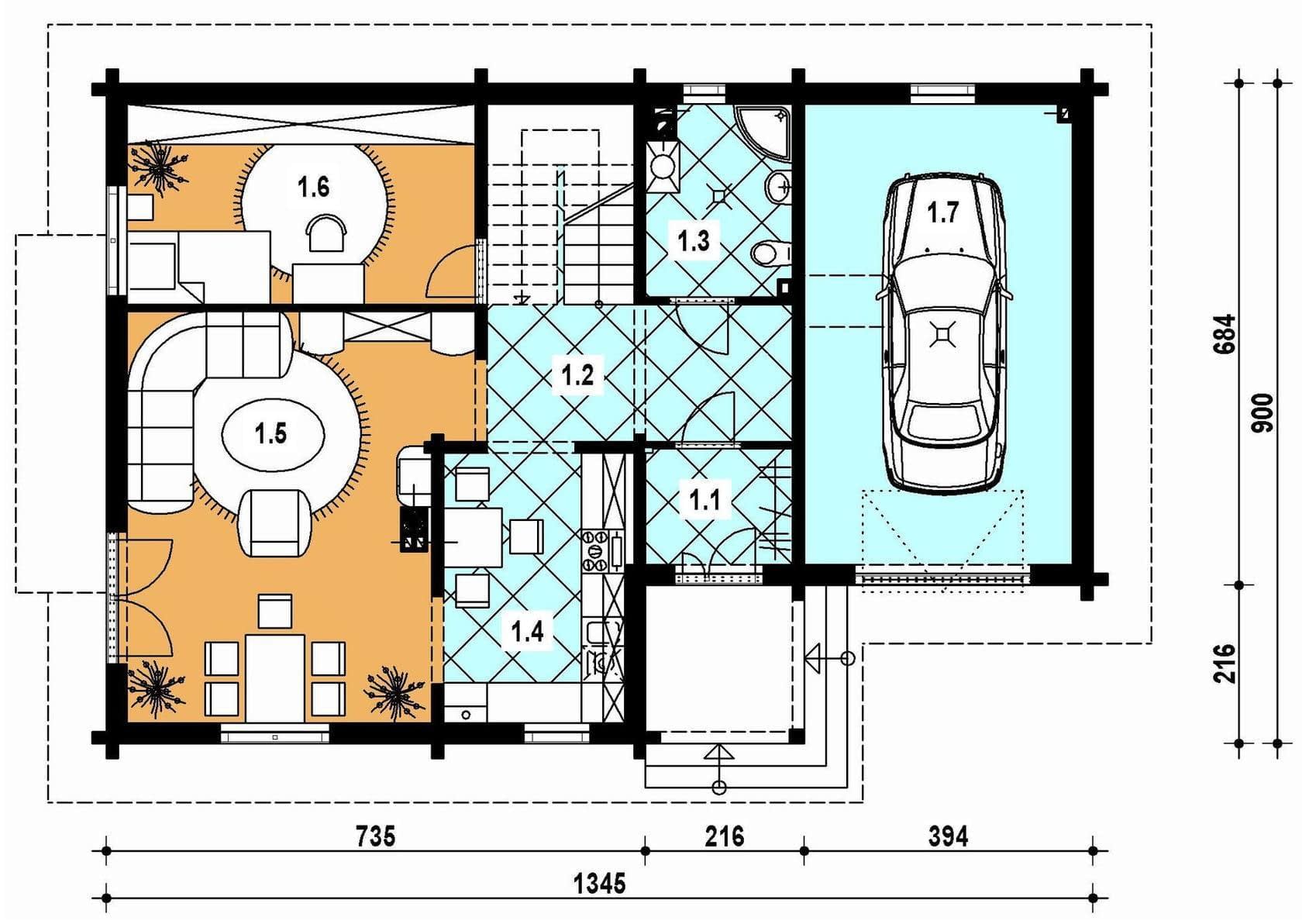
Parter
- wiatrołap 3.20 hall 10.50 łazienka 5.00 kuchnia 9.30 pokój dzienny 24.10 sypialnia 13.00 garaż 0.000
Poddasze
Dane techniczne
- Powierzchnia użytkowa113.7 m²
- Powierzchnia zabudowy112.5 m²
- Kubatura614.8 m³
- Wysokość domu7.58 m
- Piwnicatak
- PoddaszeUżytkowe
- Minimalne wymiary działki21.5 x 17m
- GarażJednostanowiskowy
- Kąt nach. dachu37°
Zawartość projektu
Dokumentacja obejmuje 3 egzemplarze projektu architektoniczno-budowlanego oraz 3 teczki projektu technicznego.
Architektura
- Opis techniczny do części architektonicznej
- Część rysunkowa
- Zestawienie podstawowych materiałów
Konstrukcja
- Opis techniczny
- Obliczenia statyczne
- Schematy konstrukcyjne
Projekt wewnętrznej instalacji C.O.; WOD-KAN; GAZ
- Opis techniczny instalacji
- Zestawienie podstawowych materiałów
- Część rysunkowa
Projekt elektrycznych instalacji wewnętrznych
- Opis techniczny
- Część rysunkowa
Projektant dokonujący adaptacji projektu gotowego może wprowadzić w nim następujący zakres zmian bez naruszenia praw autorskich firmy:
- Zaprojektować użycie innych materiałów budowlanych na konstrukcję budynku {ściany i stropy} pod warunkiem zachowania wymagań konstrukcji i ochrony cieplnej budynku oraz jego elewacji.
- Wprowadzić zmiany w usytuowaniu niekonstrukcyjnych ścianek działowych i otworów drzwiowych wewnątrz domu.
- Wprowadzić zmiany materiałów wykończeniowych na zewnątrz oraz wewnątrz domu.
- Wprowadzić zmiany usytuowania i rodzaju armatury sanitarnej i instalacji elektrycznej.
- Wprowadzić częściowe lub całkowite podpiwniczenie budynku przy zachowaniu poziomu posadzki parteru na wysokości nie przekraczającej 60 cm ponad poziom terenu projektowanego.
- Przesuwać okna na elewacji pod warunkiem zachowania prawidłowej kompozycji elewacji polegające na zachowaniu wspólnej linii usytuowania okien nad sobą lub obok siebie.
- Projekt powiększenia lub zmniejszenia garażu może być wykonany przez projektanta adaptującego w zakresie adaptacji projektu gotowego do konkretnej działki budowlanej.
Wprowadzenie innych zmian do projektu wymaga uzyskania pisemnej zgody autora projektu, która jest wystawiana po uprzednim zgłoszeniu inwestora. Wszelkie zmiany należy nanieść na projekcie w kolorze czerwonym trwałą i czytelną techniką (lub wykonać rysunki zamienne)
Uwaga: Istnieje możliwość zakupu dodatkowego egzemplarza projektu.
Dodatki
Bezpłatne dodatki
GratisZestaw umów
GratisZmiany w projekcie
GratisTablica budowy
GratisDziennik budowy














