Projekt domu A-108 szkieletowy
Promocja ważna do
23-04-2026
- Typ projektuWolnostojący
- Powierzchnia użytkowa97 m²
- KondygnacjeParterowy, z piwnicą
- GarażJednostanowiskowy
- Kąt nach. dachu24°
- Odbicie lustrzaneTak
- Czas realizacjido 10 dni roboczych Zobacz więcej >
Opis
Zgodność z WT 2021 i Eurokodami
Ze względu na dostosowywanie projektu do standardu WT 2021, czas realizacji może się różnić od standardowego.
Skontaktuj się z nami aby poznać szczegóły dotyczące wybranego projektu.
Opis projektu
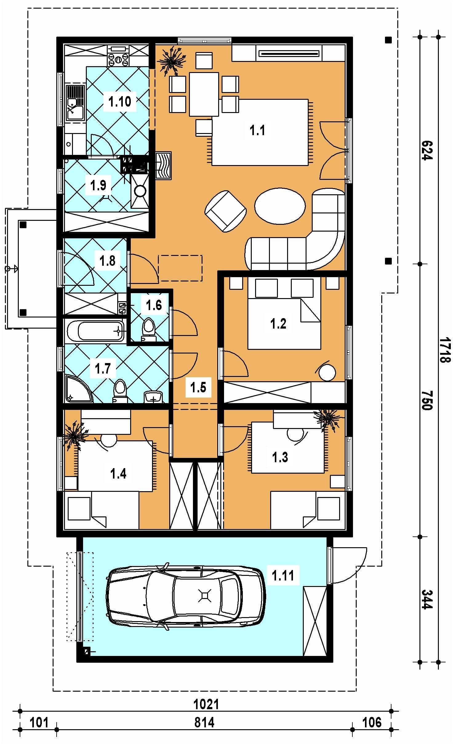
Projekt domu szkieletowego A-108 „DOM CHMIELOWA” – nowoczesny i energooszczędny dom parterowy. A-108 „DOM CHMIELOWA” w technologii szkieletowej to funkcjonalny, ekonomiczny i szybki w budowie dom jednorodzinny, który idealnie sprawdzi się na niewielkich działkach. Prosta bryła, tradycyjny dach i dobrze zaprojektowane wnętrze czynią ten projekt atrakcyjnym dla rodzin szukających komfortu w nowoczesnym wydaniu. Architektura domu szkieletowego: prostokątny rzut gwarantujący ekonomię budowy, czysta, minimalistyczna forma bryły, elegancka elewacja z połączeniem drewna i tynku, zadaszona strefa tarasowa – idealna do wspólnego wypoczynku. Projekt dedykowany jest działkom z wejściem od północy, co umożliwia maksymalne wykorzystanie naturalnego światła w części dziennej. Funkcjonalny układ wnętrza: Strefa dzienna: otwarty salon z jadalnią i kominkiem, kuchnia z bezpośrednim dostępem do przestronnej spiżarni, duże przeszklenia z widokiem na ogród. Strefa prywatna: trzy sypialnie zaprojektowane z myślą o komforcie mieszkańców, duża łazienka z wanną, prysznicem i podwójną umywalką, oddzielna toaleta jako praktyczne rozwiązanie dla gości i domowników. Zalety domu szkieletowego A-108: szybka realizacja budowy dzięki technologii szkieletowej, energooszczędność i niskie koszty ogrzewania, funkcjonalny podział na strefę dzienną i nocną, zadaszony taras sprzyjający integracji rodziny na świeżym powietrzu. Dom szkieletowy A-108 „DOM CHMIELOWA” to idealne rozwiązanie dla osób, które chcą postawić na nowoczesny, ekonomiczny i wygodny dom parterowy. Przemyślany układ pomieszczeń, energooszczędna konstrukcja i atrakcyjna architektura sprawiają, że jest to projekt dla wymagających inwestorów.Rzuty
Parter
Dane techniczne
- Powierzchnia użytkowa97 m²
- Powierzchnia zabudowy136.1 m²
- Kubatura611 m³
- Wysokość domu5.38 m
- Piwnicatak
- Minimalne wymiary działki25.5 x 18.5m
- GarażJednostanowiskowy
- Kąt nach. dachu24°
Zawartość projektu
Dokumentacja obejmuje 3 egzemplarze projektu architektoniczno-budowlanego oraz 3 teczki projektu technicznego.
Architektura
- Opis techniczny do części architektonicznej
- Część rysunkowa
- Zestawienie podstawowych materiałów
Konstrukcja
- Opis techniczny
- Obliczenia statyczne
- Schematy konstrukcyjne
Projekt wewnętrznej instalacji C.O.; WOD-KAN; GAZ
- Opis techniczny instalacji
- Zestawienie podstawowych materiałów
- Część rysunkowa
Projekt elektrycznych instalacji wewnętrznych
- Opis techniczny
- Część rysunkowa
Projektant dokonujący adaptacji projektu gotowego może wprowadzić w nim następujący zakres zmian bez naruszenia praw autorskich firmy:
- Zaprojektować użycie innych materiałów budowlanych na konstrukcję budynku {ściany i stropy} pod warunkiem zachowania wymagań konstrukcji i ochrony cieplnej budynku oraz jego elewacji.
- Wprowadzić zmiany w usytuowaniu niekonstrukcyjnych ścianek działowych i otworów drzwiowych wewnątrz domu.
- Wprowadzić zmiany materiałów wykończeniowych na zewnątrz oraz wewnątrz domu.
- Wprowadzić zmiany usytuowania i rodzaju armatury sanitarnej i instalacji elektrycznej.
- Wprowadzić częściowe lub całkowite podpiwniczenie budynku przy zachowaniu poziomu posadzki parteru na wysokości nie przekraczającej 60 cm ponad poziom terenu projektowanego.
- Przesuwać okna na elewacji pod warunkiem zachowania prawidłowej kompozycji elewacji polegające na zachowaniu wspólnej linii usytuowania okien nad sobą lub obok siebie.
- Projekt powiększenia lub zmniejszenia garażu może być wykonany przez projektanta adaptującego w zakresie adaptacji projektu gotowego do konkretnej działki budowlanej.
Wprowadzenie innych zmian do projektu wymaga uzyskania pisemnej zgody autora projektu, która jest wystawiana po uprzednim zgłoszeniu inwestora. Wszelkie zmiany należy nanieść na projekcie w kolorze czerwonym trwałą i czytelną techniką (lub wykonać rysunki zamienne)
Uwaga: Istnieje możliwość zakupu dodatkowego egzemplarza projektu.
Dodatki
Bezpłatne dodatki
GratisZestaw umów
GratisZmiany w projekcie
GratisTablica budowy
GratisDziennik budowy












