- Typ projektuWolnostojący
- Powierzchnia użytkowa164.7 m²
- KondygnacjeParterowy, z poddaszem, z piwnicą
- GarażJednostanowiskowy
- Kąt nach. dachu35°
- Odbicie lustrzaneTak
- Czas realizacjido 10 dni roboczych Zobacz więcej >
Opis
Zgodność z WT 2021 i Eurokodami
Ze względu na dostosowywanie projektu do standardu WT 2021, czas realizacji może się różnić od standardowego.
Skontaktuj się z nami aby poznać szczegóły dotyczące wybranego projektu.
Opis projektu
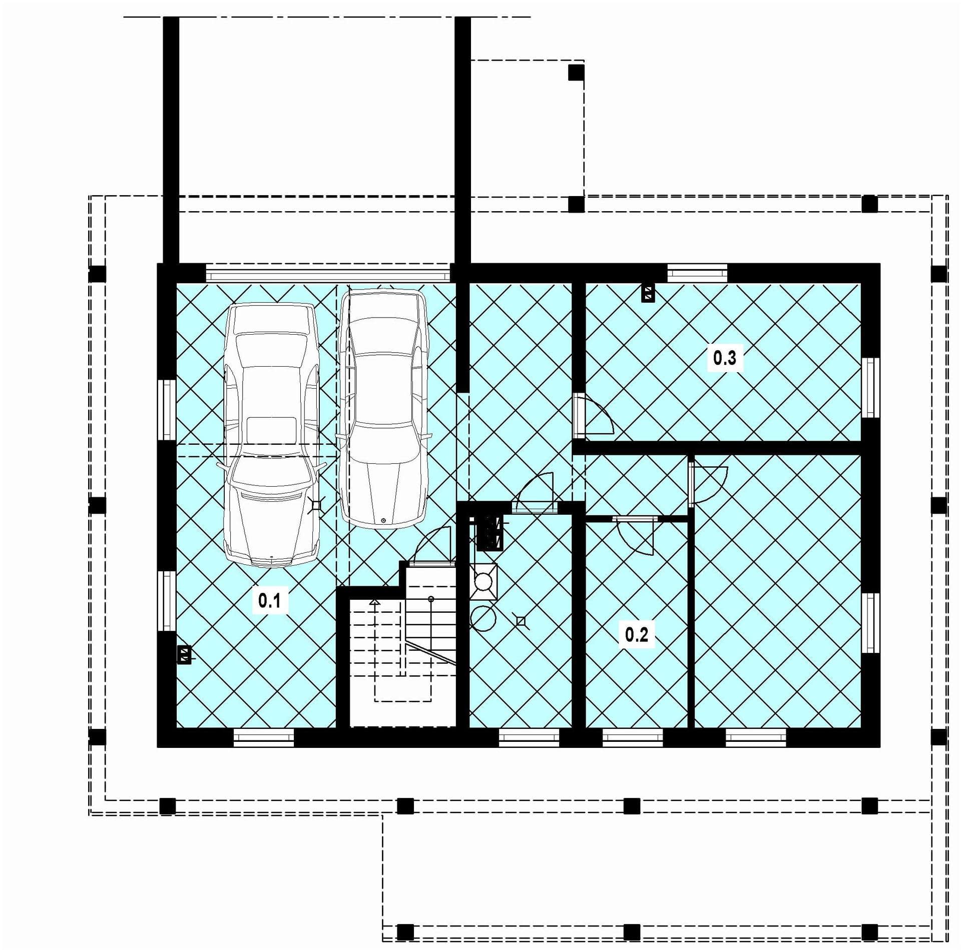
A-111 „DOM SPADOWA” w technologii z bali to propozycja dla osób, które marzą o domu jednorodzinnym w klimacie rezydencji wiejskiej. Ten parterowy budynek z poddaszem użytkowym i podpiwniczeniem wyróżnia się elegancją, funkcjonalnością i niepowtarzalnym klimatem drewna. Architektura i styl domu z bali: Bryła domu jest prosta, zaplanowana na rzucie prostokąta, co nadaje jej klasyczny charakter. Czterospadowy dach z efektownymi wolimi oczkami zapewnia doświetlenie poddasza, Weranda otaczająca parter tworzy przytulną przestrzeń rekreacyjną wokół budynku, Naturalne bale sprawiają, że dom wyróżnia się wyjątkową estetyką i zdrowym mikroklimatem. Dom łączy w sobie tradycyjną architekturę dworkową z nowoczesnym podejściem do funkcjonalności. Układ pomieszczeń – komfort dla rodziny: Parter – serce domu: duży salon z kominkiem i wyjściem na werandę, jadalnia połączona z kuchnią, dodatkowy pokój mogący pełnić rolę gabinetu lub sypialni gościnnej, łazienka i garderoba. Poddasze – prywatna strefa wypoczynku: trzy komfortowe sypialnie, każda z własną garderobą, duża łazienka, przestronny hall z dostępem do pokoi. Piwnica – garaż i pomieszczenia gospodarcze garaż podwójny, kotłownia i pralnia, przestrzeń gospodarcza i magazynowa. Atuty domu z bali A-111 „DOM SPADOWA”: naturalny mikroklimat i świetna izolacja cieplna, weranda otaczająca dom – idealna do wypoczynku o każdej porze roku, trzy sypialnie z garderobami – maksymalny komfort prywatności, solidna konstrukcja z bali podkreślająca prestiżowy charakter domu. Dom z bali A-111 „DOM SPADOWA” to propozycja dla osób, które chcą połączyć styl wiejskiej rezydencji z funkcjonalnością nowoczesnego budownictwa. To dom elegancki, przytulny i ponadczasowy – doskonały dla rodzin poszukujących wygodnego miejsca do życia.Rzuty
Piwnica
Parter
Dane techniczne
- Powierzchnia użytkowa164.7 m²
- Powierzchnia zabudowy134.2 m²
- Kubatura1034.2 m³
- Wysokość domu7.93 m
- Piwnicatak
- PoddaszeUżytkowe
- Minimalne wymiary działki28 x 25m
- GarażJednostanowiskowy
- Kąt nach. dachu35°
Zawartość projektu
Dokumentacja obejmuje 3 egzemplarze projektu architektoniczno-budowlanego oraz 3 teczki projektu technicznego.
Architektura
- Opis techniczny do części architektonicznej
- Część rysunkowa
- Zestawienie podstawowych materiałów
Konstrukcja
- Opis techniczny
- Obliczenia statyczne
- Schematy konstrukcyjne
Projekt wewnętrznej instalacji C.O.; WOD-KAN; GAZ
- Opis techniczny instalacji
- Zestawienie podstawowych materiałów
- Część rysunkowa
Projekt elektrycznych instalacji wewnętrznych
- Opis techniczny
- Część rysunkowa
Projektant dokonujący adaptacji projektu gotowego może wprowadzić w nim następujący zakres zmian bez naruszenia praw autorskich firmy:
- Zaprojektować użycie innych materiałów budowlanych na konstrukcję budynku {ściany i stropy} pod warunkiem zachowania wymagań konstrukcji i ochrony cieplnej budynku oraz jego elewacji.
- Wprowadzić zmiany w usytuowaniu niekonstrukcyjnych ścianek działowych i otworów drzwiowych wewnątrz domu.
- Wprowadzić zmiany materiałów wykończeniowych na zewnątrz oraz wewnątrz domu.
- Wprowadzić zmiany usytuowania i rodzaju armatury sanitarnej i instalacji elektrycznej.
- Wprowadzić częściowe lub całkowite podpiwniczenie budynku przy zachowaniu poziomu posadzki parteru na wysokości nie przekraczającej 60 cm ponad poziom terenu projektowanego.
- Przesuwać okna na elewacji pod warunkiem zachowania prawidłowej kompozycji elewacji polegające na zachowaniu wspólnej linii usytuowania okien nad sobą lub obok siebie.
- Projekt powiększenia lub zmniejszenia garażu może być wykonany przez projektanta adaptującego w zakresie adaptacji projektu gotowego do konkretnej działki budowlanej.
Wprowadzenie innych zmian do projektu wymaga uzyskania pisemnej zgody autora projektu, która jest wystawiana po uprzednim zgłoszeniu inwestora. Wszelkie zmiany należy nanieść na projekcie w kolorze czerwonym trwałą i czytelną techniką (lub wykonać rysunki zamienne)
Uwaga: Istnieje możliwość zakupu dodatkowego egzemplarza projektu.
Dodatki
Bezpłatne dodatki
GratisZestaw umów
GratisZmiany w projekcie
GratisTablica budowy
GratisDziennik budowy














