Projekt domu A-132 szkieletowy
Promocja ważna do
23-04-2026
- Typ projektuWolnostojący
- Powierzchnia użytkowa159.3 m²
- KondygnacjeParterowy, z poddaszem
- GarażJednostanowiskowy
- Kąt nach. dachu40°
- Odbicie lustrzaneTak
- Czas realizacjido 10 dni roboczych Zobacz więcej >
Opis
Zgodność z WT 2021 i Eurokodami
Ze względu na dostosowywanie projektu do standardu WT 2021, czas realizacji może się różnić od standardowego.
Skontaktuj się z nami aby poznać szczegóły dotyczące wybranego projektu.
Opis projektu
Nowoczesny dom parterowy z poddaszem w technologii szkieletowej Projekt tego domu szkieletowego z użytkowym poddaszem został stworzony z myślą o rodzinach 5-6-osobowych, które chcą mieszkać w funkcjonalnym i nowoczesnym domu szkieletowym. Kompaktowa bryła domu i inteligentny układ wnętrz sprawiają, że koszty budowy i eksploatacji są niewielkie. Minimalistyczna forma i duże przeszklenia Dom szkieletowy charakteryzuje się prostokątnym rzutem i dwuspadowym dachem, minimalistyczną formą oraz nowoczesnym wykończeniem elewacji. Duże okna zapewniają dużo naturalnego światła, dzięki czemu wnętrza są jasne i przyjazne, a mieszkańcy mają bezpośredni kontakt z otoczeniem. Przemyślany układ funkcjonalny Parter: przestronny salon z kuchnią i jadalnią, łazienka, spiżarka, garaż oraz pomieszczenie gospodarcze. To idealne miejsce do wspólnego spędzania czasu z rodziną. Poddasze: cztery sypialnie, łazienka i trzy garderoby zapewniają komfortowe warunki dla wszystkich domowników. Funkcjonalny taras i przestrzeń na świeżym powietrzu Dom szkieletowy został zaprojektowany z tarasem w kształcie litery L, który okala budynek z dwóch stron. To rozwiązanie zwiększa funkcjonalność przestrzeni zewnętrznej i pozwala korzystać z wypoczynku na świeżym powietrzu w komfortowych warunkach. Zalety domu szkieletowego szybka i ekonomiczna budowa dzięki prefabrykowanym elementom, doskonała izolacja termiczna i niskie koszty eksploatacji, funkcjonalny układ wnętrz bez marnowania przestrzeni, nowoczesny i estetyczny design z przemyślanym rozplanowaniem pomieszczeń. Ten dom parterowy z poddaszem w technologii szkieletowej to propozycja dla rodzin, które szukają nowoczesnego, funkcjonalnego i energooszczędnego domu, gwarantującego komfort i przyjemną atmosferę mieszkania.Rzuty
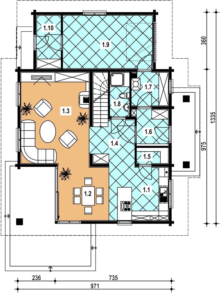
Parter
- garderoba 2.80 sypialnia 12.70 hall 10.00 garderoba 2.00 sypialnia 11.90 łazienka 7.80 garderoba 5.10 sypialnia 14.60 sypialnia 14.000
Poddasze
Dane techniczne
- Powierzchnia użytkowa159.3 m²
- Powierzchnia zabudowy122.9 m²
- Kubatura749 m³
- Wysokość domu8.2 m
- PoddaszeUżytkowe
- Minimalne wymiary działki20 x 18m
- GarażJednostanowiskowy
- Kąt nach. dachu40°
Zawartość projektu
Dokumentacja obejmuje 3 egzemplarze projektu architektoniczno-budowlanego oraz 3 teczki projektu technicznego.
Architektura
- Opis techniczny do części architektonicznej
- Część rysunkowa
- Zestawienie podstawowych materiałów
Konstrukcja
- Opis techniczny
- Obliczenia statyczne
- Schematy konstrukcyjne
Projekt wewnętrznej instalacji C.O.; WOD-KAN; GAZ
- Opis techniczny instalacji
- Zestawienie podstawowych materiałów
- Część rysunkowa
Projekt elektrycznych instalacji wewnętrznych
- Opis techniczny
- Część rysunkowa
Projektant dokonujący adaptacji projektu gotowego może wprowadzić w nim następujący zakres zmian bez naruszenia praw autorskich firmy:
- Zaprojektować użycie innych materiałów budowlanych na konstrukcję budynku {ściany i stropy} pod warunkiem zachowania wymagań konstrukcji i ochrony cieplnej budynku oraz jego elewacji.
- Wprowadzić zmiany w usytuowaniu niekonstrukcyjnych ścianek działowych i otworów drzwiowych wewnątrz domu.
- Wprowadzić zmiany materiałów wykończeniowych na zewnątrz oraz wewnątrz domu.
- Wprowadzić zmiany usytuowania i rodzaju armatury sanitarnej i instalacji elektrycznej.
- Wprowadzić częściowe lub całkowite podpiwniczenie budynku przy zachowaniu poziomu posadzki parteru na wysokości nie przekraczającej 60 cm ponad poziom terenu projektowanego.
- Przesuwać okna na elewacji pod warunkiem zachowania prawidłowej kompozycji elewacji polegające na zachowaniu wspólnej linii usytuowania okien nad sobą lub obok siebie.
- Projekt powiększenia lub zmniejszenia garażu może być wykonany przez projektanta adaptującego w zakresie adaptacji projektu gotowego do konkretnej działki budowlanej.
Wprowadzenie innych zmian do projektu wymaga uzyskania pisemnej zgody autora projektu, która jest wystawiana po uprzednim zgłoszeniu inwestora. Wszelkie zmiany należy nanieść na projekcie w kolorze czerwonym trwałą i czytelną techniką (lub wykonać rysunki zamienne)
Uwaga: Istnieje możliwość zakupu dodatkowego egzemplarza projektu.
Dodatki
Bezpłatne dodatki
GratisZestaw umów
GratisZmiany w projekcie
GratisTablica budowy
GratisDziennik budowy













