- Typ projektuWolnostojący
- Powierzchnia użytkowa45.1 m²
- KondygnacjeParterowy, z poddaszem, z piwnicą
- GarażBez garażu
- Kąt nach. dachu45°
- Odbicie lustrzaneTak
- Czas realizacjido 10 dni roboczych Zobacz więcej >
Opis
Zgodność z WT 2021 i Eurokodami
Ze względu na dostosowywanie projektu do standardu WT 2021, czas realizacji może się różnić od standardowego.
Skontaktuj się z nami aby poznać szczegóły dotyczące wybranego projektu.
Opis projektu
Nowoczesny dom szkieletowy inspirowany architekturą góralską to propozycja dla osób, które chcą połączyć tradycję z komfortem współczesnego budownictwa. Bryła budynku nawiązuje do klasycznych domów regionalnych, a jednocześnie wzbogacona została o duże przeszklenia, przestronny taras i nowoczesne wykończenie. Dzięki temu projekt jest ponadczasowy i atrakcyjny zarówno wizualnie, jak i funkcjonalnie. Funkcjonalny układ wnętrza Wnętrze zaprojektowano tak, aby było otwarte i komfortowe. Główną część parteru zajmuje przestronny pokój dzienny połączony z kuchnią i jadalnią. Dzięki temu cała strefa dzienna jest jasna, przestronna i sprzyja wspólnemu spędzaniu czasu. Duże przeszklenia wpuszczają naturalne światło, tworząc przyjazny mikroklimat. Z salonu prowadzi wyjście na częściowo zadaszony taras, który umożliwia korzystanie z ogrodu niemal przez cały rok. Poddasze – prywatna strefa nocna Na poddaszu zaplanowano dwie wygodne sypialnie oraz funkcjonalny hall, który łączy wszystkie pomieszczenia. Dzięki temu prywatna część domu jest kameralna i dobrze oddzielona od strefy dziennej. Atuty technologii szkieletowej Dom zaprojektowano w technologii szkieletowej, co ma wiele zalet: szybki czas budowy i możliwość realizacji w niemal każdych warunkach, wysoka energooszczędność i świetna izolacja cieplna, ekologiczność – drewno jako materiał odnawialny, możliwość dowolnej aranżacji wnętrz i łatwe wprowadzanie zmian. Ten dom szkieletowy z poddaszem i tarasem to idealna propozycja zarówno jako dom całoroczny dla rodziny, jak i jako komfortowy dom letniskowy w górach lub na wsi.Rzuty
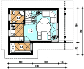
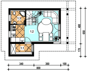
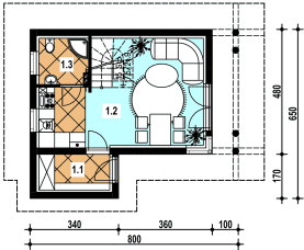
Parter
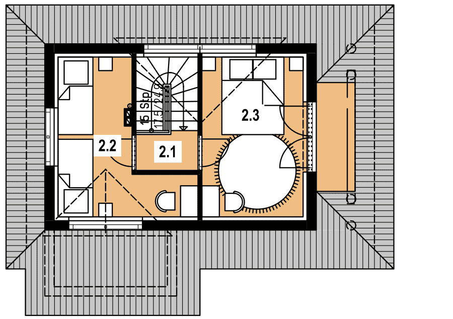
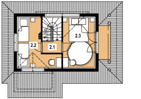
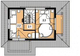
Poddasze
Dane techniczne
- Powierzchnia użytkowa45.1 m²
- Powierzchnia zabudowy39.4 m²
- Kubatura201.7 m³
- Wysokość domu6.56 m
- Piwnicatak
- PoddaszeUżytkowe
- Minimalne wymiary działki15.5 x 16m
- GarażBez garażu
- Kąt nach. dachu45°
Zawartość projektu
Dokumentacja obejmuje 3 egzemplarze projektu architektoniczno-budowlanego oraz 3 teczki projektu technicznego.
Architektura
- Opis techniczny do części architektonicznej
- Część rysunkowa
- Zestawienie podstawowych materiałów
Konstrukcja
- Opis techniczny
- Obliczenia statyczne
- Schematy konstrukcyjne
Projekt wewnętrznej instalacji C.O.; WOD-KAN; GAZ
- Opis techniczny instalacji
- Zestawienie podstawowych materiałów
- Część rysunkowa
Projekt elektrycznych instalacji wewnętrznych
- Opis techniczny
- Część rysunkowa
Projektant dokonujący adaptacji projektu gotowego może wprowadzić w nim następujący zakres zmian bez naruszenia praw autorskich firmy:
- Zaprojektować użycie innych materiałów budowlanych na konstrukcję budynku {ściany i stropy} pod warunkiem zachowania wymagań konstrukcji i ochrony cieplnej budynku oraz jego elewacji.
- Wprowadzić zmiany w usytuowaniu niekonstrukcyjnych ścianek działowych i otworów drzwiowych wewnątrz domu.
- Wprowadzić zmiany materiałów wykończeniowych na zewnątrz oraz wewnątrz domu.
- Wprowadzić zmiany usytuowania i rodzaju armatury sanitarnej i instalacji elektrycznej.
- Wprowadzić częściowe lub całkowite podpiwniczenie budynku przy zachowaniu poziomu posadzki parteru na wysokości nie przekraczającej 60 cm ponad poziom terenu projektowanego.
- Przesuwać okna na elewacji pod warunkiem zachowania prawidłowej kompozycji elewacji polegające na zachowaniu wspólnej linii usytuowania okien nad sobą lub obok siebie.
- Projekt powiększenia lub zmniejszenia garażu może być wykonany przez projektanta adaptującego w zakresie adaptacji projektu gotowego do konkretnej działki budowlanej.
Wprowadzenie innych zmian do projektu wymaga uzyskania pisemnej zgody autora projektu, która jest wystawiana po uprzednim zgłoszeniu inwestora. Wszelkie zmiany należy nanieść na projekcie w kolorze czerwonym trwałą i czytelną techniką (lub wykonać rysunki zamienne)
Uwaga: Istnieje możliwość zakupu dodatkowego egzemplarza projektu.
Dodatki
Bezpłatne dodatki
GratisZestaw umów
GratisZmiany w projekcie
GratisTablica budowy
GratisDziennik budowy













