- Typ projektuWolnostojący
- Powierzchnia użytkowa43.5 m²
- KondygnacjeParterowy, z poddaszem
- GarażBez garażu
- Kąt nach. dachu45°
- Odbicie lustrzaneTak
- Czas realizacjido 10 dni roboczych Zobacz więcej >
Opis
Zgodność z WT 2021 i Eurokodami
Ze względu na dostosowywanie projektu do standardu WT 2021, czas realizacji może się różnić od standardowego.
Skontaktuj się z nami aby poznać szczegóły dotyczące wybranego projektu.
Opis projektu
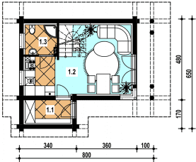
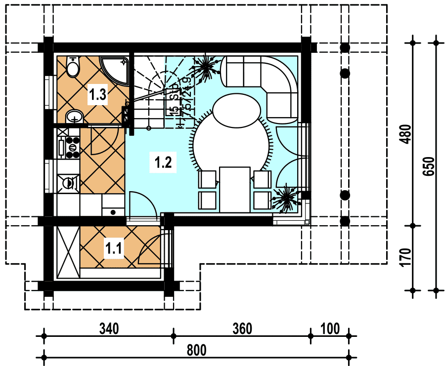
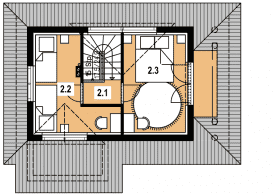
Tradycyjny dom z bala w nowoczesnym wydaniu to projekt, który łączy góralską stylistykę z elementami współczesnej architektury. Bryła nawiązuje do regionalnych domów drewnianych, ale dzięki dużym przeszkleniom, funkcjonalnemu układowi wnętrz i zadaszonemu tarasowi zyskuje nowoczesny charakter. Przestronne i jasne wnętrze Wnętrze domu z bala wyróżnia się niebanalnym układem pomieszczeń. Główną część parteru zajmuje otwarty pokój dzienny połączony z kuchnią, co optycznie powiększa przestrzeń. Duże przeszklenia sprawiają, że wnętrza są jasne i przytulne, a naturalne drewno podkreśla ich wyjątkowy klimat. Salon posiada wyjście na częściowo zadaszony taras, idealny do odpoczynku na świeżym powietrzu, niezależnie od pogody. Strefa prywatna na poddaszu Na poddaszu znajdują się dwie komfortowe sypialnie połączone praktycznym hallem. To idealne rozwiązanie dla rodziny – zapewnia prywatność i wygodę. Zalety technologii z bala Dom wykonany w technologii z bala to inwestycja dla osób ceniących ekologię i naturalne materiały. Drewno zapewnia zdrowy mikroklimat we wnętrzu, regulując wilgotność powietrza. Budynek jest ciepły i energooszczędny, co przekłada się na niższe koszty ogrzewania. Niepowtarzalny wygląd elewacji sprawia, że dom z bala doskonale komponuje się z otoczeniem – szczególnie w górskich lub leśnych krajobrazach. Ten dom z bala z poddaszem i tarasem łączy w sobie urok tradycji i zalety nowoczesnego budownictwa, tworząc wyjątkowe miejsce do życia i wypoczynku.Rzuty
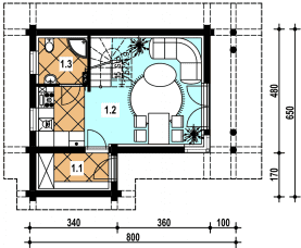
Parter
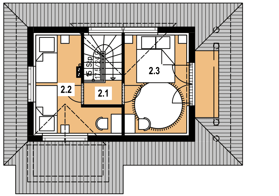
Poddasze
Dane techniczne
- Powierzchnia użytkowa43.5 m²
- Powierzchnia zabudowy39.4 m²
- Kubatura201.7 m³
- Wysokość domu6.56 m
- PoddaszeUżytkowe
- Minimalne wymiary działki15.5 x 16m
- GarażBez garażu
- Kąt nach. dachu45°
Zawartość projektu
Dokumentacja obejmuje 3 egzemplarze projektu architektoniczno-budowlanego oraz 3 teczki projektu technicznego.
Architektura
- Opis techniczny do części architektonicznej
- Część rysunkowa
- Zestawienie podstawowych materiałów
Konstrukcja
- Opis techniczny
- Obliczenia statyczne
- Schematy konstrukcyjne
Projekt wewnętrznej instalacji C.O.; WOD-KAN; GAZ
- Opis techniczny instalacji
- Zestawienie podstawowych materiałów
- Część rysunkowa
Projekt elektrycznych instalacji wewnętrznych
- Opis techniczny
- Część rysunkowa
Projektant dokonujący adaptacji projektu gotowego może wprowadzić w nim następujący zakres zmian bez naruszenia praw autorskich firmy:
- Zaprojektować użycie innych materiałów budowlanych na konstrukcję budynku {ściany i stropy} pod warunkiem zachowania wymagań konstrukcji i ochrony cieplnej budynku oraz jego elewacji.
- Wprowadzić zmiany w usytuowaniu niekonstrukcyjnych ścianek działowych i otworów drzwiowych wewnątrz domu.
- Wprowadzić zmiany materiałów wykończeniowych na zewnątrz oraz wewnątrz domu.
- Wprowadzić zmiany usytuowania i rodzaju armatury sanitarnej i instalacji elektrycznej.
- Wprowadzić częściowe lub całkowite podpiwniczenie budynku przy zachowaniu poziomu posadzki parteru na wysokości nie przekraczającej 60 cm ponad poziom terenu projektowanego.
- Przesuwać okna na elewacji pod warunkiem zachowania prawidłowej kompozycji elewacji polegające na zachowaniu wspólnej linii usytuowania okien nad sobą lub obok siebie.
- Projekt powiększenia lub zmniejszenia garażu może być wykonany przez projektanta adaptującego w zakresie adaptacji projektu gotowego do konkretnej działki budowlanej.
Wprowadzenie innych zmian do projektu wymaga uzyskania pisemnej zgody autora projektu, która jest wystawiana po uprzednim zgłoszeniu inwestora. Wszelkie zmiany należy nanieść na projekcie w kolorze czerwonym trwałą i czytelną techniką (lub wykonać rysunki zamienne)
Uwaga: Istnieje możliwość zakupu dodatkowego egzemplarza projektu.
Dodatki
Bezpłatne dodatki
GratisZestaw umów
GratisZmiany w projekcie
GratisTablica budowy
GratisDziennik budowy













