- Typ projektuWolnostojący
- Powierzchnia użytkowa81.2 m²
- Kondygnacje
- GarażBez garażu
- DachDwuspadowy
- Kąt nach. dachu45°
- Odbicie lustrzaneTak
- Czas realizacjimax. czas realizacji 10 dni Zobacz więcej >
Opis
Zgodność z WT 2021 i Eurokodami
Ze względu na dostosowywanie projektu do standardu WT 2021, czas realizacji może się różnić od standardowego.
Skontaktuj się z nami aby poznać szczegóły dotyczące wybranego projektu.
Opis projektu
Ada to projekt nowoczesnego domu typu stodoła. To projekt z serii ECO - domów ekonomicznych w budowie i użytkowaniu. Seria Eco to autorskie projekty domów naszej pracowni Dom Dla Ciebie. Jest to projekt domu z poddaszem użytkowym, przewidziany dla 4 osobowej rodziny. Dom przekryty jest ekonomicznym, bezokapowym dachem dwuspadowym na drewnianej więźbie dachowej, opartej na ściance kolankowej wysokości ok 0,8m. Ada to oryginalny kompaktowy i funkcjonalny dom, w którym przy niewielkiej powierzchni udało się zaprojektować aż 4 pokoje, 2 łazienki i kuchnię. Na parterze domu znajduje się cześć ogólnodostępna z otwartym na schody salonem, w którym przewidziano kominek, wygodną jadalnię i nowoczesną kuchnią. Dodatkowo jest tu przewidziany pokój sypialnym oraz łazienka oraz pralnia z gazowym piecem CO. Poddasze to część prywatna z dwiema sypialniami, każda z możliwością wydzielenia garderoby, oraz wygodna oraz wspólna wygodna łazienka z wanną. Projekt Ada to propozycja energooszczędnego domu o oryginalnej funkcji i nowoczesnej bryle.
Konstrukcja
fundamenty: betonowe
ściany zewnętrzne: porotherm+styropian termo organika
ściany wewnętrzne: porotherm
rodzaj stropu: teriva i
elewacje: tynk strukturalny, okładzina drewniana lub drewnopodobna
pokrycie dachu: blacha, dachówka cem. lub ceram.
Rzuty
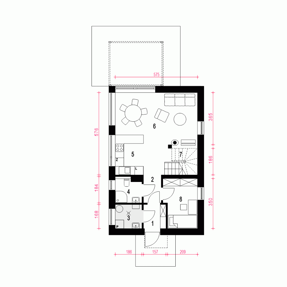
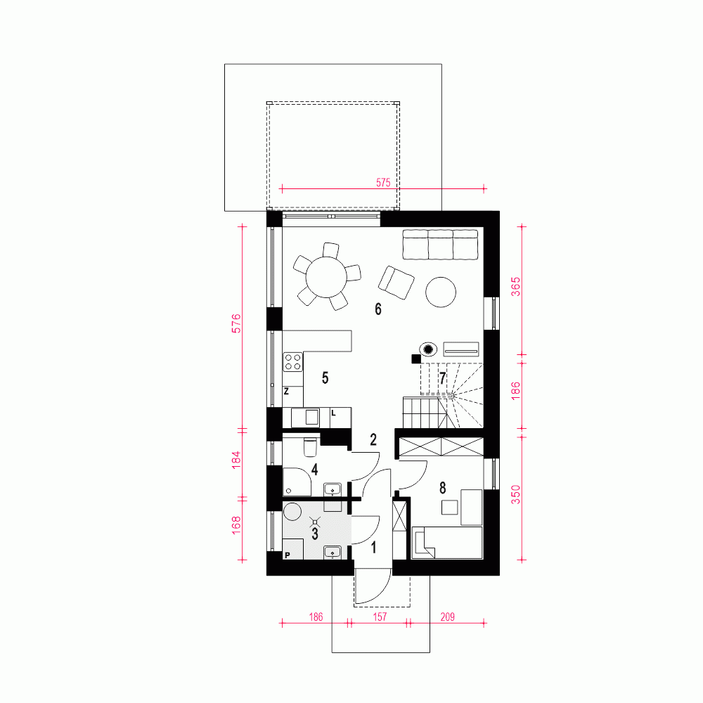
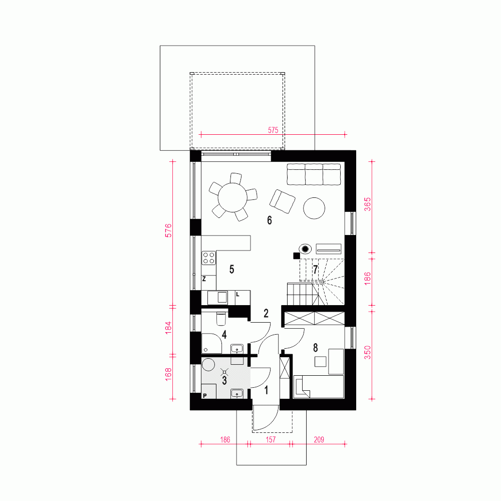
Parter
- m²
- 1. Wiatrołap2.5
- 2. Hol2.4
- 3. Pralnia + CO*3
- 4. Łazienka3
- 5. Kuchnia5.5
- 6. Salon z jadalnią23.5
- 7. Schody3.7
- 8. Pokój7.7
Piętro
Przekrój
Usytuowanie na działce
Dane techniczne
- Powierzchnia użytkowa81.2 m²
- Powierzchnia zabudowy69.8 m²
- KominekTak
- Liczba łazienek2
- Liczba pokoi4
- Powierzchnia dachu99.5 m²
- Kubatura265 m³
- Długość domu10.4 m
- Szerokość domu6.7 m
- Wysokość domu7.6 m
- Minimalne wymiary działki18.5 x 14.7m
- GarażBez garażu
- Rodzaj dachuDwuspadowy
- Kąt nach. dachu45°
Instalacja grzewcza
- Instalacja grzewczaGaz
Zawartość projektu
Zgodnie ze znowelizowaną Ustawą Prawo Budowlane art.34 ust.3, na projekt budowlany składają się trzy części:
- projekt zagospodarowania działki lub terenu
- projekt architektoniczno-budowlany
- projekt techniczny
Nasze projekty oferujemy w 3 egzemplarzach, zawierających projekt architektoniczno-budowlany i projekt techniczny. Projekt zagospodarowania działki lub terenu nie wchodzi w skład projektu oferowanego do sprzedaży. Projekt ten należy zlecić we własnym zakresie lokalnemu projektantowi, który opracuje go na podstawie danych zawartych w projekcie architektoniczno-budowlanym i technicznym, po dostosowaniu projektu do warunków lokalnych i wymagań inwestora.
UWAGA: wszystkie egzemplarze projektu zabezpieczone są hologramami, w części rysunkowej posiadają nadruki zabezpieczające w kolorze zielonym. Zalecamy aby po otrzymaniu przesyłki kontrolować czy na pierwszych stronach projektu znajduje się hologram i czy na rysunkach widoczne są w/w nadruki potwierdzające oryginalność projektu.
Wyrażamy zgodę na wszelkie zmiany zgodne z obowiązującymi przepisami pod warunkiem wprowadzenia ich przez uprawnioną osobę.
Wszystkie zmiany wymienione powyżej powinny być naniesione na oryginał projektu katalogowego trwałą techniką graficzną w kolorze czerwonym lub dołączone jako aneks i podpisane przez osobę uprawnioną dokonująca adaptacji.
**ważne informacje
Projekt w fazie koncepcji dostępny z wydłużonym terminem realizacji. Przy zamówieniu ustalamy termin i pobieramy zadatek 50% podstawowej ceny projektu (jako koszty usługi przygotowania dokumentacji do standardu projektu gotowego, w przypadku rezygnacji z usługi, zadatek nie podlega zwrotowi).
Cena za dodatkowy egzemplarz projektu jest zależna od nazwy projektu!
Dodatki
Bezpłatne dodatki
GratisZestaw umów
GratisZmiany w projekcie
GratisTablica budowy
GratisDziennik budowy
Płatne dodatki

Kosztorys - stan wykończony
540 zł

Projekt wentylacji mechanicznej
1 000 zł
















