- Typ projektuBliźniak
- Powierzchnia użytkowa207.6 m²
- Kondygnacje
- GarażZ wiatą garażową
- DachDwuspadowy
- Kąt nach. dachu35°
- Odbicie lustrzaneTak
- Czas realizacjimax. czas realizacji 10 dni Zobacz więcej >
Opis
Zgodność z WT 2021 i Eurokodami
Ze względu na dostosowywanie projektu do standardu WT 2021, czas realizacji może się różnić od standardowego.
Skontaktuj się z nami aby poznać szczegóły dotyczące wybranego projektu.
Opis projektu
(Uwaga: projekty typu bliźniak oferujemy jako domy dwulokalowe, projekt można zamówić również w zabudowie bliźniaczej)Agat II A-BL2 to połączone dwa sementy od strony klatek schodowych. Projekt wpisuje się idealnie w ofertę budynków tanich i ekonomicznych w budowie i w eksploatacji, co udaje się osiągnąć poprzez optymalnie zaprojektowaną funkcję i zwartą bryłę.Opis poniżej dotyczy jednego segmentu.Agat II to dom nowoczesny i wygodny przeznaczony dla 4-5 osobowej rodziny. Strefa wejściowa do budynku przewiduje duży wiatrołap wyposażony w solidne szafy wnękowe z dostępem do pomieszczenia technicznego z piecem na paliwo stałe. Na parterze zaprojektowano jasny, praktyczny salon połączony z kuchnią , dodatkowy pokój,niewielką łazienkę oraz dużą spiżarnię a także garderobę wygospodarowaną w przestrzeni pod schodami. Na piętrze zaplanowano 3 sypialnie, garderobę oraz łazienkę. Projekt Agat II przeznaczony jest do zabudowy wolno stojącej ale również do zabudowy bliźniaczej i szeregowej. Może zostać zlokalizowany na małej i średniej działce.
Konstrukcja
Rzuty
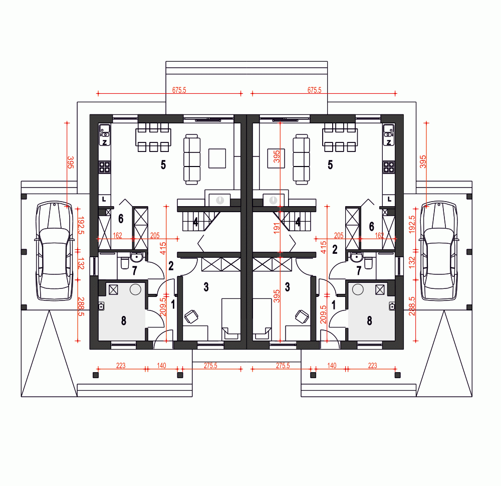
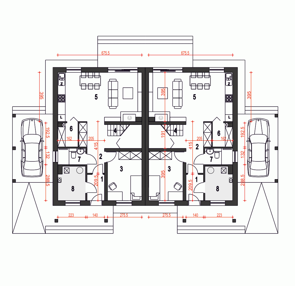
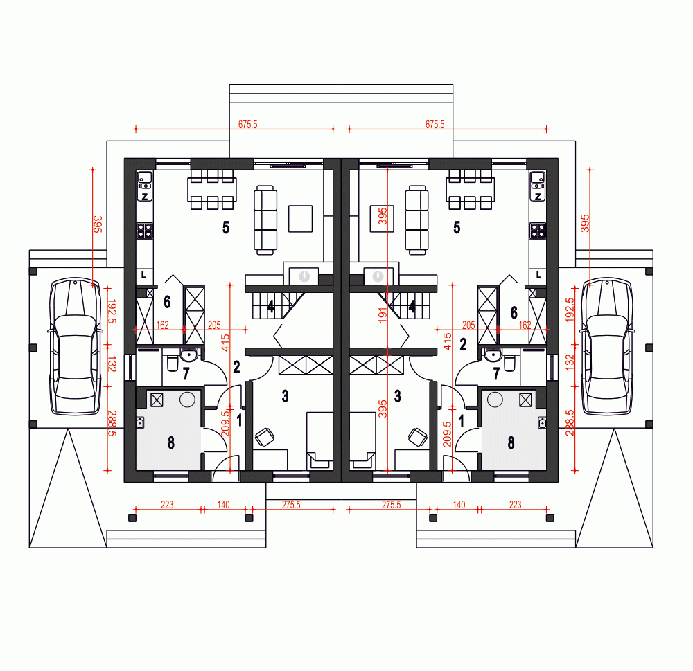
Parter
- m²
- 1. Wiatrołap2.8
- 2. Hol za schowkiem10
- 3. Pokój10.7
- 4. Schody4.2
- 5. Salon z kuchnią26.2
- 6. Spiżarnia2.8
- 7. Łazienka2.8
- 8. Pom. tech. z CO*5.8
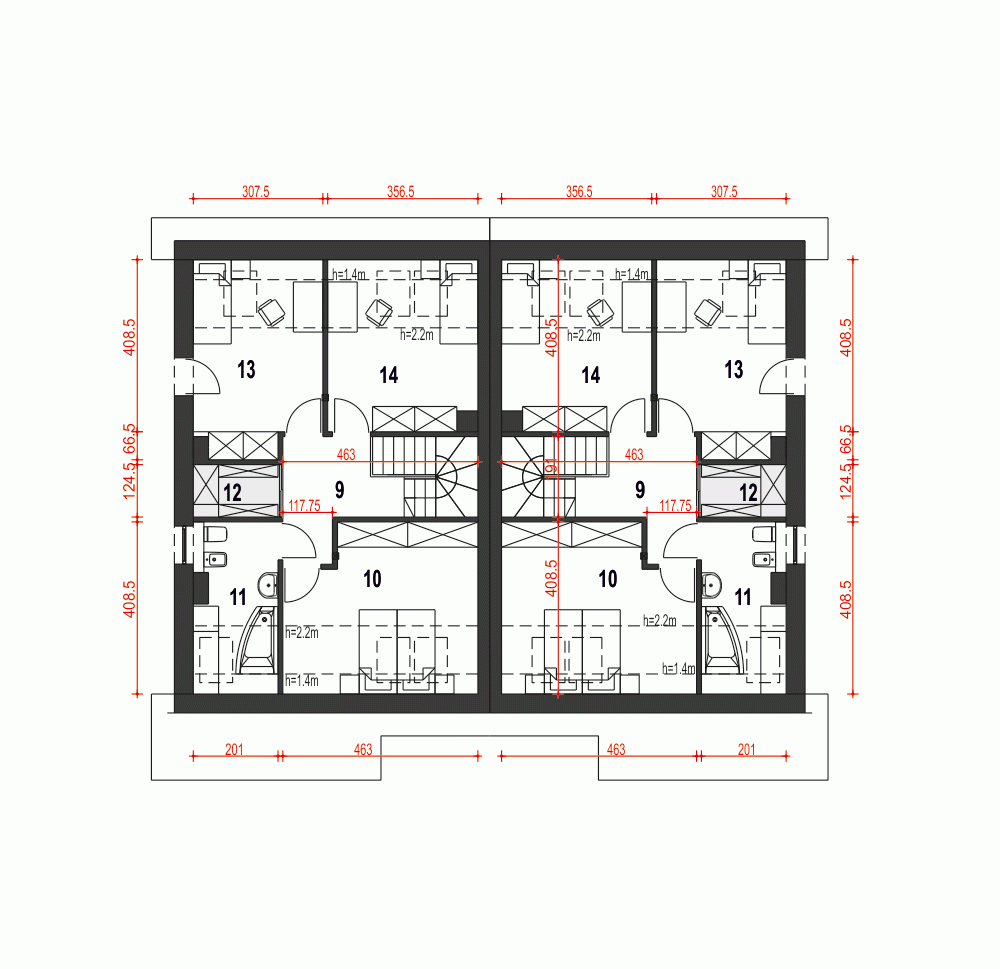
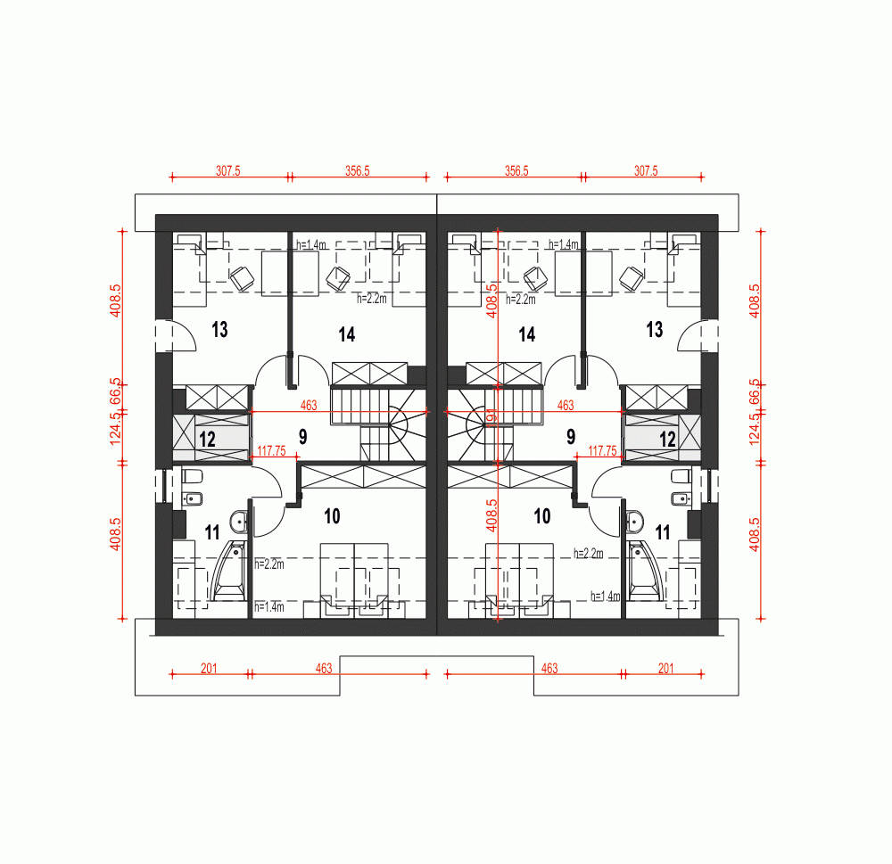
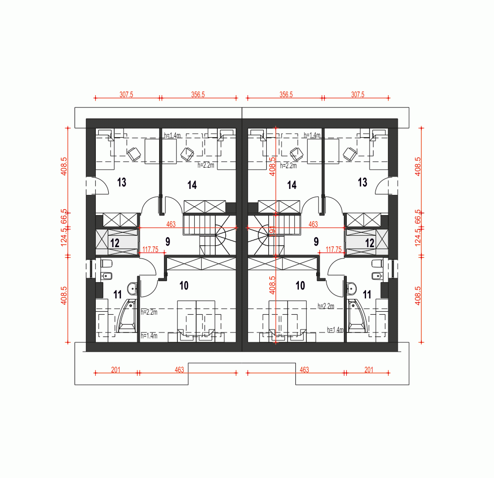
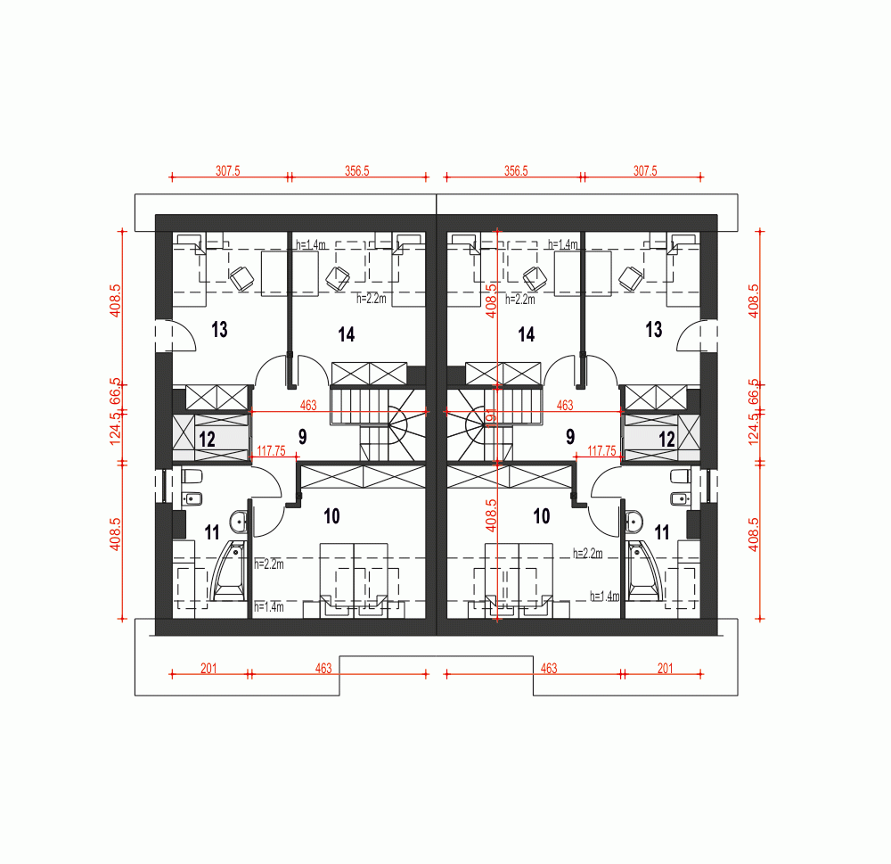
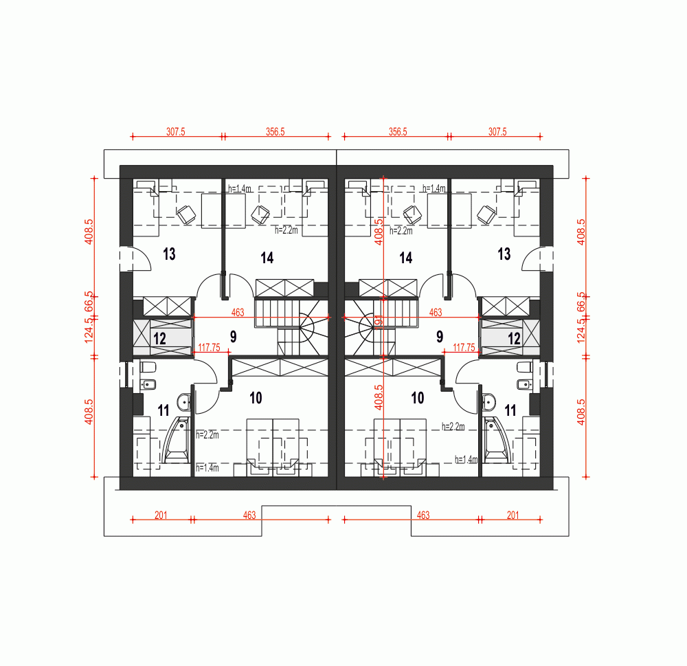
Piętro
Przekrój
Usytuowanie na działce
Dane techniczne
- Powierzchnia użytkowa207.6 m²
- Powierzchnia zabudowy170.2 m²
- KominekTak
- Liczba łazienek4
- Liczba pokoi10
- Powierzchnia dachu273.6 m²
- Długość domu11.3 m
- Szerokość domu21.2 m
- Wysokość domu8.6 m
- Minimalne wymiary działki19.3 x 26.6m
- GarażZ wiatą garażową
- Rodzaj dachuDwuspadowy
- Kąt nach. dachu35°
Instalacja grzewcza
- Instalacja grzewczaGaz
Zawartość projektu
Zgodnie ze znowelizowaną Ustawą Prawo Budowlane art.34 ust.3, na projekt budowlany składają się trzy części:
- projekt zagospodarowania działki lub terenu
- projekt architektoniczno-budowlany
- projekt techniczny
Nasze projekty oferujemy w 3 egzemplarzach, zawierających projekt architektoniczno-budowlany i projekt techniczny. Projekt zagospodarowania działki lub terenu nie wchodzi w skład projektu oferowanego do sprzedaży. Projekt ten należy zlecić we własnym zakresie lokalnemu projektantowi, który opracuje go na podstawie danych zawartych w projekcie architektoniczno-budowlanym i technicznym, po dostosowaniu projektu do warunków lokalnych i wymagań inwestora.
UWAGA: wszystkie egzemplarze projektu zabezpieczone są hologramami, w części rysunkowej posiadają nadruki zabezpieczające w kolorze zielonym. Zalecamy aby po otrzymaniu przesyłki kontrolować czy na pierwszych stronach projektu znajduje się hologram i czy na rysunkach widoczne są w/w nadruki potwierdzające oryginalność projektu.
Wyrażamy zgodę na wszelkie zmiany zgodne z obowiązującymi przepisami pod warunkiem wprowadzenia ich przez uprawnioną osobę.
Wszystkie zmiany wymienione powyżej powinny być naniesione na oryginał projektu katalogowego trwałą techniką graficzną w kolorze czerwonym lub dołączone jako aneks i podpisane przez osobę uprawnioną dokonująca adaptacji.
**ważne informacje
Projekt w fazie koncepcji dostępny z wydłużonym terminem realizacji. Przy zamówieniu ustalamy termin i pobieramy zadatek 50% podstawowej ceny projektu (jako koszty usługi przygotowania dokumentacji do standardu projektu gotowego, w przypadku rezygnacji z usługi, zadatek nie podlega zwrotowi).
Cena za dodatkowy egzemplarz projektu jest zależna od nazwy projektu!
Dodatki
Bezpłatne dodatki
GratisZestaw umów
GratisZmiany w projekcie
GratisTablica budowy
GratisDziennik budowy
Płatne dodatki

Kosztorys - stan wykończony
540 zł

Projekt wentylacji mechanicznej
1 000 zł














