- Typ projektuWolnostojący
- Powierzchnia użytkowa276 m²
- Kondygnacje
- GarażJednostanowiskowy
- DachDwuspadowy
- Kąt nach. dachu40°
- Odbicie lustrzaneTak
- Czas realizacjimax. czas realizacji 10 dni Zobacz więcej >
Opis
Zgodność z WT 2021 i Eurokodami
Ze względu na dostosowywanie projektu do standardu WT 2021, czas realizacji może się różnić od standardowego.
Skontaktuj się z nami aby poznać szczegóły dotyczące wybranego projektu.
Opis projektu
Ekskluzywny dom piętrowy z wewnętrznym basenem i jednostanowiskowym garażem, o atrakcyjnej nowoczesnej formie i komfortowej funkcji. Dom przeznaczony jest dla 5 cio osobowej rodziny. Parter z wygodnym salonem i kominkiem, przestronną kuchnią i obszerną jadalnią, zapewnia wysoki standard użytkowania przestrzeni ogólnodostępnej. Rozkład pozostałych pomieszczeń zapewnia czytelny rozdział części prywatnej - gabinetu do pracy od części pomocniczo-technicznej - spiżarni, pralni z kotłownią i garażu. Część rekreacyjna z basenem wewnętrznym usuytuowana jest w części ogrodowej budynku i połączona bezpośrednim przejściem z częścią mieszkalną. Piętro przekryte jest dachem o nachyleniu 40 stopni, podniesionym na ściankach kolankowych na wysokość: 1.35 m. Na piętrze zaplanowano część prywatną. Rozkład pomieszczeń zapewnia skuteczny rozdział części sypialnej dla rodziców - sypialnia z widokiem na ogród + garderoba z osobną łazienką, od części przeznaczonej dla dzieci - dwa osobne pokoje, każdy z małą łazienką. W części centralnej piętra zapewniono doświetlenie od frontu i od strony ogrodowej w celu wykorzystania tej przestrzeni na inne cele np.rekreacyjne. Można tutaj wydzielić jedno pomieszczenie dostępne z części komunikacyjnej, sypialni rodziców i garderoby. Dom wyposażony w nowoczesne systemy instalacji wewnętrznych: kolektory słoneczne, wentylację mechaniczną z rekuperatorem i gruntowym wymiennikiem ciepła. Ten dom jednorodzinny nadaje się do usytuowania na działkach z wjazdem od wschodu, południa i zachodu... Sprawdź inne projekty domów - Zapraszamy !
Konstrukcja
fundamenty: betonowe
ściany zewnętrzne: porotherm+styropian termo organika
ściany wewnętrzne: porotherm, cegł.dziurawka, g-k
rodzaj stropu: teriva
elewacje: tynk strukturalny, tynk drewnopodobny
pokrycie dachu: dachówka cem. lub ceram.
Rzuty
Parter
- m²
- 1. Wiatrołap7.9
- 2. Hol6.9
- 3. Pokój11.1
- 4. Łazienka4.9
- 5. Schody4
- 6. Salon37.3
- 7. Jadalnia16.3
- 8. Kuchnia14.4
- 9. Korytarz6
- 10. Pralnia + C.O.*8.6
- 11. Spiżarnia3.1
- 12. Łazienka2.3
- 13. Pom.rekreacyjne58.6
- 14. Garaż*20.8
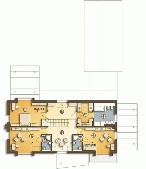
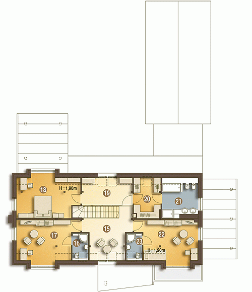
Piętro
- m²
- 15. Hol14
- 16. Łazienka2.8
- 17. Sypialnia18.7
- 18. Sypialnia19.5
- 19. Pokój9.2
- 20. Garderoba7.7
- 21. Łazienka10.3
- 22. Sypialnia18.6
- 23. Łazienka2.8
Przekrój
Usytuowanie na działce
Elewacja
Elewacja
Elewacja
Elewacja
Dane techniczne
- Powierzchnia użytkowa276 m²
- Powierzchnia zabudowy248.2 m²
- KominekTak
- Liczba łazienek4
- Liczba pokoi5
- Powierzchnia dachu293.5 m²
- Kubatura928.8 m³
- Wysokość domu8.8 m
- Minimalne wymiary działki34.6 x 26m
- GarażJednostanowiskowy
- Rodzaj dachuDwuspadowy
- Kąt nach. dachu40°
Instalacja grzewcza
- Instalacja grzewczaGaz
Zawartość projektu
Zgodnie ze znowelizowaną Ustawą Prawo Budowlane art.34 ust.3, na projekt budowlany składają się trzy części:
- projekt zagospodarowania działki lub terenu
- projekt architektoniczno-budowlany
- projekt techniczny
Nasze projekty oferujemy w 3 egzemplarzach, zawierających projekt architektoniczno-budowlany i projekt techniczny. Projekt zagospodarowania działki lub terenu nie wchodzi w skład projektu oferowanego do sprzedaży. Projekt ten należy zlecić we własnym zakresie lokalnemu projektantowi, który opracuje go na podstawie danych zawartych w projekcie architektoniczno-budowlanym i technicznym, po dostosowaniu projektu do warunków lokalnych i wymagań inwestora.
UWAGA: wszystkie egzemplarze projektu zabezpieczone są hologramami, w części rysunkowej posiadają nadruki zabezpieczające w kolorze zielonym. Zalecamy aby po otrzymaniu przesyłki kontrolować czy na pierwszych stronach projektu znajduje się hologram i czy na rysunkach widoczne są w/w nadruki potwierdzające oryginalność projektu.
Wyrażamy zgodę na wszelkie zmiany zgodne z obowiązującymi przepisami pod warunkiem wprowadzenia ich przez uprawnioną osobę.
Wszystkie zmiany wymienione powyżej powinny być naniesione na oryginał projektu katalogowego trwałą techniką graficzną w kolorze czerwonym lub dołączone jako aneks i podpisane przez osobę uprawnioną dokonująca adaptacji.
**ważne informacje
Projekt w fazie koncepcji dostępny z wydłużonym terminem realizacji. Przy zamówieniu ustalamy termin i pobieramy zadatek 50% podstawowej ceny projektu (jako koszty usługi przygotowania dokumentacji do standardu projektu gotowego, w przypadku rezygnacji z usługi, zadatek nie podlega zwrotowi).
Cena za dodatkowy egzemplarz projektu jest zależna od nazwy projektu!
Dodatki
Bezpłatne dodatki
GratisZestaw umów
GratisZmiany w projekcie
GratisTablica budowy
GratisDziennik budowy
Płatne dodatki

Kosztorys - stan wykończony
540 zł

Projekt wentylacji mechanicznej
1 000 zł












