- Typ projektuWolnostojący
- StylTradycyjny
- Powierzchnia użytkowa103.04 m²
- KondygnacjeParterowy, z poddaszem
- GarażJednostanowiskowy
- DachDwuspadowy
- Kąt nach. dachu35°
- Odbicie lustrzaneNie
- Czas realizacjimax. czas realizacji 10 dni Zobacz więcej >
Opis
Zgodność z WT 2021 i Eurokodami
Ze względu na dostosowywanie projektu do standardu WT 2021, czas realizacji może się różnić od standardowego.
Skontaktuj się z nami aby poznać szczegóły dotyczące wybranego projektu.
Opis projektu
Wariant domku ze zmienionym kątem nachylenia dachu na 35 stopni i podniesioną ścianką kolankową o 27 cm.
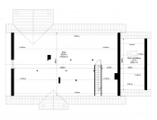
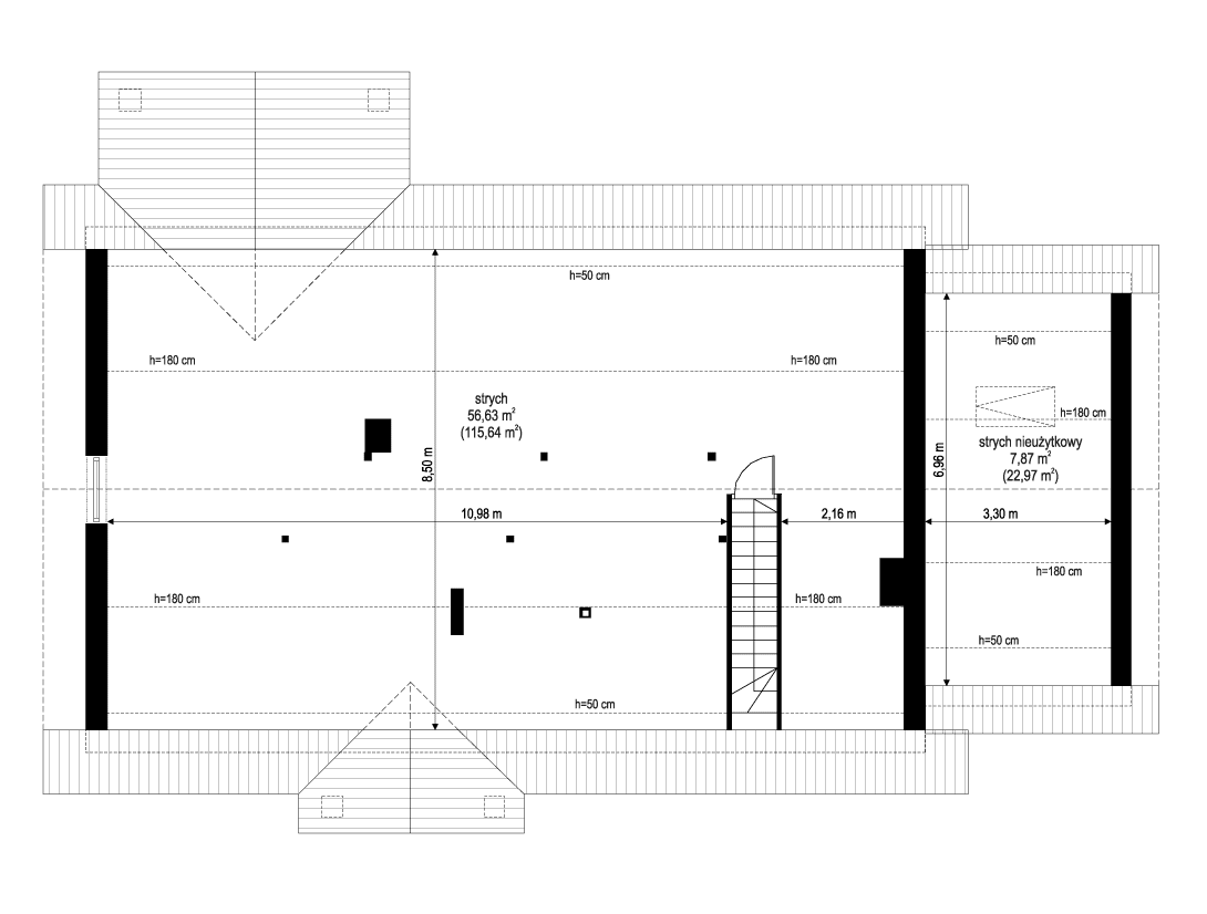
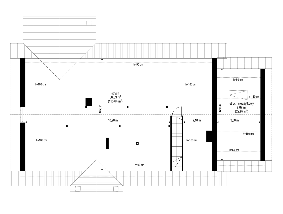
Projekt domu Anatol to wygodny, parterowy dom dla rodziny 4-6 cioosobowej, o bardzo stonowanej architekturze. Projekt Anatol łączy w sobie prostotę, nowoczesną racjonalność i tradycyjny detal architektoniczny. Parterowa bryła budynku przekryta dwuspadowymi dachami, kryje w sobie dodatkową przestrzeń strychu, który po zaadaptowaniu, może służyć jako poddasze użytkowe. Dzięki przemyślanym proporcjom, oraz dodatkom, takim jak ganek frontowy na kolumienkach, czy duża ogrodowa weranda, przekryta dwuspadowym dachem - dom Anatol jest jednocześnie prosty, ciekawy i elegancki. We wnętrzu domku, prócz przestronnego salonu połączonego z holem i kuchnią, zaprojektowano dodatkowo cztery pokoje, duże pomieszczenie gospodarcze, dwie łazienki i wc. To wystarczająca ilość pomieszczeń nawet dla dość licznej rodziny. Dobudowany do głównej bryły garaż jest powiększony o dodatkowe pomieszczenie gospodarcze. Schody na strych prowadzą z pomieszczenia gospodarczego - kotłowni. W przypadku adaptacji strychu na poddasze użytkowe należy zmienić układ ścianek działowych kotłowni łazienki i włączyć schody do holu. Dostępna jest także wersja odbicia lustrzanego projektu Anatol. Zapraszamy do zapoznania się z pełną ofertą pracowni MG Projekt: projekt domu Anatol 2.
Konstrukcja
- Fundamentybetonowe
- Ściany zewnętrznedwuwarstwowe: porotherm 25 + styropian + tynk
- Stropdrewniany belkowy
- Elewacjetynk cienkowarstwowy
- Pokrycie dachudachówka ceramiczna
Rzuty
Dane techniczne
- Powierzchnia użytkowa103.04 m²
- Powierzchnia netto111.41 m²
- Powierzchnia zabudowy166.71 m²
- KominekTak
- Liczba łazienek3
- Liczba pokoi5
- Powierzchnia dachu279.14 m²
- Kubatura653 m³
- Długość domu9.3 m
- Szerokość domu18.57 m
- Wysokość domu7.3 m
- Poddaszestrych
- Minimalne wymiary działki18.87 x 25.57m
- GarażJednostanowiskowy
- Rodzaj dachuDwuspadowy
- Kąt nach. dachu35°
Koszty budowy
- Stan surowy192581 zł
- Stan surowy zamknięty261101 zł
- Koszt wykończenia312020 zł
- Koszt instalacji80269 zł
Zawartość projektu
W komplecie nowej wersji dokumentacji projektowej znajdują się 3 egzemplarze projektu architektoniczno-budowlanego oraz 3 egzemplarze projektu technicznego
Projekt architektoniczno-budowlany zawierający:
-opis architektoniczny z elementami konstrukcji,
-część rysunkowa: rzut parteru, poddasza/piętra, rzut dachu w skali 1:100, przekroje skala 1:50,
elewacje skala 1:100.
Projekt techniczny zawierający:
-opis techniczny i konstrukcyjny (obliczenia statyczne - w zależności od projektu włączone w projekt lub stanowiące odrębną teczkę).
Część rysunkowa architektura i konstrukcja:
-rzuty fundamentów, parteru, poddasza, stropu, więźby, dachu / w skali 1:50,
-przekroje przez budynek / budynek skali 1:50,
-elewacje budynku / w skali 1:50 (*niektóre projekty posiadają rysunki w skali 1:100 lub 1:75),
-zestawienie stolarki budowlanej okiennej i drzwiowej,
-szczegóły konstrukcji i ewentualne szczegóły budowlane,
Część instalacyjna:
-część opisowa do projektów instalacji elektrycznych, wodno-kanalizacyjnych, grzewczych, gazowych (jeśli występują).
Część rysunkowa do projektów instalacji:
-schematy instalacji elektrycznych, schemat rozdzielni, plan instalacji odgromowej,
-schematy instalacji wodno-kanalizacyjnej i ciepłej wody,
-schematy instalacji grzewczych,
-schemat instalacji gazowej (jeśli występują).
Do projektu dołączane jest zestawienie materiałowe, z wykazem elementów drewnianych oraz stali budowlanej.
Do projektu dołączone są kopie uprawnień wszystkich projektantów, oraz aktualne zaświadczenia o przynależności do izb zawodowych.
Projekt zawiera oświadczenie projektantów o poprawności projektu w świetle Prawa Budowlanego, a także zawiera informację dotyczącą bezpieczeństwa i ochrony zdrowia ( BIOZ).
Do projektu dołączona jest także zgoda na zmiany adaptacyjne. Zgoda dołączana jest do każdego projektu bezpłatnie. Na Państwa życzenie zakres zgody na zmiany możemy dowolnie rozszerzyć.
Pracownia zezwala na następujące zmiany i odstępstwa od projektu architektoniczno-budowlanego w trakcie jego przystosowywania do lokalizacji:
- Zmianę obrysu zewnętrznego ścian zewnętrznych.
- Zmianę obrysu wewnętrznego ścian zewnętrznych.
- Zmianę układu ścian wewnętrznych działowych.
- Zmianę funkcji, ilości i usytuowania poszczególnych pomieszczeń na dowolnej kondygnacji w projekcie.
- Zmianę ukształtowania, ilości i kąta nachylenia połaci dachowych.
- Zmianę ilości, umiejscowienia i wielkości otworów okiennych i drzwiowych.
- Zmianę rodzaju materiału i technologii wykonania ścian zewnętrznych oraz wewnętrznych oraz ścian fundamentowych.
- Zmianę rodzaju i technologii wykonania stropów nad dowolną kondygnacją.
- Zmianę umiejscowienia, kształtu i materiału wykonania schodów w budynku.
- Zmianę wielkości, kształtu i materiałów, bądź likwidacja: tarasów, podestów i balkonów.
- Likwidację lub dodanie dowolnej ilości:
- lukarn,
- wykuszy,
- podcieni,
- balkonów,
- loggii,
- kolumn,
- pilastrów,
- ganków,
- werand.
- Zmianę materiałów wykończeniowych, instalacyjnych, izolacyjnych.
- Zmianę rodzaju pokrycia dachowego.
- Doprojektowanie bądź likwidacja podpiwniczenia - częściowego lub całkowitego.
Dodatki
Bezpłatne dodatki
GratisZestaw umów
GratisZmiany w projekcie
PromocjaProjekt szamba szczelnego
GratisTablica budowy
GratisDziennik budowy
Płatne dodatki

Pakiet wentylacja mechaniczna i kominek DGP
550 zł

Kosztorys inwestorski
600 zł

Pakiet odkurzacz centralny
550 zł

Wersja elektroniczna projektu
600 zł

Pakiet instalacja solarna
550 zł

Pakiet ogrzewanie podłogowe
550 zł

Pakiet powietrzna pompa ciepła
550 zł

Pakiet płaszcz wodny
550 zł

Pakiet kotłownia na paliwo stałe
550 zł

Pakiet klimatyzacja w domu
550 zł

Projekt ogrodzenia
750 zł

Pakiet instalacja fotowoltaiczna
550 zł

Pakiet kominek z DGP
500 zł

Pakiet gruntowa pompa ciepła
550 zł

Projekt altan i grilów ogrodowych
850 zł

Dodatkowy egzemplarz do projektu
650 zł








































