Promocja ważna do
05-03-2026
- Typ projektuWolnostojący
- StylTradycyjny
- Powierzchnia użytkowa138.9 m²
- KondygnacjeParterowy, z poddaszem
- GarażJednostanowiskowy
- DachWielospadowy
- Kąt nach. dachu40°
- Odbicie lustrzaneTak
- Czas realizacjido 7 dni roboczych Zobacz więcej >
Opis
Zgodność z WT 2021 i Eurokodami
Ze względu na dostosowywanie projektu do standardu WT 2021, czas realizacji może się różnić od standardowego.
Skontaktuj się z nami aby poznać szczegóły dotyczące wybranego projektu.
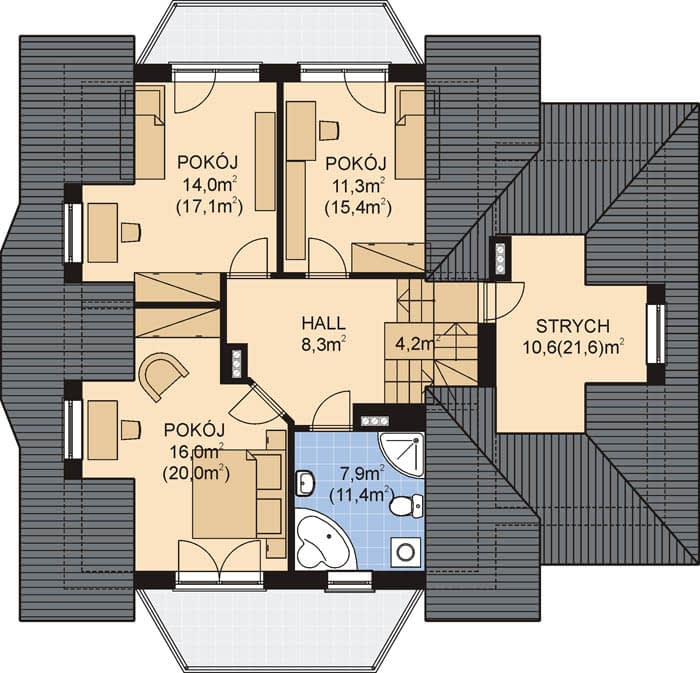
Rzuty
Dane techniczne
- Powierzchnia użytkowa138.9 m²
- Powierzchnia zabudowy126.8 m²
- Liczba pokoi5
- Powierzchnia dachu215.4 m²
- Kubatura216 m³
- Wysokość domu8.2 m
- Minimalne wymiary działki18.84 x 21.26m
- GarażJednostanowiskowy
- Rodzaj dachuWielospadowy
- Kąt nach. dachu40°
Zawartość projektu
Komplet dokumentacji projektowej składa się z następujących części:
Architektury
- rzuty kondygnacji
- rzut więźby dachowej
- zestawienie drewna na konstrukcję dachową
- perspektywy więźby dachowej
- przekroje pionowe
- elewacje
- wykaz stolarki
Konstrukcji
- rzut fundamentów
- rzuty stropów
- szczegóły konstrukcyjne: belki, żebra, podciągi, słupy itp.
- schody
- wykaz stali
Instalacji sanitarnych
- projekt instalacji wodno-kanalizacyjnej
- projekt instalacji centralnego ogrzewania
- projekt instalacji gazowej
Instalcji elektrycznych
- projekt wewnętrznych instalacji elektrycznych
Dodatki
Bezpłatne dodatki
GratisZestaw umów
GratisZmiany w projekcie
GratisTablica budowy
GratisDziennik budowy













