Projekt domu APS 204 DWULOKALOWY
Promocja ważna do
05-03-2026
- Typ projektuDwurodzinny
- StylTradycyjny
- Powierzchnia użytkowa262.6 m²
- KondygnacjeParterowy, z poddaszem, z piwnicą
- GarażBez garażu
- DachWielospadowy
- Kąt nach. dachu38°
- Odbicie lustrzaneTak
- Czas realizacjido 7 dni roboczych Zobacz więcej >
Opis
Zgodność z WT 2021 i Eurokodami
Ze względu na dostosowywanie projektu do standardu WT 2021, czas realizacji może się różnić od standardowego.
Skontaktuj się z nami aby poznać szczegóły dotyczące wybranego projektu.
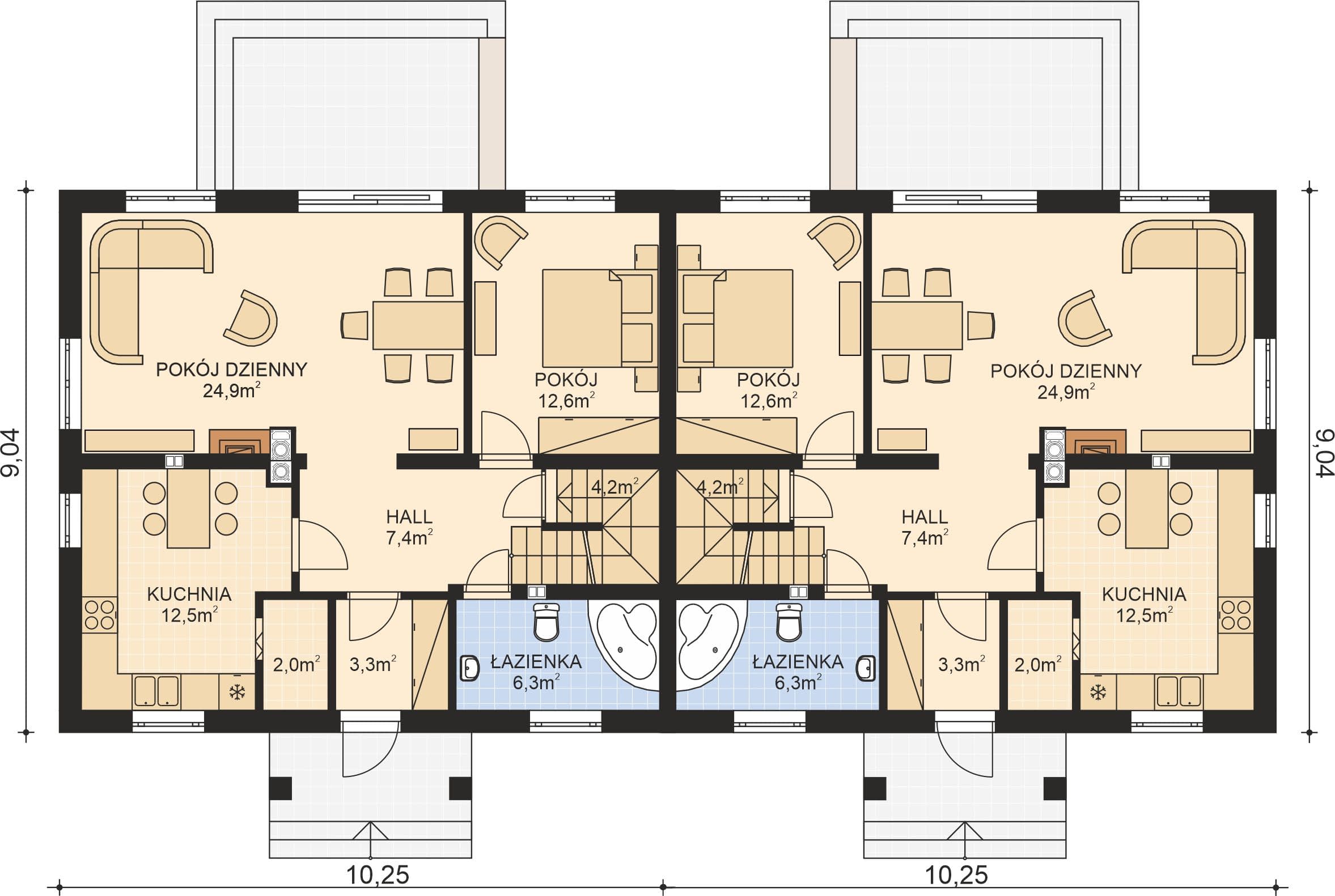
Rzuty
Dane techniczne
- Powierzchnia użytkowa262.6 m²
- Powierzchnia zabudowy185.8 m²
- Liczba pokoi4
- Powierzchnia dachu311.8 m²
- Kubatura750 m³
- Wysokość domu8.18 m
- Minimalne wymiary działki1704 x 2850m
- GarażBez garażu
- Rodzaj dachuWielospadowy
- Kąt nach. dachu38°
Zawartość projektu
Komplet dokumentacji projektowej składa się z następujących części:
Architektury
- rzuty kondygnacji
- rzut więźby dachowej
- zestawienie drewna na konstrukcję dachową
- perspektywy więźby dachowej
- przekroje pionowe
- elewacje
- wykaz stolarki
Konstrukcji
- rzut fundamentów
- rzuty stropów
- szczegóły konstrukcyjne: belki, żebra, podciągi, słupy itp.
- schody
- wykaz stali
Instalacji sanitarnych
- projekt instalacji wodno-kanalizacyjnej
- projekt instalacji centralnego ogrzewania
- projekt instalacji gazowej
Instalcji elektrycznych
- projekt wewnętrznych instalacji elektrycznych
Dodatki
Bezpłatne dodatki
GratisZestaw umów
GratisZmiany w projekcie
GratisTablica budowy
GratisDziennik budowy













