Projekt domu Aria II B-BL1
Promocja ważna do
24-04-2026
- Typ projektuBliźniak
- Powierzchnia użytkowa225.4 m²
- Kondygnacje
- GarażBez garażu
- DachDwuspadowy
- Kąt nach. dachu35°
- Odbicie lustrzaneTak
- Czas realizacjimax. czas realizacji 10 dni Zobacz więcej >
Opis
Zgodność z WT 2021 i Eurokodami
Ze względu na dostosowywanie projektu do standardu WT 2021, czas realizacji może się różnić od standardowego.
Skontaktuj się z nami aby poznać szczegóły dotyczące wybranego projektu.
Opis projektu
(Uwaga: projekty typu bliźniak oferujemy jako domy dwulokalowe, projekt można zamówić również w zabudowie bliźniaczej)Poniższy opis odnosi się do jednego segmentu: Projekt Aria II to klasyczny dom jednorodzinny z użytkowym poddaszem, idealny dla wąskich działek oraz zabudowy bliźniaczej lub szeregowej. Z przodu znajduje się wejście do budynku.Wewnątrz domu zaplanowano funkcjonalną strefę wspólną i pomocniczą. Salon z kominkiem, jadalnią i kuchnią otwiera się na taras. W strefie komunikacyjnej znajduje się praktyczna szafa wnękowa (wiatrołap), schowek pod schodami, wc, pomieszczenie techniczne oraz schody na poddasze.Na piętrze znajdują się trzy sypialnie i przestronna łazienka. Dom Aria charakteryzuje się proporcjonalnym, symetrycznym kształtem oraz klasyczną architekturą, co sprawia, że doskonale wkomponuje się w różne środowiska urbanistyczne. Jego oszczędna forma i niewielka powierzchnia użytkowa czynią go również ekonomicznym w eksploatacji i realizacji. Zewnętrzna elewacja wyróżnia się delikatnymi detalami i naturalną kolorystyką.
Konstrukcja
Rzuty
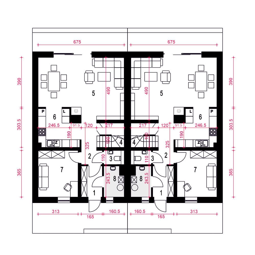
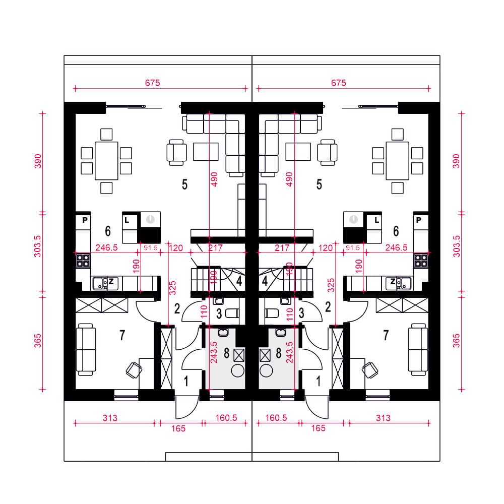
Parter
- m²
- 1. Wiatrołap3.9
- 2. Hol, garderoba5.8
- 3. WC1.7
- 4. Schody4
- 5. Kuchnia9.1
- 6. Salon, jadalnia29.9
- 7. Gabinet11.2
- 8. Pom. tech. CO*3.5
Piętro
Dane techniczne
- Powierzchnia użytkowa225.4 m²
- Powierzchnia zabudowy178 m²
- KominekTak
- Liczba łazienek2
- Liczba pokoi10
- Powierzchnia dachu128.7 m²
- Długość domu12 m
- Szerokość domu15 m
- Wysokość domu8.6 m
- Minimalne wymiary działki20 x 23m
- GarażBez garażu
- Rodzaj dachuDwuspadowy
- Kąt nach. dachu35°
Instalacja grzewcza
- Instalacja grzewczaGaz
- Instalacja opcjonalna
Zawartość projektu
Zgodnie ze znowelizowaną Ustawą Prawo Budowlane art.34 ust.3, na projekt budowlany składają się trzy części:
- projekt zagospodarowania działki lub terenu
- projekt architektoniczno-budowlany
- projekt techniczny
Nasze projekty oferujemy w 3 egzemplarzach, zawierających projekt architektoniczno-budowlany i projekt techniczny. Projekt zagospodarowania działki lub terenu nie wchodzi w skład projektu oferowanego do sprzedaży. Projekt ten należy zlecić we własnym zakresie lokalnemu projektantowi, który opracuje go na podstawie danych zawartych w projekcie architektoniczno-budowlanym i technicznym, po dostosowaniu projektu do warunków lokalnych i wymagań inwestora.
UWAGA: wszystkie egzemplarze projektu zabezpieczone są hologramami, w części rysunkowej posiadają nadruki zabezpieczające w kolorze zielonym. Zalecamy aby po otrzymaniu przesyłki kontrolować czy na pierwszych stronach projektu znajduje się hologram i czy na rysunkach widoczne są w/w nadruki potwierdzające oryginalność projektu.
Wyrażamy zgodę na wszelkie zmiany zgodne z obowiązującymi przepisami pod warunkiem wprowadzenia ich przez uprawnioną osobę.
Wszystkie zmiany wymienione powyżej powinny być naniesione na oryginał projektu katalogowego trwałą techniką graficzną w kolorze czerwonym lub dołączone jako aneks i podpisane przez osobę uprawnioną dokonująca adaptacji.
**ważne informacje
Projekt w fazie koncepcji dostępny z wydłużonym terminem realizacji. Przy zamówieniu ustalamy termin i pobieramy zadatek 50% podstawowej ceny projektu (jako koszty usługi przygotowania dokumentacji do standardu projektu gotowego, w przypadku rezygnacji z usługi, zadatek nie podlega zwrotowi).
Cena za dodatkowy egzemplarz projektu jest zależna od nazwy projektu!
Dodatki
Bezpłatne dodatki
GratisZestaw umów
GratisZmiany w projekcie
GratisTablica budowy
GratisDziennik budowy
Płatne dodatki

Kosztorys - stan wykończony
540 zł

Projekt wentylacji mechanicznej
1 000 zł










