- Typ projektuWolnostojący
- Powierzchnia użytkowa153.2 m²
- KondygnacjeParterowy, z poddaszem
- GarażJednostanowiskowy
- DachCzterospadowy
- Kąt nach. dachu38°
- Odbicie lustrzaneTak
- Czas realizacjido 10 dni roboczych Zobacz więcej >
Opis
Zgodność z WT 2021 i Eurokodami
Ze względu na dostosowywanie projektu do standardu WT 2021, czas realizacji może się różnić od standardowego.
Skontaktuj się z nami aby poznać szczegóły dotyczące wybranego projektu.
Opis projektu
Dom z poddaszem użytkowym, niepodpiwniczony, przeznaczony dla 4-6 osobowej rodziny. Na parterze znajduje się część dzienna z salonem połączonym z jadalnią i bezpośrednim dostępem do kuchni, część gospodarcza oraz gabinet. Na poddaszu zlokalizowano część nocną z sypialniami dzieci, sypialnią rodziców z oddzielną garderobą i ogólnodostępną łazienką. Projekt dostępny w wersji z garażem dwustanowiskowym - Atlas II oraz bez garażu - Atlas III.
Konstrukcja
Ściany zewnętrzne z betonu komórkowego posadowione na betonowych fundamentach. Ściany wewnętrzne z bloczków wapienno-piaskowych. Strop gęstożebrowy oraz w części żelbetowy, monolityczny. Instalacje Wentylacja grawitacyjna. Ogrzewanie gazowe z grzejnikami. Opcjonalnie można dokupić projekt wentylacji mechanicznej oraz projekt ogrzewania podłogowego za pomocą pompy ciepła.
Elewacje pokryte tynkiem strukturalnym w systemie ociepleń Termo Organika. W projekcie zastosowano okna dachowe marki FAKRO. Pokrycie dachu - dachówka ceramiczna lub cementowa CREATON.
Rzuty
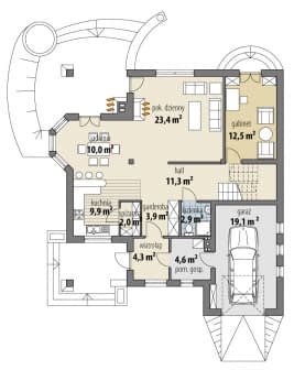
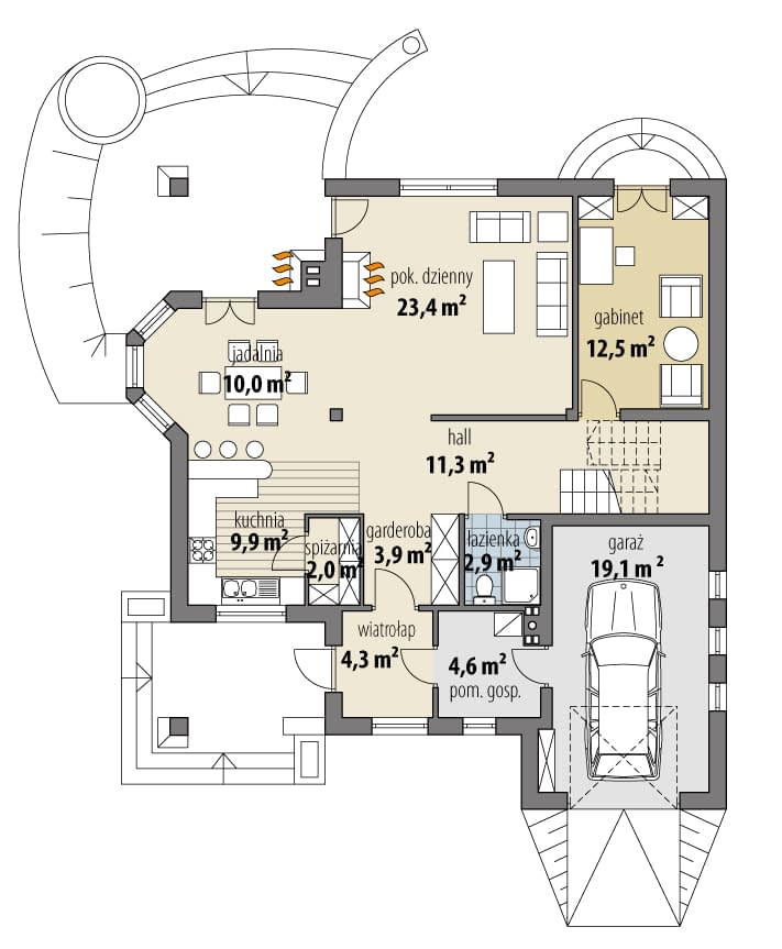
Parter
- 1/1 wiatrołap4.3
- 1/2 garderoba3.9
- 1/3 hall11.3
- 1/4 spiżarnia2
- 1/5 kuchnia9.9
- 1/6 jadalnia10
- 1/7 pok. dzienny23.4
- 1/8 łazienka2.9
- 1/9 pokój12.5
- 1/10 pom. gosp.4.6
- 1/11 garaż19.1
Poddasze
Dane techniczne
- Powierzchnia użytkowa153.2 m²
- Powierzchnia zabudowy152.9 m²
- Liczba łazienek2
- Liczba pokoi4
- Powierzchnia dachu240.6 m²
- Kubatura519.1 m³
- Wysokość domu9 m
- PoddaszeUżytkowe
- Minimalne wymiary działki21.58 x 20.93m
- GarażJednostanowiskowy
- Rodzaj dachuCzterospadowy
- Kąt nach. dachu38°
Zawartość projektu
Komplet dokumentacji projektowej stanowi:
1. Trzy (3) egzemplarze projektu architektoniczno-budowlanego
- architektura – opis,
- architektura - rysunki.
2. Dwa (2) egzemplarze projektu technicznego:
- architektura - rysunki,
- konstrukcja - opis,
- konstrukcja - rysunki,
- instalacje sanitarne,
- instalacje sanitarne opis,
- instalacje elektryczne,
- instalacje elektryczne opis.
3. MATERIAŁY POMOCNICZE w 1 egzemplarzu.
- rysunki wykonawcze elementów żelbetowych,
- zestawienie stali zbrojeniowej,
- zestawienie elementów konstrukcyjnych więźby dachowej
- tabela elementów z kosztorysu stanu surowego zamkniętego (obejmującą robociznę, materiały i sprzęt).
Każda dokumentacja projektowa przygotowywana jest na indywidualne zlecenie zamawiającego oraz jest zabezpieczona specjalną plombą z hologramem, której zerwanie lub usunięcie jest jednoznaczne z wykorzystaniem projektu.
Uprawnienia - wszystkie projekty domów mają stosowne uprawnienia i zaświadczenia potwierdzające przynależność do izb wszystkich projektantów, będących autorami prezentowanych na tej stronie koncepcji domów.
Zmiany w projekcie domu, które nie naruszają jego konstrukcji , możecie Państwo wprowadzać we współpracy z projektantem adaptującym projekt gotowy, bez konieczności konsultowania tego z autorem dokumentacji.
Poniżej prezentujemy zakres zmian, które nie wymagają zgody ze strony naszej Pracowni:
- Zmiany wymiarów fundamentów wynikające z dostosowania budynku do lokalnych warunków gruntowych.
- Wprowadzenie całkowitego lub częściowego podpiwniczenia budynku pod warunkiem nie wynoszenia poziomu parteru w stosunku do poziomu terenu.
- Zaprojektowanie użycia innych materiałów na konstrukcję budynku (ściany stropy) przy zachowaniu wymaganych przepisami i normami parametrów oraz pod warunkiem zachowania walorów użytkowych budynku.
- Rodzaj stropów – przy zachowaniu układu konstrukcji i wymaganych przepisami oraz normami parametrów.
- Materiały ścian zewnętrznych i wykończeniowych (tynki, posadzki, dachówki, izolacja cieplna i przeciwwilgociowa) pod warunkiem utrzymania wymaganych parametrów (tj. np. wytrzymałość, ciepłochłonność).
- Program użytkowy wewnątrz budynku; np. przesunięcie lub likwidacja ścian działowych i zmiana lokalizacji, ilości i kształtu okien oraz drzwi, przy zachowaniu wymaganych przepisami i normami parametrów.
- Kąt nachylenia dachu do 10 proc. lub 5 stopni, pod warunkiem dostosowania konstrukcyjnego i zachowania formy architektonicznej.
- Zmiana przekrojów elementów konstrukcji dachowej wynikająca z dostosowania do materiałów pokrycia lub z dostosowania budynku do innych stref śniegowych i wiatrowych niż podano w projekcie.
- Kolorystyka elewacji, detali dekoracyjnych, kształtu podjazdów i tarasów.
- Instalacja: wodna, kanalizacyjna, gazowa, elektryczna i centralnego ogrzewania - pod warunkiem zachowania obowiązujących norm i przepisów prawa budowlanego.
- Realizacja projektu wg. lustrzanego odbicia.
Dodatki
Bezpłatne dodatki
GratisZestaw umów
GratisZmiany w projekcie
GratisTablica budowy
GratisDziennik budowy
Płatne dodatki

Projekt wentylacji mechanicznej
700 zł

Kosztorys
861 zł

Dodatkowy egzemplarz projektu
246 zł

Projekt instalacji centralnego ogrzewania zasilanego pompą ciepła
650 zł






















