Projekt domu Aura II bez garażu
Promocja ważna do
24-04-2026
- Typ projektuWolnostojący
- Powierzchnia użytkowa144.4 m²
- Kondygnacje
- GarażBez garażu
- DachWielospadowy
- Kąt nach. dachu25°
- Odbicie lustrzaneTak
- Czas realizacjimax. czas realizacji 10 dni Zobacz więcej >
Opis
Zgodność z WT 2021 i Eurokodami
Ze względu na dostosowywanie projektu do standardu WT 2021, czas realizacji może się różnić od standardowego.
Skontaktuj się z nami aby poznać szczegóły dotyczące wybranego projektu.
Opis projektu
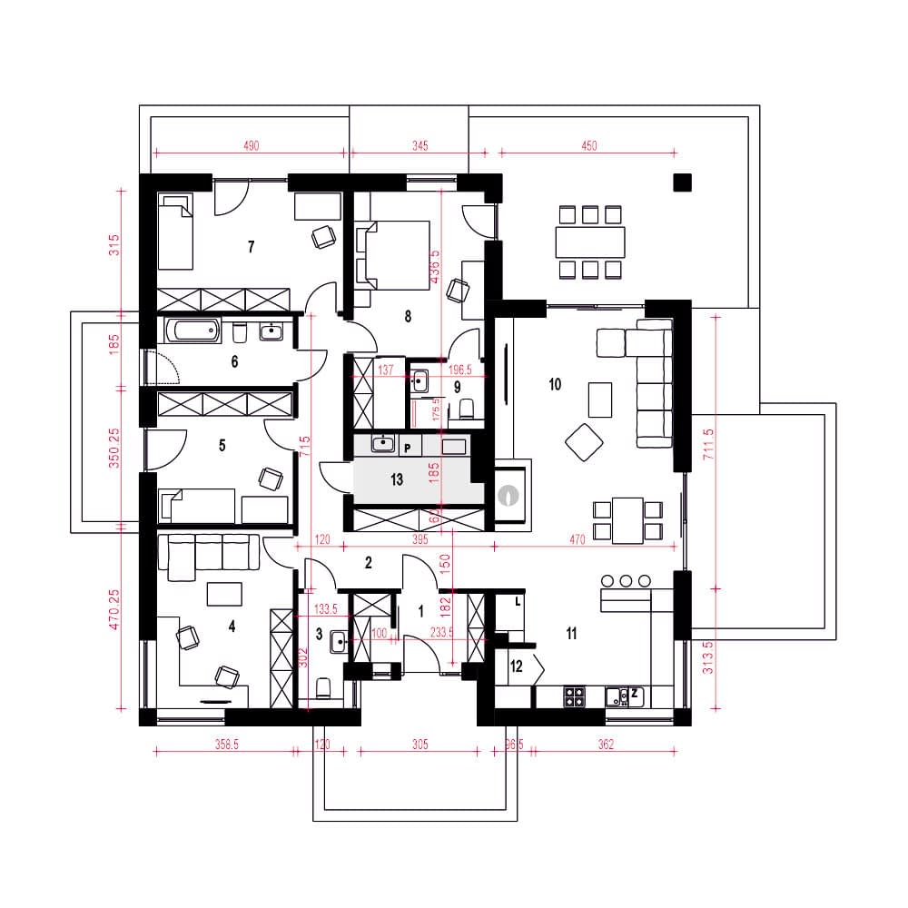
Aura II to propozycja domu dedykowanego 4-5 osobowej rodzinie. Prosta bryła budynku przewidziana na planie kwadratu została przeryta wielospadowym dachem. Nowoczesna stylistyka elewacji stawia na naturalne barwy i materiały. Funkcja domu to 3 pokoje sypialne w tym jedna dwuosobowa z osobną łazienką i garderobą a także wspólna łazienka dla pozostałych mieszkańców. Dodatkowy pokój przewidziany jest jako gabinet, pomieszczenie do pracy zdalnej, dodatkowa sypialnia lub pokój gościnny. Aura II kryje w swej bryle również salon z jadalnią i otwartą kuchnią ze spiżarnią. W strefie komunikacji z najdziemy duże wnękowe szafy i wc. Ze stanowiącego serce domu salonu dostaniemy się na taras.
Konstrukcja
Rzuty
Parter
Dane techniczne
- Powierzchnia użytkowa144.4 m²
- Powierzchnia zabudowy189.7 m²
- KominekTak
- Liczba łazienek2
- Liczba pokoi5
- Powierzchnia dachu281 m²
- Kubatura408 m³
- Długość domu14.6 m
- Szerokość domu14.6 m
- Wysokość domu7 m
- Minimalne wymiary działki22.6 x 22.6m
- GarażBez garażu
- Rodzaj dachuWielospadowy
- Kąt nach. dachu25°
Instalacja grzewcza
- Instalacja grzewczaGaz
Zawartość projektu
Zgodnie ze znowelizowaną Ustawą Prawo Budowlane art.34 ust.3, na projekt budowlany składają się trzy części:
- projekt zagospodarowania działki lub terenu
- projekt architektoniczno-budowlany
- projekt techniczny
Nasze projekty oferujemy w 3 egzemplarzach, zawierających projekt architektoniczno-budowlany i projekt techniczny. Projekt zagospodarowania działki lub terenu nie wchodzi w skład projektu oferowanego do sprzedaży. Projekt ten należy zlecić we własnym zakresie lokalnemu projektantowi, który opracuje go na podstawie danych zawartych w projekcie architektoniczno-budowlanym i technicznym, po dostosowaniu projektu do warunków lokalnych i wymagań inwestora.
UWAGA: wszystkie egzemplarze projektu zabezpieczone są hologramami, w części rysunkowej posiadają nadruki zabezpieczające w kolorze zielonym. Zalecamy aby po otrzymaniu przesyłki kontrolować czy na pierwszych stronach projektu znajduje się hologram i czy na rysunkach widoczne są w/w nadruki potwierdzające oryginalność projektu.
Wyrażamy zgodę na wszelkie zmiany zgodne z obowiązującymi przepisami pod warunkiem wprowadzenia ich przez uprawnioną osobę.
Wszystkie zmiany wymienione powyżej powinny być naniesione na oryginał projektu katalogowego trwałą techniką graficzną w kolorze czerwonym lub dołączone jako aneks i podpisane przez osobę uprawnioną dokonująca adaptacji.
**ważne informacje
Projekt w fazie koncepcji dostępny z wydłużonym terminem realizacji. Przy zamówieniu ustalamy termin i pobieramy zadatek 50% podstawowej ceny projektu (jako koszty usługi przygotowania dokumentacji do standardu projektu gotowego, w przypadku rezygnacji z usługi, zadatek nie podlega zwrotowi).
Cena za dodatkowy egzemplarz projektu jest zależna od nazwy projektu!
Dodatki
Bezpłatne dodatki
GratisZestaw umów
GratisZmiany w projekcie
GratisTablica budowy
GratisDziennik budowy
Płatne dodatki

Kosztorys - stan wykończony
540 zł

Projekt wentylacji mechanicznej
1 000 zł









