Projekt domu AURORA dom letniskowy
- Typ projektuLetniskowy
- Powierzchnia użytkowa37.44 m²
- KondygnacjeParterowy
- GarażBez garażu
- DachDwuspadowy
- Kąt nach. dachu30°
- Odbicie lustrzaneTak
- Czas realizacjido 10 dni roboczych Zobacz więcej >
Opis
Zgodność z WT 2021 i Eurokodami
Ze względu na dostosowywanie projektu do standardu WT 2021, czas realizacji może się różnić od standardowego.
Skontaktuj się z nami aby poznać szczegóły dotyczące wybranego projektu.
Opis projektu
Projekt dostępny również jako CAŁOROCZNY!!!
Dom letniskowy, który jest idealny na weekendy, wyczekany urlop, czy letnie wakacje. Aurora to bóstwo blasku i świtu. Z pewnością każdy poranek w zaprojektowanym przez nas domu, będzie pełen przytulnego, rodzinnego ciepła, pozwalającego odpocząć i naładować się pozytywną energią w czasie wypoczynku. Aurora przyciąga uwagę elegancką prostotą - wszelkie rozwiązania architektoniczne i elementy wykończeniowe zestawiono tu z ogromnym wyczuciem smaku i harmonii. Duże wrażenie robi tylna elewacja, która przechodzi w zadaszony taras z wbudowanym w nią grillowędzarnikiem oraz z pomieszczeniem gospodarczym. Dom będzie miejscem, które od wiosny do jesieni będzie dostarczało niezapomnianych chwil, przy wspólnych kolacjach, spotkaniach oraz biesiadach. Taras, który jest dzięki praktycznej koncepcji architektonicznej miejscem wypoczynku z pewnością będzie cieszyć się niesłabnącym zainteresowaniem domowników i gości. Wnętrze domku wyróżnia się ciekawym układem: funkcjonalny i praktyczny pokój dzienny połączono tu z kuchnią kuchennym, osobnymi pomieszczeniami są łazienka i sypialnia.
Projekt składa się z części architektonicznej, konstrukcyjnej, wewnętrznych instalacji sanitarnych i instalacji elektrycznej. W projekcie załączone są podstawowe zestawienie stali, drewna i stolarki okienno-drzwiowej. Do projektu dołączamy bezpłatną zgodę na wprowadzenie zmian, oświadczenie projektantów o wykonaniu projektu zgodnie z obowiązującymi normami i przepisami oraz kserokopie uprawnień projektantów wraz z aktualnym wpisem do izby. W przypadku zamówienia projektu w technologii lekkiej, drewnianej konstrukcji szkieletowej, powierzchnia użytkowa budynku jest o około 7% większa.
Konstrukcja
- powierzchnia zabudowy - 49,93m2
- kubatura - 232,00m3
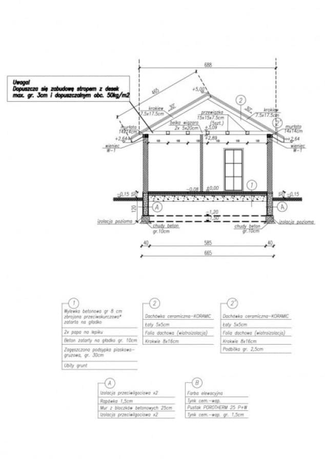
- ściany zewnętrzne murowane grubości 30 cm + 5 cm plyty styropianowe
- ściany wewnętrzne działowe gr. 12 cm
- wszystkie ściany wykonane z pustaków ceramicznych "POROTHERM"
- konstrukcja więźby dachowej drewniana w układzie krokwiowo
- pokrycie dachówka ceramiczna
- projekt posiada kominek
Rzuty
Rzut parteru
- 1. Wiatrołap2.56
- 2. Komunikacja2.95
- 3. Łazienka4.41
- 4. Pokój8.29
- 5. Pokój dzienny z kuchnią19.23
- 6. Taras21.35
- 7. Pom. gosp.1.21
Przekrój A-A
Dane techniczne
- Powierzchnia użytkowa37.44 m²
- Powierzchnia zabudowy49.93 m²
- Liczba pokoi7
- Powierzchnia dachu96 m²
- Kubatura232 m³
- Wysokość domu5.3 m
- Minimalne wymiary działki14.5 x 18.85m
- GarażBez garażu
- Rodzaj dachuDwuspadowy
- Kąt nach. dachu30°
Zawartość projektu
Projekty są dostępne w wersji książkowej, drukowanej w tak zwanym w nowym trybie 3 egzemplarze projektu architektoniczno-budowlanego oraz 3 egzemplarze projektu technicznego. Na życzenie przesyłamy rzuty i przekroje wersji podstawowych dokumentacji w formacie PDF
Każdy projekt architektoniczno-budowlany domu składa się z następujących części:
- strona tytułowa,
- oświadczenie
- część opisowa projektu architektoniczno-budowlanego,
- projektowana charakterystyka energetyczna z analizą,
- część rysunkowej projektu architektoniczno-budowlanego,
- zaświadczenia i uprawnienia.
Każdy projekt techniczny domu składa się z:
- strony tytułowej,
- oświadczenia,
- części opisowej projektu technicznego,
- części rysunkowej projektu technicznego,
- części konstrukcyjnej,
- zaświadczenia i uprawnień,
- zestawień drewna i stali,
-instalacji elektrycznej i odgromowej,
-instalacji sanitarnych, gazowych i centralnego ogrzewania.
Do projektu na życzenie dołączamy obliczenia statyczno-wytrzymałościowe.
Inwestor otrzymuje 3 opieczętowane sztuki projektu architektoniczno-budowlanego oraz 3 egzemplarze projektu technicznego tworzące komplet, każdy z plombą zabezpieczającą i oryginalnym hologramem biura.
Pierwszy egzemplarz tomu I zawiera zgodę in blanco na wszystkie zmiany wprowadzane do projektu po zakupie przez lokalnego wybranego na własną rękę przez Inwestora architekta adaptującego/kierownika budowy. Do teczki projektów dołączamy także zaświadczenia i aktualne wpisy do Izb autorów projektu oraz wpisy aktualne na czas sporządzenia projektu.
Dodatki
Bezpłatne dodatki
GratisZestaw umów
GratisZmiany w projekcie
GratisTablica budowy
GratisDziennik budowy
Płatne dodatki

Kosztorys
470 zł

Dodatkowy egzemplarz projektu
450 zł

Projekt wentylacji mechanicznej z rekuperatorem
450 zł

Projekt fotowoltaiki dla domu
750 zł

Projekt instalacji z ogrzewaniem podłogowym
400 zł

Elektroniczna wersja projektu
600 zł









