Projekt domu BK-65 BUDYNEK GOSPODARCZY
Promocja ważna do
03-04-2026
- Typ projektuWolnostojący
- StylNowoczesny
- Powierzchnia użytkowa93.19 m²
- KondygnacjeParterowy
- GarażBez garażu
- DachPłaski
- Odbicie lustrzaneTak
- Czas realizacji5 dni roboczych Zobacz więcej >
Opis
Zgodność z WT 2021 i Eurokodami
Ze względu na dostosowywanie projektu do standardu WT 2021, czas realizacji może się różnić od standardowego.
Skontaktuj się z nami aby poznać szczegóły dotyczące wybranego projektu.
Opis projektu
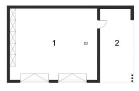
Nowoczesny budynek gospodarczy z płaskim dachem z jednym pomieszczeniem gospodarczym oraz wiatą.
Konstrukcja
Technologia:
Fundamenty - ławy fundamentowe żelbetowe monolityczne
Ściany konstrukcyjne - pustaki gazobetonowe o grubości 24 cm
Stropy - żelbetowe monolityczne
Dach - płaski pokryty papą termozgrzewalną
Rzuty
Dane techniczne
- Powierzchnia użytkowa93.19 m²
- Powierzchnia zabudowy104.63 m²
- Kubatura180.3 m³
- Długość domu8 m
- Szerokość domu13.08 m
- Wysokość domu3.3 m
- Minimalne wymiary działki16 x 19.08m
- GarażBez garażu
- Rodzaj dachuPłaski
Instalacja grzewcza
- Instalacja opcjonalna
Zawartość projektu
Każdy nasz projekt typowy składa się z 3 egzemplarzy projektu architektoniczno-budowlanego oraz 3 egzemplarzy projektu technicznego. Projekty opracowane zostały zgodnie z Warunkami Technicznymi 2021 oraz dostosowane do Eurokodów.
W skład projektu architektoniczno-budowlanego wchodzi opis techniczny, rysunki branży architektonicznej, zgoda na zmiany autora projektu, uprawnienia i zaświadczenia z izby projektantów.
W skład projektu technicznego wchodzi opis techniczny, rysunki branży konstrukcyjnej, sanitarnej (wodno-kanalizacyjnej, centralnego ogrzewania), elektrycznej oraz projektowana charakterystyka energetyczna.
W każdym gotowym projekcie domu naszej pracowni jest wykaz zmian, jakie można do niego wprowadzić bez konsultacji z projektantem macierzystym. Są to:
- zmiana wymiarów fundamentów wynikające z miejscowych warunków gruntowych;
- zmiana instalacji elektrycznej, wodno-kanalizacyjnej, c.o. gazowej;
- wprowadzenia częściowego lub całkowitego podpiwniczenia;
- realizacji wg. lustrzanego odbicia;
- usytuowania lub likwidacji ścianek działowych oraz drzwi wewnętrznych;
- zmiana warstw ścian zewnętrznych;
- zmiana materiałów wykończeniowych;
- zmiana rodzaju stropów przy zachowaniu układu konstrukcyjnego i wymaganej wytrzymałości;
- zmiana stolarki okiennej i drzwiowej oraz materiałów wykończeniowych.
Dodatki
Bezpłatne dodatki
GratisZestaw umów
GratisZmiany w projekcie
GratisTablica budowy
GratisDziennik budowy
Płatne dodatki

Projekt ogrzewanie podłogowe
500 zł

Pompa ciepła powietrzna / gruntowa
370 zł

Projekt wentylacji mechanicznej
800 zł

Dodatkowy egzemplarz projektu
400 zł

Wersja elektroniczna projektu
400 zł

Kosztorys inwestorski+przedmiar
550 zł





