Projekt domu BRAGA - dom dwulokalowy
Promocja ważna do
26-02-2026
- Typ projektuSzeregowiec
- Powierzchnia użytkowa97.85 m²
- KondygnacjePiętrowy
- GarażBez garażu
- DachPłaski
- Kąt nach. dachu1°
- Odbicie lustrzaneTak
- Czas realizacjido 10 dni roboczych Zobacz więcej >
Opis
Zgodność z WT 2021 i Eurokodami
Ze względu na dostosowywanie projektu do standardu WT 2021, czas realizacji może się różnić od standardowego.
Skontaktuj się z nami aby poznać szczegóły dotyczące wybranego projektu.
Konstrukcja
FORMA ARCHITEKTONICZNA: Budynek o zwartej bryle, dwukondygnacyjny w zabudowie szeregowej. Budynek przekryty jest dachem płaskim. Maksymalna wysokość budynku wynosi 6,84m. Nowoprojektowany budynek swoją formą nawiązywać winien do zabudowy występującej w sąsiedztwie planowanej inwestycji.
KONSTRUKCJA:
Główne rozwiązania konstrukcyjno - materiałowe: Projektowany budynek zaprojektowano w technologii murowanej. Główną konstrukcję nośną stanowić będą: ławy, stopy, słupy żelbetowe, ściany nośne w układzie mieszanym z pustaków ceramicznych spięte wieńcami, stropy i stropodach pełny na bazie stropu żelbetowego monolitycznego jednokierunkowo i krzyżowo zbrojonego.
Rzuty
Rzut przyziemia A
- 1 Wiatrołap2.02
- 2 Komunikacja5.23
- 3 Pomieszczenie gospodarcze1.76
- 4 Kuchnia3.14
- 5 Pokój dzienny z aneksem jadalnym15.33
- 6 Łazienka5.8
- 7 Sypialnia10.07
Rzut piętra A
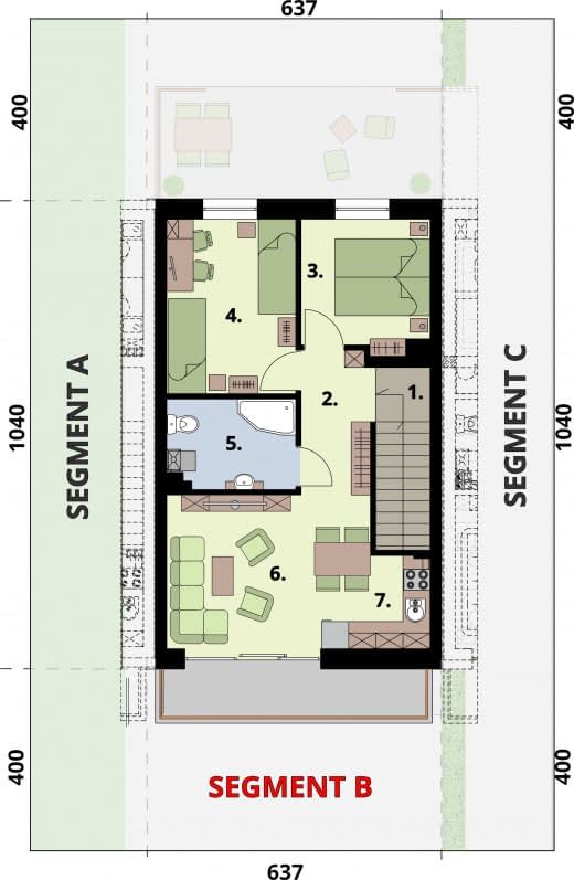
- 1 Klatka schodowa7.48
- 2 Komunikacja4.6
- 3 Sypialnia8.04
- 4 Pokój10.87
- 5 Łazienka5.16
- 6 Pokój dzienny z aneksem jadalnym14.55
- 7 Kuchnia3.8
Rzut przyziemia B
- 1 Wiatrołap2.02
- 2 Komunikacja5.23
- 3 Pom. gospodarcze1.76
- 4 Kuchnia3.14
- 5 Pokój dzienny z aneksem jadalnym15.33
- 5 Łazienka5.8
- 6 Sypialnia10.07
Rzut piętra B
- 1 Klatka schodowa7.48
- 2 Komunikacja4.6
- 3 Sypialnia8.04
- 4 Pokój 10.87
- 5 Łazienka5.16
- 6 Pokój dzienny z aneksem jadalnym14.55
- 7 Kuchnia3.8
Rzut przyziemia C
- 1 Wiatrołap2.02
- 2 Komunikacja5.23
- 3 Pomieszczenie gospodarcze1.76
- 4 Kuchnia3.14
- 5 Pokój dzienny z aneksem jadalnym15.33
- 6 Łazienka5.8
- 7 Sypialnia10.07
Rzut piętra C
Dane techniczne
- Powierzchnia użytkowa97.85 m²
- Powierzchnia zabudowy68.07 m²
- Liczba pokoi14
- Powierzchnia dachu52 m²
- Kubatura442 m³
- Wysokość domu6.84 m
- Minimalne wymiary działki12.45 x 18.5m
- GarażBez garażu
- Rodzaj dachuPłaski
- Kąt nach. dachu1°
Zawartość projektu
Projekty są dostępne w wersji książkowej, drukowanej w tak zwanym w nowym trybie 3 egzemplarze projektu architektoniczno-budowlanego oraz 3 egzemplarze projektu technicznego. Na życzenie przesyłamy rzuty i przekroje wersji podstawowych dokumentacji w formacie PDF
Każdy projekt architektoniczno-budowlany domu składa się z następujących części:
- strona tytułowa,
- oświadczenie
- część opisowa projektu architektoniczno-budowlanego,
- projektowana charakterystyka energetyczna z analizą,
- część rysunkowej projektu architektoniczno-budowlanego,
- zaświadczenia i uprawnienia.
Każdy projekt techniczny domu składa się z:
- strony tytułowej,
- oświadczenia,
- części opisowej projektu technicznego,
- części rysunkowej projektu technicznego,
- części konstrukcyjnej,
- zaświadczenia i uprawnień,
- zestawień drewna i stali,
-instalacji elektrycznej i odgromowej,
-instalacji sanitarnych, gazowych i centralnego ogrzewania.
Do projektu na życzenie dołączamy obliczenia statyczno-wytrzymałościowe.
Inwestor otrzymuje 3 opieczętowane sztuki projektu architektoniczno-budowlanego oraz 3 egzemplarze projektu technicznego tworzące komplet, każdy z plombą zabezpieczającą i oryginalnym hologramem biura.
Pierwszy egzemplarz tomu I zawiera zgodę in blanco na wszystkie zmiany wprowadzane do projektu po zakupie przez lokalnego wybranego na własną rękę przez Inwestora architekta adaptującego/kierownika budowy. Do teczki projektów dołączamy także zaświadczenia i aktualne wpisy do Izb autorów projektu oraz wpisy aktualne na czas sporządzenia projektu.
Dodatki
Bezpłatne dodatki
GratisZestaw umów
GratisZmiany w projekcie
GratisTablica budowy
GratisDziennik budowy
Płatne dodatki

Kosztorys
470 zł

Dodatkowy egzemplarz projektu
450 zł

Projekt wentylacji mechanicznej z rekuperatorem
450 zł

Projekt fotowoltaiki dla domu
750 zł

Projekt instalacji z ogrzewaniem podłogowym
400 zł

Elektroniczna wersja projektu
600 zł













