- Typ projektuWolnostojący
- Powierzchnia użytkowa112.82 m²
- KondygnacjeParterowy, z poddaszem
- GarażBez garażu
- DachDwuspadowy
- Kąt nach. dachu38°
- Odbicie lustrzaneTak
- Czas realizacjimax. czas realizacji 10 dni Zobacz więcej >
Opis
Zgodność z WT 2021 i Eurokodami
Ze względu na dostosowywanie projektu do standardu WT 2021, czas realizacji może się różnić od standardowego.
Skontaktuj się z nami aby poznać szczegóły dotyczące wybranego projektu.
Opis projektu
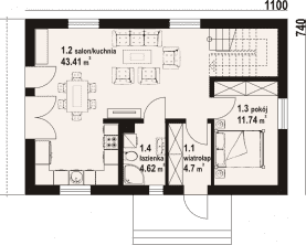
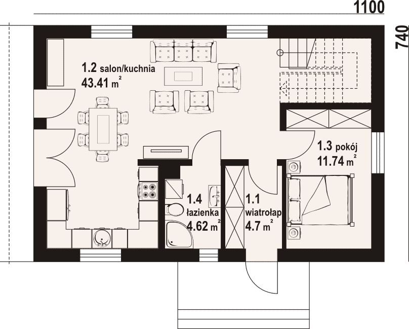
Dom z poddaszem. Duży salon z aneksem jadalnym, schodami na poddasze i wyjściami na taras. Pokój, łazienka i wiatrołap. Na poddaszu trzy pokoje, łazienka, komunikacja i balkon. Zwarta bryła budynku i dach dwuspadowy sprzyjają szybkiej i taniej budowie i niskim kosztom eksploatacji.Rzuty
Parter
Poddasze
- 2.1 - komunikacja6.43 m²
- 2.2 - pokój11.43 m²
- 2.3 - pokój12.93 m²
- 2.4 - łazienka4.64 m²
- 2.5 - pokój12.92 m²
Sytuacja
Dane techniczne
- Powierzchnia użytkowa112.82 m²
- Powierzchnia netto122.81 m²
- Powierzchnia zabudowy81.4 m²
- Liczba łazienek2
- Liczba pokoi5
- Powierzchnia dachu161.04 m²
- Kubatura360 m³
- Wysokość domu7.96 m
- Minimalne wymiary działki19 x 15.4m
- GarażBez garażu
- Rodzaj dachuDwuspadowy
- Kąt nach. dachu38°
Instalacja grzewcza
- Instalacja grzewczakomplet instalacji, kocioł gazowy, instalacja solarna
Zawartość projektu
Zamówiony u nas projekt gotowy otrzymacie Państwo w komplecie składającym się z trzech egzemplarzy projektu architektoniczno-budowlanego wykonanego zgodnie z przepisami Prawa budowlanego (Prawo budowlane - tekst jednolity, Dz. U. 2020 poz. 1333).
Część opisowa projektu architektoniczno-budowlanego składa się z:
opisu architektonicznego zawierającego m.in. opis przyjętych rozwiązań, zestawienia powierzchni (użytkowej, zabudowy, netto), kubatury oraz powierzchni poszczególnych pomieszczeń.
Część rysunkowa projektu architektoniczno-budowlanego składa się między innymi z:
rzutów kondygnacji użytkowych (parteru i jeśli występują: poddasza, piętra, piwnic),
rzutu dachu,
przekroi poprzecznych i ewentualnie podłużnych,
elewacji,
zestawienia stolarki okiennej i drzwiowej.
Ponadto projekt gotowy obejmuje trzy egzemplarze opracowań branżowych stanowiące części projektu technicznego, a mianowicie:
projekt konstrukcji,
projekt instalacji wodno-kanalizacyjnej,
projekt instalacji centralnego ogrzewania,
projekt instalacji gazowej (jeżeli występuje),
projekt instalacji elektrycznej i odgromowej.
Część opisowa projektu technicznego składa się z:
- opisu konstrukcyjnego zawierającego m.in. opis materiałów, z których wykonane są elementy konstrukcyjne, obliczenia statyczne wraz z przyjętymi obciążeniami, zestawienia drewna konstrukcyjnego i zestawienie stali,
- opisu instalacji centralnego ogrzewania, wod-kan, gazowej (jeżeli występuje), elektrycznej i odgromowej precyzującego przyjęte w tych branżach rozwiązania, sposób wykonania instalacji i zapotrzebowania na poszczególne media.
Część rysunkowa projektu technicznego składa się między innymi z:
- rzutu fundamentów,
- rzutów konstrukcyjnych poszczególnych kondygnacji,
- rysunków niezbędnych elementów konstrukcyjnych, zbrojenia płyt oraz innych elementów żelbetowych,
- rzutu więźby dachowej,
- rzutów instalacji centralnego ogrzewania oraz schematu technologicznego kotłowni (jeżeli występują),
- rzutów instalacji wod-kan,
- rzutów oraz rozwinięcia instalacji gazowej (jeżeli występuje),
- rzutów instalacji elektrycznej,
- schematu tablicy TM,
- rzutu instalacji odgromowej.
Do dokumentacji dołączone są projektowana charakterystyka energetyczna, kopie uprawnień oraz przynależności do izb zawodowych projektantów oraz standardowa zgoda na zmiany w projekcie. Komplet dokumentacji znajduje się w praktycznej i estetycznej teczce.
Inne warianty tego projektu
Dodatki
Bezpłatne dodatki
GratisZestaw umów
GratisZmiany w projekcie
GratisTablica budowy
GratisDziennik budowy
Płatne dodatki

Dodatkowy egzemplarz projektu
400 zł













