Projekt domu COLUMBIA
Promocja ważna do
10-03-2026
- Typ projektuWolnostojący
- Powierzchnia użytkowa137.5 m²
- KondygnacjePiętrowy, z poddaszem
- GarażBez garażu
- DachPłaski
- Kąt nach. dachu3°
- Odbicie lustrzaneTak
- Czas realizacjido 10 dni roboczych Zobacz więcej >
Opis
Zgodność z WT 2021 i Eurokodami
Ze względu na dostosowywanie projektu do standardu WT 2021, czas realizacji może się różnić od standardowego.
Skontaktuj się z nami aby poznać szczegóły dotyczące wybranego projektu.
Konstrukcja
- ściany zewnętrzne murowane grubości 30 cm + 12 cm styropian
- ściany wewnętrzne (nośne) gr. 25 cm i działowe gr. 12 cm
- wszystkie ściany wykonane z pustaków ceramicznych "POROTHERM"
- strop nad parterem i piętrem gęstożebrowy "POROTHERM" o gr. 23 cm, nad garażem 27cm
- projekt posiada kominek
- instalacja grzewcza: kocioł gazowy w kotłowni
Zapytaj o dostępność projektu w wersji szkieletowej.
Rzuty
Rzut parteru
- 1. Wiartołap4.12
- 2. Komunikacja10.4
- 3. Łazienka4.41
- 4. Gabinet9.45
- 5. Kotłownia5.06
- 6. Spiżarnia4.07
- 7. Kuchnia z aneksem jadalnym14.63
- 8. Pokój dzienny20.46
Rzut piętra
- 1. Komunikacja12.04
- 2. Garderoba6.62
- 4. Pokój12.88
- 3. Pokój11.93
- 5. Łazienka8.61
- 6. Garderoba4.57
- 7. sypialnia13.31
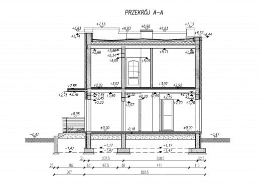
Przekrój A-A
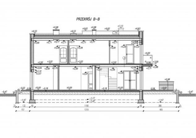
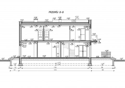
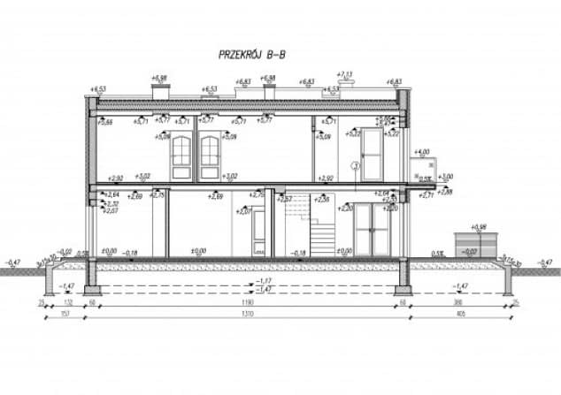
Przekrój B-B
Dane techniczne
- Powierzchnia użytkowa137.5 m²
- Powierzchnia zabudowy144.64 m²
- Liczba pokoi15
- Powierzchnia dachu75 m²
- Kubatura683.31 m³
- Wysokość domu7.6 m
- PoddaszeUżytkowe
- Minimalne wymiary działki24.12 x 16m
- GarażBez garażu
- Rodzaj dachuPłaski
- Kąt nach. dachu3°
Zawartość projektu
Projekty są dostępne w wersji książkowej, drukowanej w tak zwanym w nowym trybie 3 egzemplarze projektu architektoniczno-budowlanego oraz 3 egzemplarze projektu technicznego. Na życzenie przesyłamy rzuty i przekroje wersji podstawowych dokumentacji w formacie PDF
Każdy projekt architektoniczno-budowlany domu składa się z następujących części:
- strona tytułowa,
- oświadczenie
- część opisowa projektu architektoniczno-budowlanego,
- projektowana charakterystyka energetyczna z analizą,
- część rysunkowej projektu architektoniczno-budowlanego,
- zaświadczenia i uprawnienia.
Każdy projekt techniczny domu składa się z:
- strony tytułowej,
- oświadczenia,
- części opisowej projektu technicznego,
- części rysunkowej projektu technicznego,
- części konstrukcyjnej,
- zaświadczenia i uprawnień,
- zestawień drewna i stali,
-instalacji elektrycznej i odgromowej,
-instalacji sanitarnych, gazowych i centralnego ogrzewania.
Do projektu na życzenie dołączamy obliczenia statyczno-wytrzymałościowe.
Inwestor otrzymuje 3 opieczętowane sztuki projektu architektoniczno-budowlanego oraz 3 egzemplarze projektu technicznego tworzące komplet, każdy z plombą zabezpieczającą i oryginalnym hologramem biura.
Pierwszy egzemplarz tomu I zawiera zgodę in blanco na wszystkie zmiany wprowadzane do projektu po zakupie przez lokalnego wybranego na własną rękę przez Inwestora architekta adaptującego/kierownika budowy. Do teczki projektów dołączamy także zaświadczenia i aktualne wpisy do Izb autorów projektu oraz wpisy aktualne na czas sporządzenia projektu.
Dodatki
Bezpłatne dodatki
GratisZestaw umów
GratisZmiany w projekcie
GratisTablica budowy
GratisDziennik budowy
Płatne dodatki

Kosztorys
470 zł

Dodatkowy egzemplarz projektu
450 zł

Projekt wentylacji mechanicznej z rekuperatorem
450 zł

Projekt fotowoltaiki dla domu
750 zł

Projekt instalacji z ogrzewaniem podłogowym
400 zł

Elektroniczna wersja projektu
600 zł











