Projekt domu Czarnuszka wiata z wiatą
- Typ projektuWolnostojący
- Powierzchnia użytkowa165.2 m²
- Kondygnacje
- GarażZ wiatą garażową
- DachWielospadowy
- Kąt nach. dachu30°
- Odbicie lustrzaneTak
- Czas realizacjimax. czas realizacji 10 dni Zobacz więcej >
Opis
Zgodność z WT 2021 i Eurokodami
Ze względu na dostosowywanie projektu do standardu WT 2021, czas realizacji może się różnić od standardowego.
Skontaktuj się z nami aby poznać szczegóły dotyczące wybranego projektu.
Opis projektu
Czarnuszka to projekt dużego, bazkompromisowego w funkcji domu jednorodzinnego dla 4-5 osobowej rodziny. Główna bryła Czarnuszki jest założona na planie kwadratu przekryta regularnym dachem o kącie nachylenia 30 stopni. Strefa wejściowa znajduje się pośrodku elewacji frontowej zaakcentowana jest naturalną okładziną kamienną. Podobnie podcień tarasowy ozdobiony jest kamienną okładziną. Elewacje budynku są na przeważającej powierzchni białe z drewnianymi i kamiennymi detalami.Wewnątrz Czarnuszki zaprojektowano cztery sypialnie. Trzy z nich mają identyczne powierzchnie, własne wyjścia balkonowe na tarasy i wspólną łazienkę a czwarta jest większa posiada własną garderobę oraz indywidualna łazienkę. Największa sypialnia, usytuowana w centralnej, tylnej części budynku ma własne wyjście na ogród poprzez taras, podobnie części - w założeniu dwuosobowa, posiada indywidualną garderobę, łazienkę i osobne wyjście na taras ogrodowy.Przy dużej kuchni, otwartej na jadalnię i salon, przewidziano wygodną spiżarnię. Duży salon z kominkiem posiada duże przeszklenie z wyjściem na zadaszony taras. Z jadani można wyjść na osobny taras na którym nożna ustawić stolik. W holu przewidziano miejsce na garderobę wnękową a w holu wnęka na szafę oraz WC. W centralnej strefie znajduje się niewielka pralnia. Do kotłowni wchodzi się bezpośrednio z wiatrołapu. Cały projekt zawiera wszystko co niezbędne dla komfortowego życia dla nowoczesnej rozwojowej rodziny. Polecamy go do budowy na nowych osiedlach.
Konstrukcja
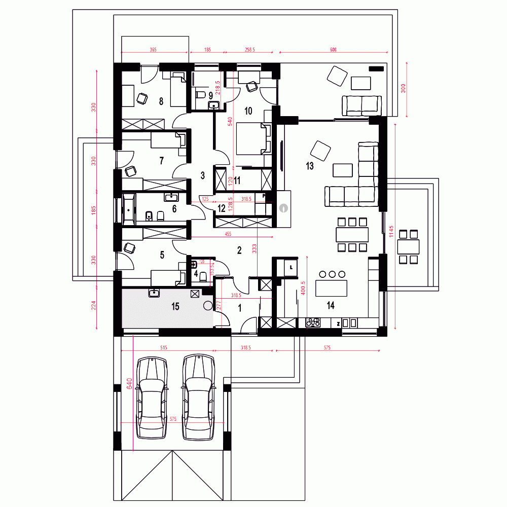
Rzuty
Parter
- m²
- 1. Wiatrołap, garderoba8.5
- 2. Hol10.7
- 3. Korytarz9.9
- 4. WC1.8
- 5. Pokój11.8
- 6. Łazienka6.6
- 7. Pokój11.8
- 8. Pokój11.8
- 9. Łazienka3.9
- 10. Pokój15.6
- 11. Garderoba3.8
- 12. Pralnia3.7
- 13. Salon, Jadalnia42.9
- 14. Kuchnia , Spiżarnia22.3
- 15. Pomieszczenie techniczne*11.2
Przekrój
Usytuowanie na działce
Dane techniczne
- Powierzchnia użytkowa165.2 m²
- Powierzchnia zabudowy218.5 m²
- KominekTak
- Liczba łazienek2
- Liczba pokoi5
- Powierzchnia dachu319.5 m²
- Długość domu15.4 m
- Szerokość domu15.4 m
- Wysokość domu8.3 m
- Minimalne wymiary działki23.4 x 23.4m
- GarażZ wiatą garażową
- Rodzaj dachuWielospadowy
- Kąt nach. dachu30°
Instalacja grzewcza
- Instalacja grzewczaGaz
Zawartość projektu
Zgodnie ze znowelizowaną Ustawą Prawo Budowlane art.34 ust.3, na projekt budowlany składają się trzy części:
- projekt zagospodarowania działki lub terenu
- projekt architektoniczno-budowlany
- projekt techniczny
Nasze projekty oferujemy w 3 egzemplarzach, zawierających projekt architektoniczno-budowlany i projekt techniczny. Projekt zagospodarowania działki lub terenu nie wchodzi w skład projektu oferowanego do sprzedaży. Projekt ten należy zlecić we własnym zakresie lokalnemu projektantowi, który opracuje go na podstawie danych zawartych w projekcie architektoniczno-budowlanym i technicznym, po dostosowaniu projektu do warunków lokalnych i wymagań inwestora.
UWAGA: wszystkie egzemplarze projektu zabezpieczone są hologramami, w części rysunkowej posiadają nadruki zabezpieczające w kolorze zielonym. Zalecamy aby po otrzymaniu przesyłki kontrolować czy na pierwszych stronach projektu znajduje się hologram i czy na rysunkach widoczne są w/w nadruki potwierdzające oryginalność projektu.
Wyrażamy zgodę na wszelkie zmiany zgodne z obowiązującymi przepisami pod warunkiem wprowadzenia ich przez uprawnioną osobę.
Wszystkie zmiany wymienione powyżej powinny być naniesione na oryginał projektu katalogowego trwałą techniką graficzną w kolorze czerwonym lub dołączone jako aneks i podpisane przez osobę uprawnioną dokonująca adaptacji.
**ważne informacje
Projekt w fazie koncepcji dostępny z wydłużonym terminem realizacji. Przy zamówieniu ustalamy termin i pobieramy zadatek 50% podstawowej ceny projektu (jako koszty usługi przygotowania dokumentacji do standardu projektu gotowego, w przypadku rezygnacji z usługi, zadatek nie podlega zwrotowi).
Cena za dodatkowy egzemplarz projektu jest zależna od nazwy projektu!
Dodatki
Bezpłatne dodatki
GratisZestaw umów
GratisZmiany w projekcie
GratisTablica budowy
GratisDziennik budowy
Płatne dodatki

Kosztorys - stan wykończony
540 zł

Projekt wentylacji mechanicznej
1 000 zł












