Projekt domu D160 - WT2021
Promocja ważna do
05-12-2025
- Typ projektuWolnostojący
- StylTradycyjny
- Powierzchnia użytkowa142.67 m²
- KondygnacjeParterowy, z poddaszem
- GarażDwustanowiskowy
- DachCzterospadowy
- Kąt nach. dachu40°
- Odbicie lustrzaneTak
- Czas realizacjidni Zobacz więcej >
Opis
Zgodność z WT 2021 i Eurokodami
Ze względu na dostosowywanie projektu do standardu WT 2021, czas realizacji może się różnić od standardowego.
Skontaktuj się z nami aby poznać szczegóły dotyczące wybranego projektu.
Opis projektu
Projekt domu D160 to propozycja dla tych inwestorów, którzy poszukują efektownego, wygodnego domu z garażem dwustanowiskowym. Dom D160 posiada użytkowe poddasze i jest dedykowany dla 4-6-osobowej rodziny. Na parterze znajduje się pokój dzienny z bezpośrednim wyjściem do ogrodu, przestrzennie połączony z jadalnią i kuchnią. Funkcji mieszkalnej dopełniają spiżarnia oraz toaleta. Dwustanowiskowy garaż dostępny jest poprzez kotłownię. Na poddaszu znajdują się cztery przestronne sypialnie, dwie, wygodne łazienki oraz strych, który można zaadaptować na dodatkowy pokój.Konstrukcja
Ściany zewnętrzne: dwuwarstwoweŚciany wewnętrzne: bloczki 12 cm
Strop: gęstożebrowy
Pokrycie dachu: blachodachówka
Elewacje: tynk cienkowarstwowy na fragm. płytki klinkierowe
Ogrzewanie - piec gazowy
EP70 kWh/m2.rok
Projekt zgodny z Wt2021
Rzuty
Parter
- przedsionek3.66m²
- hall7.52m²
- kuchnia9.14m²
- spiżarnia1.30m²
- salon / jadalnia34.29m²
- pokój11.61m²
- łazienka3.28m²
- kotłownia6.74m²
- garaż34.17m²
- taras 15.77m²
- taras 25.02m²
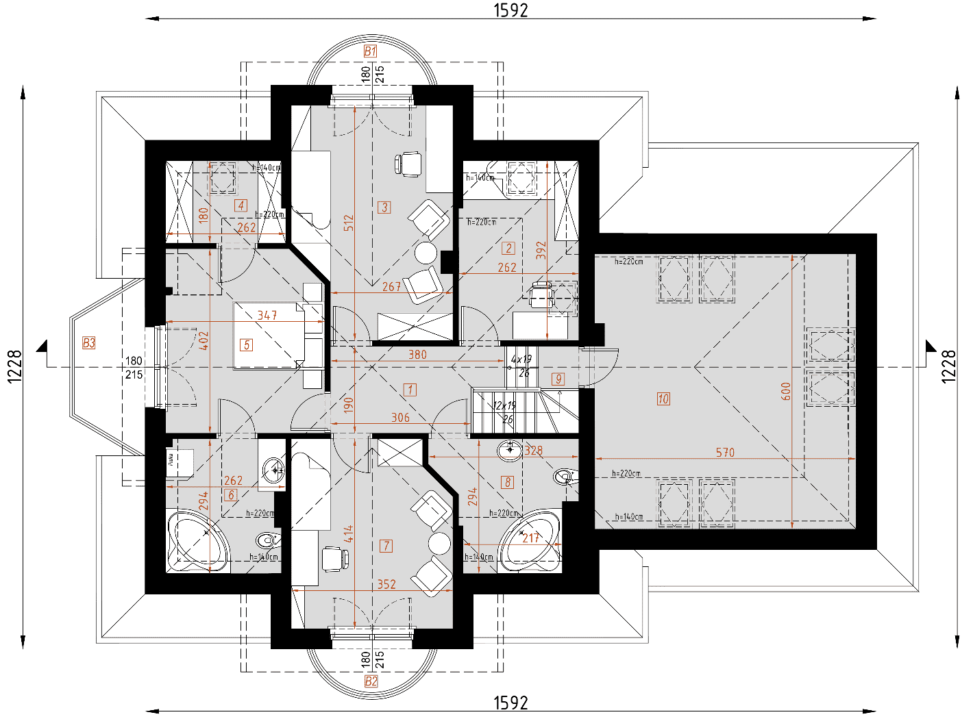
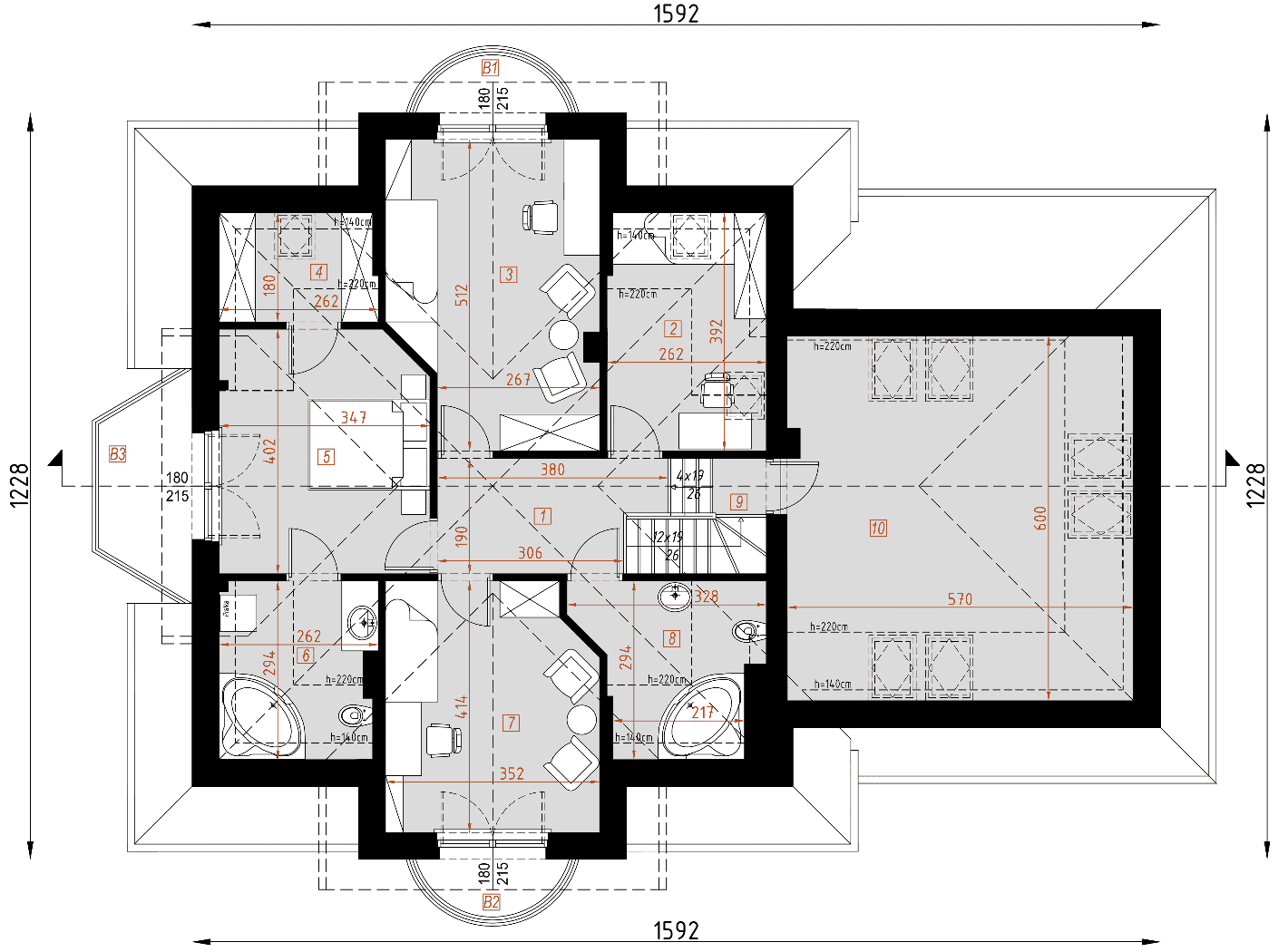
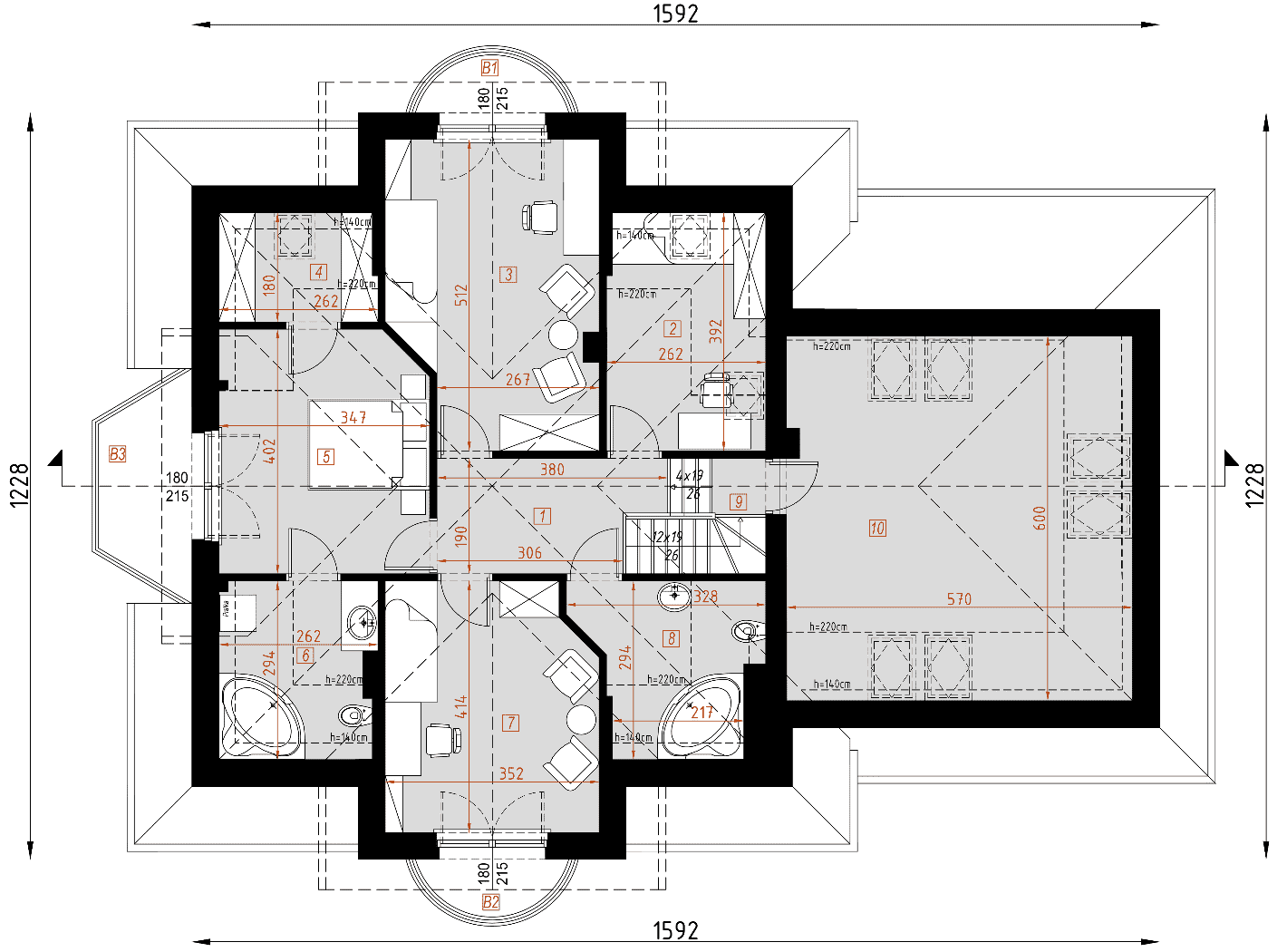
Poddasze
Dane techniczne
- Powierzchnia użytkowa142.67 m²
- Powierzchnia zabudowy146.07 m²
- Liczba łazienek2
- Liczba pokoi5
- Kubatura720 m³
- Wysokość domu8.8 m
- Minimalne wymiary działki17.98 x 24.66m
- GarażDwustanowiskowy
- Rodzaj dachuCzterospadowy
- Kąt nach. dachu40°
Zawartość projektu
*-ważne informacje dodatkowe, zmiany z dnia 22.05.2023r.
Projekty szkieletów, które nadal są koncepcjami, nie będą miały rysunków układów ścian i zestawienia drewna ścian (zestawienie więźby zostaje bez zmian).
Plomby w projektach pozostają bez zmian. Nie rozplombowany projekt będzie można zwrócić na dotychczasowych zasadach.
Projekty domów jednorodzinnych oraz garaży sprzedajemy w 5 egzemplarzach - 3 egzemplarze architektoniczno-budowlane oraz 2 egzemplarze techniczne.
Projekt architektoniczno-budowlany stanowi część projektu budowlanego, który jest podstawą do wydania Decyzji o pozwoleniu na budowę. Projekt budowlany składa się z:
- projektu architektoniczno-budowlanego,
- projektu technicznego,
- projektu zagospodarowania działki.
Część architektoniczno-konstrukcyjną:
- rzut fundamentów – dokładne rozmieszczenie fundamentów, wymiary ław fundamentowych i głębokość ich posadowienia.
- rzuty wszystkich kondygnacji (np. parter, piwnica, piętro) – rozmieszczenie i wymiary wszystkich pomieszczeń, rozmieszczenie i wielkość otworów okiennych i drzwiowych, rozmieszczenie kominów, sugerowana aranżacja wnętrz.
- rzut więźby dachowej – wymiary i rozmieszczenie elementów konstrukcji dachu.
- rzut dachu – wymiary dachu, kąt nachylenia wszystkich połaci dachu, rozmieszczenie okien połaciowych, lukarn, kominów.
- przekroje pionowe – rysunki budynku po pionowym przecięciu, pokazują wszystkie elementy konstrukcji budynku, czyli warstwy podłogi, stropów, dachu.
- elewacje (frontowa, dwie elewacje boczne, ogrodowa) – dokładny wygląd domu z każdej strony.
- zestawienie stolarki okiennej i drzwiowej – wymiary okien i drzwi wykorzystanych w projekcie
Część instalacyjną:
- schemat instalacji wodno-kanalizacyjnej
- schemat instalacji centralnego ogrzewania
- schemat instalacji elektrycznej
- schemat instalacji gazowej - jeśli jest przewidziana w projekcie.
Zmiany w projektach
- Razem z projektem możemy dostarczyć bezpłatnie podpisaną przez autora projektu zgodę na określone zmiany. W myśl ustawy o ochronie praw autorskich jest ona wymagana do wprowadzenia przez architekta adaptującego zmian adaptacyjnych w projekcie. Po otrzymaniu projektu należy udać się do lokalnego architekta, który naniesie dom na działkę i przygotuje projekt zagospodarowania działki oraz dokona zmian w projekcie.
Dodatki
Bezpłatne dodatki
GratisZestaw umów
GratisZmiany w projekcie
GratisTablica budowy
GratisDziennik budowy
GratisCharakterystyka energetyczna
Płatne dodatki

Dodatkowy egzemplarz projektu
450 zł

Kosztorys budowlany inwestorski
990 zł

Projekt wentylacji mechanicznej z rekuperacją
890 zł

Projekt ogrzewania podłogowego
790 zł

Projekt instalacji solarnej
990 zł













