- Typ projektuSzeregowiec
- StylNowoczesny
- Powierzchnia użytkowa205.4 m²
- KondygnacjeParterowy, z poddaszem
- GarażJednostanowiskowy
- DachDwuspadowy
- Kąt nach. dachu40°
- Odbicie lustrzaneTak
- Czas realizacji5 dni Zobacz więcej >
Opis
Zgodność z WT 2021 i Eurokodami
Ze względu na dostosowywanie projektu do standardu WT 2021, czas realizacji może się różnić od standardowego.
Skontaktuj się z nami aby poznać szczegóły dotyczące wybranego projektu.
Opis projektu
Dom D219B to przykład nowoczesnej miejskiej willi bliźniaczej. Prosta, czysta bryła oraz harmonijny podział w elewacjach czynią ten dom prostym i eleganckim. Dzięki temu koszty poniesione na budowę zostały mocno zredukowane. Dodatkowym założeniem przyjętym przy projekcie budynku było harmonijne wpisanie się zarówno w naturalny krajobraz jak również w krajobraz miejski. Jest to budynek parterowy z poddaszem użytkowym, kryty dwuspadowym dachem. W elewacji budynku poprzez materiał zaakcentowano wyraźnie, strefę wejściową. W bryle budynku oddzielono także funkcję mieszkalną dzienną od nocnej, jak również strefę mieszkalną od strefy gospodarczej. Cena dotyczy całości bliźniaka. Powierzchnia użytkowa lokal A 102,88 m2 Powierzchnia użytkowa lokal B 102,52 m2Konstrukcja
Ściany wewnętrzne: bloczki gazobetonoweKonstrukcja dachu: krokwie
Strop: żelbetowy
Pokrycie dachu: blacha,
Elewacja: tynk mineralny cienkowarstwowy na fragmentach ścian płytki elewacyjne - klinkier.
PROJEKT SPEŁNIA WT2021
EP=70 WT2021
Ogrzewanie gazowe
Rzuty
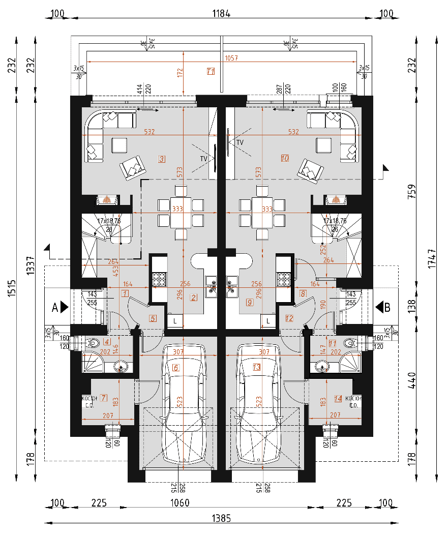
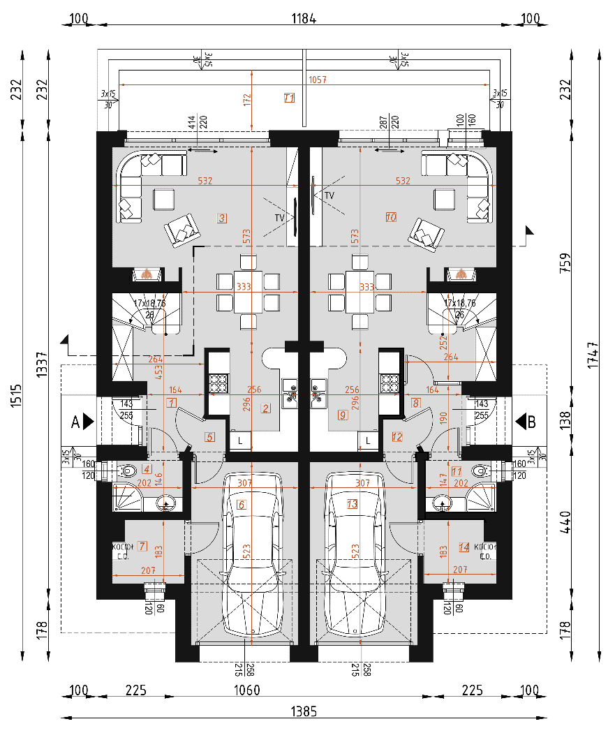
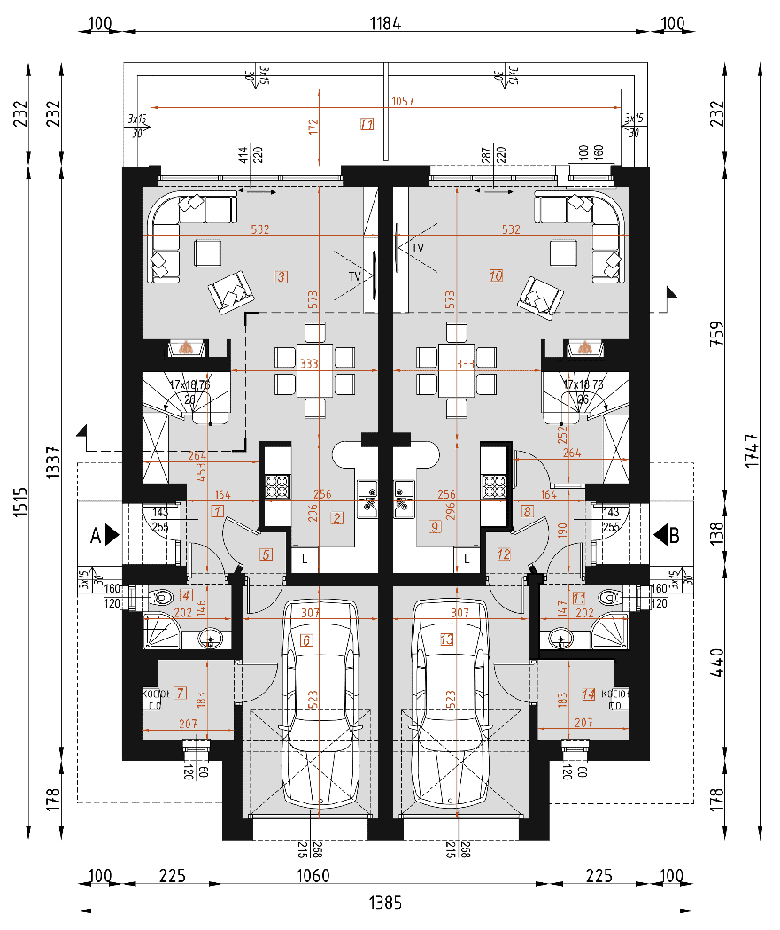
Parter
- hall5.94m²
- kuchnia7.00m²
- salon+jadalnia27.05m²
- wc3.15m²
- korytarz0.73m²
- garaż16.21m²
- kotłownia3.55 m²
- lokal b:
- hall5.94m²
- kuchnia7.00m²
- salon+jadalnia27.05m²
- wc3.15m²
- korytarz0.73m²
- garaż16.21m²
- kotłownia3.55m²
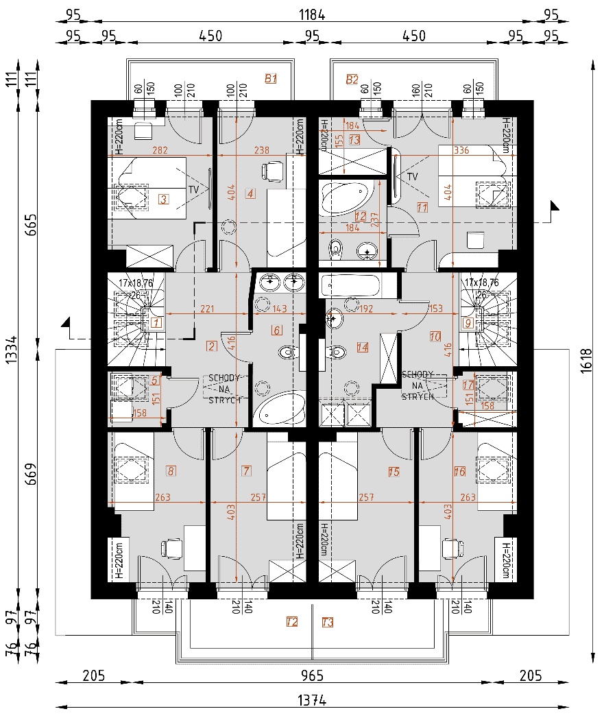
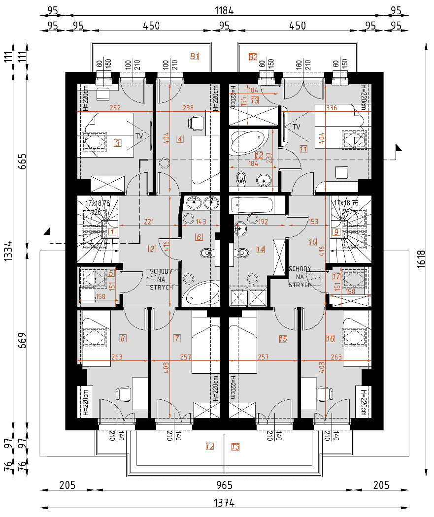
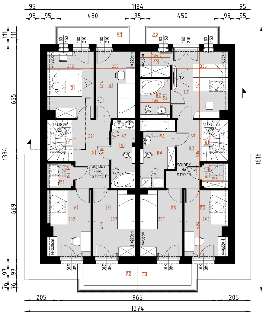
Poddasze
- schody4.01(4.01)m²
- korytarz9.00(9.00)m²
- pokój10.52(11.14)m²
- pokój9.14(9.85)m²
- pralnia2.12(2.39)m²
- łazienka5.42(6.15)m²
- pokój9.88(10.52)m²
- pokój9.77(10.37)m²
- lokal b:
- schody4.01(4.01)m²
- korytarz6.84(6.84)m²
- sypialnia12.70(13.33)m²
- łazienka4.07(4.48)m²
- garderoba2.67(2.94)m²
- łazienka7.50(8.23)m²
- pokój9.88(10.52)m²
- pokój9.77(10.37)m²
- garderoba2.11(2.38)m²
Dane techniczne
- Powierzchnia użytkowa205.4 m²
- Powierzchnia zabudowy168.74 m²
- Liczba łazienek4
- Liczba pokoi8
- Kubatura983 m³
- Wysokość domu8.49 m
- Minimalne wymiary działki23.15 x 19.84m
- GarażJednostanowiskowy
- Rodzaj dachuDwuspadowy
- Kąt nach. dachu40°
Zawartość projektu
*-ważne informacje dodatkowe, zmiany z dnia 22.05.2023r.
Projekty szkieletów, które nadal są koncepcjami, nie będą miały rysunków układów ścian i zestawienia drewna ścian (zestawienie więźby zostaje bez zmian).
Plomby w projektach pozostają bez zmian. Nie rozplombowany projekt będzie można zwrócić na dotychczasowych zasadach.
Projekty domów jednorodzinnych oraz garaży sprzedajemy w 5 egzemplarzach - 3 egzemplarze architektoniczno-budowlane oraz 2 egzemplarze techniczne.
Projekt architektoniczno-budowlany stanowi część projektu budowlanego, który jest podstawą do wydania Decyzji o pozwoleniu na budowę. Projekt budowlany składa się z:
- projektu architektoniczno-budowlanego,
- projektu technicznego,
- projektu zagospodarowania działki.
Część architektoniczno-konstrukcyjną:
- rzut fundamentów – dokładne rozmieszczenie fundamentów, wymiary ław fundamentowych i głębokość ich posadowienia.
- rzuty wszystkich kondygnacji (np. parter, piwnica, piętro) – rozmieszczenie i wymiary wszystkich pomieszczeń, rozmieszczenie i wielkość otworów okiennych i drzwiowych, rozmieszczenie kominów, sugerowana aranżacja wnętrz.
- rzut więźby dachowej – wymiary i rozmieszczenie elementów konstrukcji dachu.
- rzut dachu – wymiary dachu, kąt nachylenia wszystkich połaci dachu, rozmieszczenie okien połaciowych, lukarn, kominów.
- przekroje pionowe – rysunki budynku po pionowym przecięciu, pokazują wszystkie elementy konstrukcji budynku, czyli warstwy podłogi, stropów, dachu.
- elewacje (frontowa, dwie elewacje boczne, ogrodowa) – dokładny wygląd domu z każdej strony.
- zestawienie stolarki okiennej i drzwiowej – wymiary okien i drzwi wykorzystanych w projekcie
Część instalacyjną:
- schemat instalacji wodno-kanalizacyjnej
- schemat instalacji centralnego ogrzewania
- schemat instalacji elektrycznej
- schemat instalacji gazowej - jeśli jest przewidziana w projekcie.
Zmiany w projektach
- Razem z projektem możemy dostarczyć bezpłatnie podpisaną przez autora projektu zgodę na określone zmiany. W myśl ustawy o ochronie praw autorskich jest ona wymagana do wprowadzenia przez architekta adaptującego zmian adaptacyjnych w projekcie. Po otrzymaniu projektu należy udać się do lokalnego architekta, który naniesie dom na działkę i przygotuje projekt zagospodarowania działki oraz dokona zmian w projekcie.
Dodatki
Bezpłatne dodatki
GratisZestaw umów
GratisZmiany w projekcie
GratisTablica budowy
GratisDziennik budowy
GratisCharakterystyka energetyczna
Płatne dodatki

Dodatkowy egzemplarz projektu
450 zł

Kosztorys budowlany inwestorski
990 zł

Projekt wentylacji mechanicznej z rekuperacją
890 zł

Projekt ogrzewania podłogowego
790 zł

Projekt instalacji solarnej
990 zł












