Projekt domu D291 - WT2021
- Typ projektuWolnostojący
- StylNowoczesny
- Powierzchnia użytkowa208.02 m²
- KondygnacjeParterowy, z poddaszem
- GarażDwustanowiskowy
- DachCzterospadowy
- Kąt nach. dachu25°
- Odbicie lustrzaneTak
- Czas realizacji14 dni Zobacz więcej >
Opis
Zgodność z WT 2021 i Eurokodami
Ze względu na dostosowywanie projektu do standardu WT 2021, czas realizacji może się różnić od standardowego.
Skontaktuj się z nami aby poznać szczegóły dotyczące wybranego projektu.
Opis projektu
Nowoczesny, duży dom parterowy. Projekt domu oferuje pięć pokoi sypialnianych, przestronny pokój dzienny połączony z kuchnią. Aż 3 łazienki, garderobę i spiżarnię.Konstrukcja
Ściany zewnętrzne: dwuwarstwowe, pustaki ceramiczne 24 cm + styropian 20cm;Strop: żelbetowy
Konstrukcja dachu: drewniany, krokwiowy
Pokrycie dachu: blachodachówka,
Elewacja: tynk cienkowarstwowy, na fragmentach ścian płyty kamienne
Ogrzewanie - piec gazowy / paliwo stałe (możliwość dokupienia pakietu)
EP70 kWh/m2.rok
Projekt zgodny z Wt2021
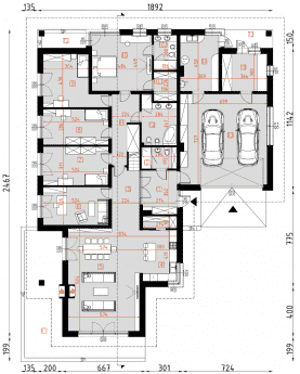
Rzuty
Parter
- przedsionek9.45
- łazienka4.90
- hall14.00
- kuchnia/spiżarnia17.48
- salon/jadalnia46.74
- gabinet15.98
- pokój 116.30
- pokój 215.00
- pokój 317.35
- sypialnia21.68
- łazienka5.20
- garderoba4.41
- korytarz9.27
- łazienka10.26
- garaż50.62
- kotłownia/pralnia13.64
- magazyn/warsztat10.92
- taras 148.46
- taras 25.58
- taras 35.58
Poddasze
Dane techniczne
- Powierzchnia użytkowa208.02 m²
- Powierzchnia zabudowy341 m²
- Liczba łazienek3
- Liczba pokoi5
- Kubatura868 m³
- Wysokość domu7.18 m
- Minimalne wymiary działki32.67 x 26.92m
- GarażDwustanowiskowy
- Rodzaj dachuCzterospadowy
- Kąt nach. dachu25°
Zawartość projektu
Projekty szkieletów, które nadal są koncepcjami, nie będą miały rysunków układów ścian i zestawienia drewna ścian (zestawienie więźby zostaje bez zmian).
Plomby w projektach pozostają bez zmian. Nie rozplombowany projekt będzie można zwrócić na dotychczasowych zasadach.
Projekty domów jednorodzinnych oraz garaży sprzedajemy w 5 egzemplarzach - 3 egzemplarze architektoniczno-budowlane oraz 2 egzemplarze techniczne.
Projekt architektoniczno-budowlany stanowi część projektu budowlanego, który jest podstawą do wydania Decyzji o pozwoleniu na budowę. Projekt budowlany składa się z:
- projektu architektoniczno-budowlanego,
- projektu technicznego,
- projektu zagospodarowania działki.
Część architektoniczno-konstrukcyjną:
- rzut fundamentów – dokładne rozmieszczenie fundamentów, wymiary ław fundamentowych i głębokość ich posadowienia.
- rzuty wszystkich kondygnacji (np. parter, piwnica, piętro) – rozmieszczenie i wymiary wszystkich pomieszczeń, rozmieszczenie i wielkość otworów okiennych i drzwiowych, rozmieszczenie kominów, sugerowana aranżacja wnętrz.
- rzut więźby dachowej – wymiary i rozmieszczenie elementów konstrukcji dachu.
- rzut dachu – wymiary dachu, kąt nachylenia wszystkich połaci dachu, rozmieszczenie okien połaciowych, lukarn, kominów.
- przekroje pionowe – rysunki budynku po pionowym przecięciu, pokazują wszystkie elementy konstrukcji budynku, czyli warstwy podłogi, stropów, dachu.
- elewacje (frontowa, dwie elewacje boczne, ogrodowa) – dokładny wygląd domu z każdej strony.
- zestawienie stolarki okiennej i drzwiowej – wymiary okien i drzwi wykorzystanych w projekcie
Część instalacyjną:
- schemat instalacji wodno-kanalizacyjnej
- schemat instalacji centralnego ogrzewania
- schemat instalacji elektrycznej
- schemat instalacji gazowej - jeśli jest przewidziana w projekcie.
Zmiany w projektach
- Razem z projektem możemy dostarczyć bezpłatnie podpisaną przez autora projektu zgodę na określone zmiany. W myśl ustawy o ochronie praw autorskich jest ona wymagana do wprowadzenia przez architekta adaptującego zmian adaptacyjnych w projekcie. Po otrzymaniu projektu należy udać się do lokalnego architekta, który naniesie dom na działkę i przygotuje projekt zagospodarowania działki oraz dokona zmian w projekcie.
Dodatki
Bezpłatne dodatki
GratisZestaw umów
GratisZmiany w projekcie
GratisTablica budowy
GratisDziennik budowy
GratisCharakterystyka energetyczna
Płatne dodatki

Dodatkowy egzemplarz projektu
490 zł

Kosztorys budowlany inwestorski
990 zł

Projekt wentylacji mechanicznej z rekuperacją
890 zł

Projekt ogrzewania podłogowego
790 zł

Projekt instalacji solarnej do ciepłej wody
990 zł











