Projekt domu D331 - WT2021
Promocja ważna do
05-12-2025
- Typ projektuSzeregowiec
- StylNowoczesny
- Powierzchnia użytkowa204.08 m²
- KondygnacjePiętrowy
- GarażDwustanowiskowy
- DachPłaski
- Kąt nach. dachu1°
- Odbicie lustrzaneTak
- Czas realizacjimax. czas realizacji 10 dni Zobacz więcej >
Opis
Zgodność z WT 2021 i Eurokodami
Ze względu na dostosowywanie projektu do standardu WT 2021, czas realizacji może się różnić od standardowego.
Skontaktuj się z nami aby poznać szczegóły dotyczące wybranego projektu.
Opis projektu
Układ funkcjonalny budynku: Kondygnacja parteru, każdego z lokali składa się z przedsionka wejściowego, salonu z jadalnią oraz kuchnią, łazienki, gabinetu, kotłowni oraz garażu dwustanowiskowego Kondygnacja piętra każdego z lokali składa się z głównej sypialni z łazienką oraz garderobą, trzech pokoi sypialnianych, łazienki, pralni, oraz korytarza z klatką schodową łączącego pomieszczenia. Całość zabudowy okala taras zewnętrzny. D331A to wersja tego projektu w zbliźniaczeniu. WYSOKOŚĆ BUDYNKU (od poz. posadzki parteru +/-0.00 do świetlika) 7,76 m WYSOKOŚĆ BUDYNKU (od poz. terenu do świetlika) MAX. 8,10 m WYSOKOŚĆ BUDYNKU (od poz. terenu do dachu płaskiego) MAX. 7,20 mKonstrukcja
Strop: żelbetowyKonstrukcja dachu: stropodach kąt nachylenia 1,5 stopnia.
Pokrycie dachu: stropodach - papa + żwir; kąt nachylenia świetlika 40 stopni.
Elewacja: tynk żywiczny ciągniony, tynk imitujący drewno, drewno elewacyjne.
Ogrzewanie - piec gazowy
EP70 kWh/m2.rok
Projekt zgodny z Wt2021
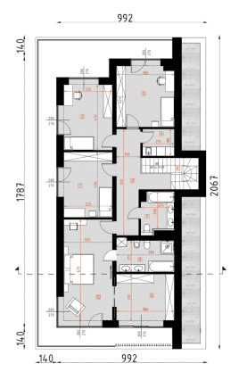
Rzuty
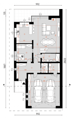
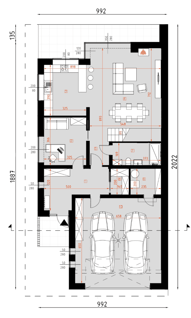
Parter
- wiatrołap12.58
- gabinet/dodatkowy pokój11.91
- kuchnia13.51
- salon z jadalnią35.96
- komunikacja4.12
- kl. schodowa1.40
- łazienka6.34
- garderoba2.80
- kotłownia4.69
- garaż42.78
- taras 15.31
- taras 217.52
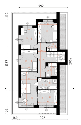
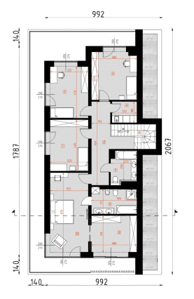
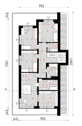
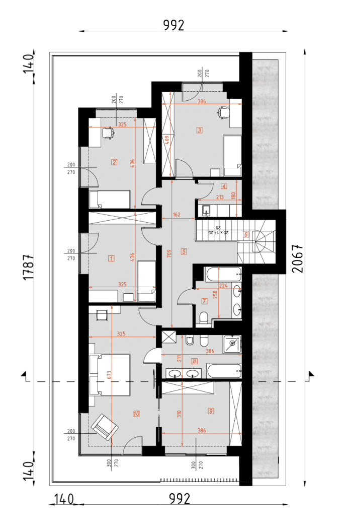
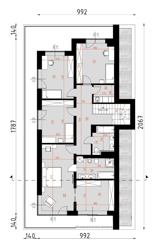
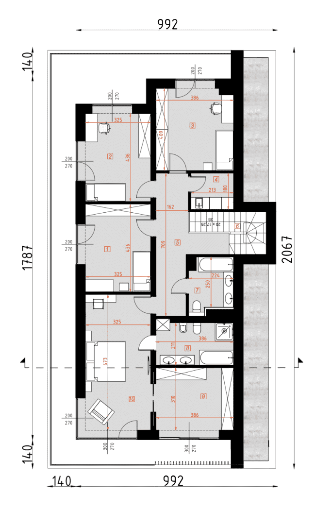
Piętro
Dane techniczne
- Powierzchnia użytkowa204.08 m²
- Powierzchnia zabudowy182.2 m²
- Liczba łazienek3
- Liczba pokoi5
- Kubatura1228 m³
- Wysokość domu8.1 m
- Minimalne wymiary działki27.27 x 16.92m
- GarażDwustanowiskowy
- Rodzaj dachuPłaski
- Kąt nach. dachu1°
Zawartość projektu
*-ważne informacje dodatkowe, zmiany z dnia 22.05.2023r.
Projekty szkieletów, które nadal są koncepcjami, nie będą miały rysunków układów ścian i zestawienia drewna ścian (zestawienie więźby zostaje bez zmian).
Plomby w projektach pozostają bez zmian. Nie rozplombowany projekt będzie można zwrócić na dotychczasowych zasadach.
Projekty domów jednorodzinnych oraz garaży sprzedajemy w 5 egzemplarzach - 3 egzemplarze architektoniczno-budowlane oraz 2 egzemplarze techniczne.
Projekt architektoniczno-budowlany stanowi część projektu budowlanego, który jest podstawą do wydania Decyzji o pozwoleniu na budowę. Projekt budowlany składa się z:
- projektu architektoniczno-budowlanego,
- projektu technicznego,
- projektu zagospodarowania działki.
Część architektoniczno-konstrukcyjną:
- rzut fundamentów – dokładne rozmieszczenie fundamentów, wymiary ław fundamentowych i głębokość ich posadowienia.
- rzuty wszystkich kondygnacji (np. parter, piwnica, piętro) – rozmieszczenie i wymiary wszystkich pomieszczeń, rozmieszczenie i wielkość otworów okiennych i drzwiowych, rozmieszczenie kominów, sugerowana aranżacja wnętrz.
- rzut więźby dachowej – wymiary i rozmieszczenie elementów konstrukcji dachu.
- rzut dachu – wymiary dachu, kąt nachylenia wszystkich połaci dachu, rozmieszczenie okien połaciowych, lukarn, kominów.
- przekroje pionowe – rysunki budynku po pionowym przecięciu, pokazują wszystkie elementy konstrukcji budynku, czyli warstwy podłogi, stropów, dachu.
- elewacje (frontowa, dwie elewacje boczne, ogrodowa) – dokładny wygląd domu z każdej strony.
- zestawienie stolarki okiennej i drzwiowej – wymiary okien i drzwi wykorzystanych w projekcie
Część instalacyjną:
- schemat instalacji wodno-kanalizacyjnej
- schemat instalacji centralnego ogrzewania
- schemat instalacji elektrycznej
- schemat instalacji gazowej - jeśli jest przewidziana w projekcie.
Zmiany w projektach
- Razem z projektem możemy dostarczyć bezpłatnie podpisaną przez autora projektu zgodę na określone zmiany. W myśl ustawy o ochronie praw autorskich jest ona wymagana do wprowadzenia przez architekta adaptującego zmian adaptacyjnych w projekcie. Po otrzymaniu projektu należy udać się do lokalnego architekta, który naniesie dom na działkę i przygotuje projekt zagospodarowania działki oraz dokona zmian w projekcie.
Dodatki
Bezpłatne dodatki
GratisZestaw umów
GratisZmiany w projekcie
GratisTablica budowy
GratisDziennik budowy
GratisCharakterystyka energetyczna
Płatne dodatki

Dodatkowy egzemplarz projektu
450 zł

Kosztorys budowlany inwestorski
990 zł

Projekt wentylacji mechanicznej z rekuperacją
890 zł

Projekt ogrzewania podłogowego
790 zł

Projekt instalacji solarnej
990 zł











