- Typ projektuWolnostojący
 - StylTradycyjny
 - Powierzchnia użytkowa183.74 m²
 - KondygnacjeParterowy, z poddaszem
 - GarażBez garażu
 - DachDwuspadowy
 - Kąt nach. dachu32°
 - Odbicie lustrzaneTak
 - Czas realizacji14 dni Zobacz więcej >
 
Opis
Zgodność z WT 2021 i Eurokodami
Ze względu na dostosowywanie projektu do standardu WT 2021, czas realizacji może się różnić od standardowego.
Skontaktuj się z nami aby poznać szczegóły dotyczące wybranego projektu.
Opis projektu
D53 to dom letniskowy - rekreacji indywisualnej w technologii drewnianej – z bala. Idealny dla 4-5-osobowej rodziny. Ciekawa bryła budynku oraz duże okna stanowią atut tego domu. Bardzo funkcjonalny podział pomieszczeń z oddzielną strefą techniczną, strefą dzienną na parterze i nocną na poddaszu.Konstrukcja
Ściany zwnętrzne: bal drewniany kwadratowyŚciany wewnętrzne: bal drewniany klejony
Elewacja: drewniana
Strop: dźwigar dachowy
Pokrycie dachu: blachodachówka w kształcie gontu
Rzuty
Parter
- hall11.67m²
 - pom.techniczne6.17m²
 - pom. gospodarcze6.61m²
 - wc2.51 m²
 - gabinet19.54 m²
 - łazienka6.15 m²
 - salon47.96 m²
 - kuchnia / jadalnia22.38 m²
 - schody1.35 m²
 - taras31.34 m²
 - taras5.08 m²
 
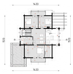
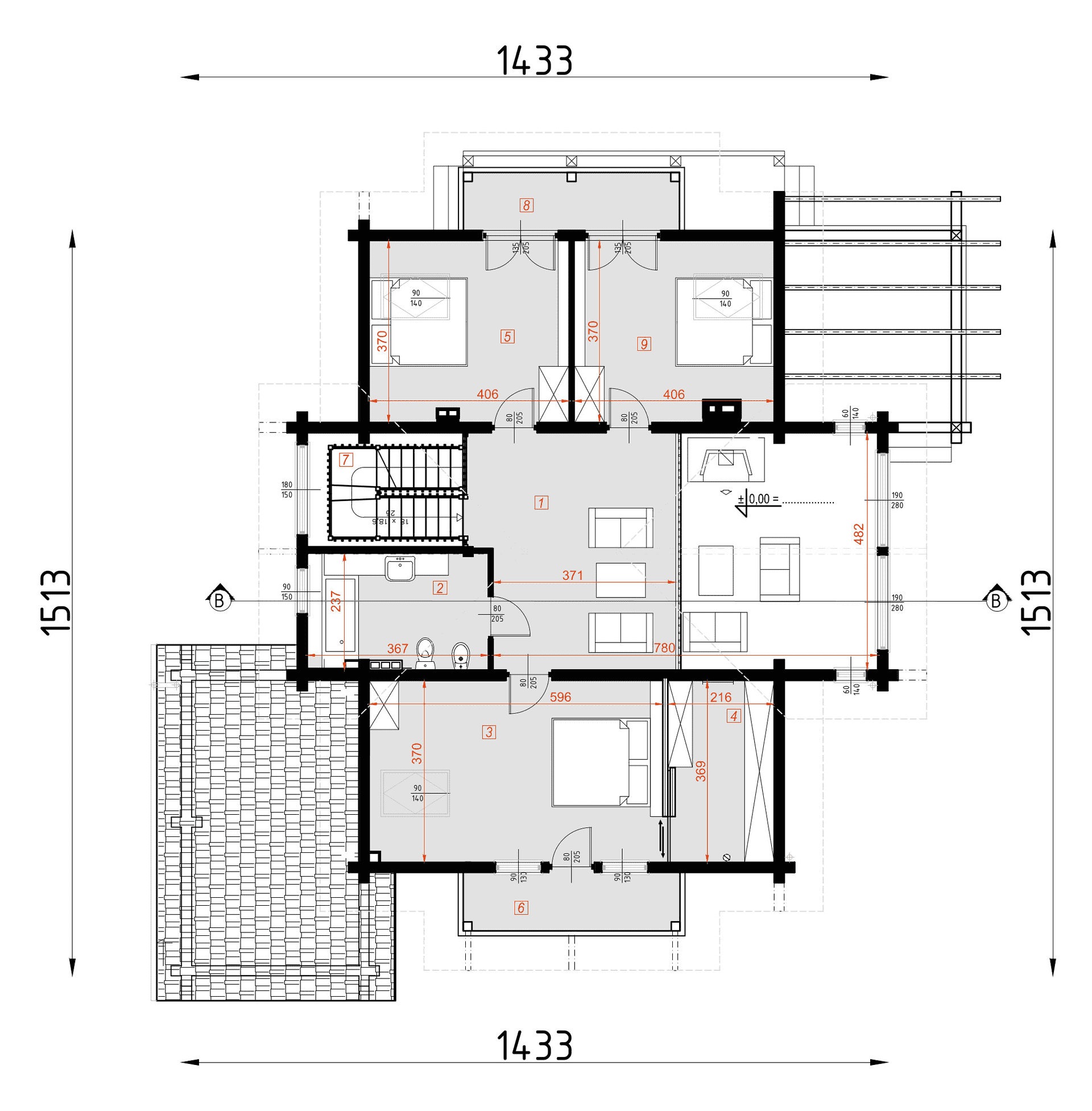
Poddasze
Dane techniczne
- Powierzchnia użytkowa183.74 m²
 - Powierzchnia zabudowy145.26 m²
 - Liczba łazienek3
 - Liczba pokoi4
 - Kubatura908.44 m³
 - Wysokość domu8 m
 - Minimalne wymiary działki23.13 x 22.33m
 - GarażBez garażu
 - Rodzaj dachuDwuspadowy
 - Kąt nach. dachu32°
 
Zawartość projektu
*-ważne informacje dodatkowe, zmiany z dnia 22.05.2023r.
Projekty szkieletów, które nadal są koncepcjami, nie będą miały rysunków układów ścian i zestawienia drewna ścian (zestawienie więźby zostaje bez zmian).
W związku z kolejnymi zmianami w prawie dotyczącymi projektów gotowych od 01.06.2023r. Klienci zamawiający projekt zobowiązani są do przekazania danych inwestora. Dane te będą drukowane na stronach tytułowych oraz w tabelach rysunkowych w projekcie. 
Plomby w projektach pozostają bez zmian. Nie rozplombowany projekt będzie można zwrócić na dotychczasowych zasadach.
Projekty domów jednorodzinnych oraz garaży sprzedajemy w 5 egzemplarzach - 3 egzemplarze architektoniczno-budowlane oraz 2 egzemplarze techniczne.
Projekt architektoniczno-budowlany stanowi część projektu budowlanego, który jest podstawą do wydania Decyzji o pozwoleniu na budowę. Projekt budowlany składa się z: 
- projektu architektoniczno-budowlanego, 
- projektu technicznego,
- projektu zagospodarowania działki.
Część architektoniczno-konstrukcyjną:
- rzut fundamentów – dokładne rozmieszczenie fundamentów, wymiary ław fundamentowych i głębokość ich posadowienia.
 - rzuty wszystkich kondygnacji (np. parter, piwnica, piętro) – rozmieszczenie i wymiary wszystkich pomieszczeń, rozmieszczenie i wielkość otworów okiennych i drzwiowych, rozmieszczenie kominów, sugerowana aranżacja wnętrz.
 - rzut więźby dachowej – wymiary i rozmieszczenie elementów konstrukcji dachu.
 - rzut dachu – wymiary dachu, kąt nachylenia wszystkich połaci dachu, rozmieszczenie okien połaciowych, lukarn, kominów.
 - przekroje pionowe – rysunki budynku po pionowym przecięciu, pokazują wszystkie elementy konstrukcji budynku, czyli warstwy podłogi, stropów, dachu.
 - elewacje (frontowa, dwie elewacje boczne, ogrodowa) – dokładny wygląd domu z każdej strony.
 - zestawienie stolarki okiennej i drzwiowej – wymiary okien i drzwi wykorzystanych w projekcie
 
Część instalacyjną:
- schemat instalacji wodno-kanalizacyjnej
 - schemat instalacji centralnego ogrzewania
 - schemat instalacji elektrycznej
 - schemat instalacji gazowej - jeśli jest przewidziana w projekcie.
 
Zmiany w projektach
- Razem z projektem możemy dostarczyć bezpłatnie podpisaną przez autora projektu zgodę na określone zmiany. W myśl ustawy o ochronie praw autorskich jest ona wymagana do wprowadzenia przez architekta adaptującego zmian adaptacyjnych w projekcie. Po otrzymaniu projektu należy udać się do lokalnego architekta, który naniesie dom na działkę i przygotuje projekt zagospodarowania działki oraz dokona zmian w projekcie. Z nim można indywidualnie ustalić koszt i termin adaptacji. Zależy on od zakresu i stopnia złożoności prac projektowych.
 
Dodatki
Bezpłatne dodatki
GratisZestaw umów
GratisZmiany w projekcie
GratisTablica budowy
GratisDziennik budowy
GratisCharakterystyka energetyczna
Płatne dodatki

Dodatkowy egzemplarz projektu
450 zł

Kosztorys budowlany inwestorski
990 zł

Projekt wentylacji mechanicznej z rekuperacją
890 zł

Projekt ogrzewania podłogowego
790 zł

Projekt instalacji solarnej
990 zł













