Projekt domu D58A - Ewelina A WT2021
- Typ projektuWolnostojący
- StylNowoczesny
- Powierzchnia użytkowa44.15 m²
- KondygnacjeParterowy, z poddaszem
- GarażBez garażu
- DachDwuspadowy
- Kąt nach. dachu45°
- Odbicie lustrzaneTak
- Czas realizacji21 dni Zobacz więcej >
Opis
Zgodność z WT 2021 i Eurokodami
Ze względu na dostosowywanie projektu do standardu WT 2021, czas realizacji może się różnić od standardowego.
Skontaktuj się z nami aby poznać szczegóły dotyczące wybranego projektu.
Opis projektu
Projekt domu Ewelina A. Mały dom o minimalnym programie dla czteroosobowej rodziny. Może też pełnić funkcję wygodnego domu letniego. Czytelny i wygodny podział na część dzienną i nocną. Wygodny układ pokoju dziennego połączonego z aneksem kuchennym i mającym wyjście na duży zadaszony taras. Dodatkowe duże poddasze nieużytkowe dostępne przez zsuwane schody daje możliwość adaptacji na cele mieszkalne. Zminimalizowane powierzchnie komunikacyjne dopełniają pełną wygodę i funkcjonalność zawartą w niezbędnej przestrzeni. Możliwe jest oddzielenie kuchni od pokoju dziennego. Od strony sypialni możliwa jest dobudowa garażu lub wiaty na samochód. Możliwe jest ogrzewanie domu kominkiem w oparciu o system kanałów rozprowadzających ciepłe powietrze i centrali rozdzielczej.Konstrukcja
Ściany zewnętrzne: murowane z ociepleniem i licówką.Strop: drewniany
Konstrukcja dachu: wiązar krokwiowo-jętkowy
Pokrycie dachu: blachodachówka,
Elewacja: tynk cienkowarstwowy, na fragmentach ścian deski.
PROJEKT SPEŁNIA WT2021
EP=70 WT2021
Ogrzewanie gazowe
Rzuty
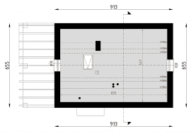
Parter
- wiatrołap2.98m²
- kuchnia2.85m²
- salon13.03m²
- pokój6.88m²
- pokój6.44m²
- pokój5.57m²
- łazienka2.38m²
- korytarz4.02m²
- taras 12.46m²
- taras 216.79m²
Poddasze
Dane techniczne
- Powierzchnia użytkowa44.15 m²
- Powierzchnia zabudowy59.8 m²
- Liczba łazienek1
- Liczba pokoi3
- Kubatura356.37 m³
- Wysokość domu7.21 m
- Minimalne wymiary działki14.55 x 16.35m
- GarażBez garażu
- Rodzaj dachuDwuspadowy
- Kąt nach. dachu45°
Zawartość projektu
*-ważne informacje dodatkowe, zmiany z dnia 22.05.2023r.
Projekty szkieletów, które nadal są koncepcjami, nie będą miały rysunków układów ścian i zestawienia drewna ścian (zestawienie więźby zostaje bez zmian).
Plomby w projektach pozostają bez zmian. Nie rozplombowany projekt będzie można zwrócić na dotychczasowych zasadach.
Projekty domów jednorodzinnych oraz garaży sprzedajemy w 5 egzemplarzach - 3 egzemplarze architektoniczno-budowlane oraz 2 egzemplarze techniczne.
Projekt architektoniczno-budowlany stanowi część projektu budowlanego, który jest podstawą do wydania Decyzji o pozwoleniu na budowę. Projekt budowlany składa się z:
- projektu architektoniczno-budowlanego,
- projektu technicznego,
- projektu zagospodarowania działki.
Część architektoniczno-konstrukcyjną:
- rzut fundamentów – dokładne rozmieszczenie fundamentów, wymiary ław fundamentowych i głębokość ich posadowienia.
- rzuty wszystkich kondygnacji (np. parter, piwnica, piętro) – rozmieszczenie i wymiary wszystkich pomieszczeń, rozmieszczenie i wielkość otworów okiennych i drzwiowych, rozmieszczenie kominów, sugerowana aranżacja wnętrz.
- rzut więźby dachowej – wymiary i rozmieszczenie elementów konstrukcji dachu.
- rzut dachu – wymiary dachu, kąt nachylenia wszystkich połaci dachu, rozmieszczenie okien połaciowych, lukarn, kominów.
- przekroje pionowe – rysunki budynku po pionowym przecięciu, pokazują wszystkie elementy konstrukcji budynku, czyli warstwy podłogi, stropów, dachu.
- elewacje (frontowa, dwie elewacje boczne, ogrodowa) – dokładny wygląd domu z każdej strony.
- zestawienie stolarki okiennej i drzwiowej – wymiary okien i drzwi wykorzystanych w projekcie
Część instalacyjną:
- schemat instalacji wodno-kanalizacyjnej
- schemat instalacji centralnego ogrzewania
- schemat instalacji elektrycznej
- schemat instalacji gazowej - jeśli jest przewidziana w projekcie.
Zmiany w projektach
- Razem z projektem możemy dostarczyć bezpłatnie podpisaną przez autora projektu zgodę na określone zmiany. W myśl ustawy o ochronie praw autorskich jest ona wymagana do wprowadzenia przez architekta adaptującego zmian adaptacyjnych w projekcie. Po otrzymaniu projektu należy udać się do lokalnego architekta, który naniesie dom na działkę i przygotuje projekt zagospodarowania działki oraz dokona zmian w projekcie.
Dodatki
Bezpłatne dodatki
GratisZestaw umów
GratisZmiany w projekcie
GratisTablica budowy
GratisDziennik budowy
GratisCharakterystyka energetyczna
Płatne dodatki

Dodatkowy egzemplarz projektu
450 zł

Kosztorys budowlany inwestorski
990 zł

Projekt wentylacji mechanicznej z rekuperacją
890 zł

Projekt ogrzewania podłogowego
790 zł

Projekt instalacji solarnej
990 zł











