Projekt domu D64 - Tomasz WT2021 wersja drewniana
- Typ projektuWolnostojący
- StylTradycyjny
- Powierzchnia użytkowa117.83 m²
- KondygnacjeParterowy, z poddaszem
- GarażBez garażu
- DachDwuspadowy
- Kąt nach. dachu43°
- Odbicie lustrzaneTak
- Czas realizacji35 dni Zobacz więcej >
Opis
Zgodność z WT 2021 i Eurokodami
Ze względu na dostosowywanie projektu do standardu WT 2021, czas realizacji może się różnić od standardowego.
Skontaktuj się z nami aby poznać szczegóły dotyczące wybranego projektu.
Opis projektu
Budynek jednorodzinny z poddaszem użytkowym i dużym tarasem od strony ogrodu. Po wejściu do domu znajdujemy się w małej sieni, z której przechodzimy do hallu z widokiem na duże okna w salonie. Na uwagę zasługuje fakt, że centralnie umieszczony komin wraz z ciągiem kuchennym można obejść dookoła, co jest bardzo cenne w odbiorze przestrzennym domu. Z hall-u bezpośrednio możemy dostać się do pomieszczenia technicznego, kuchni, pokoju, łazienki. Możemy również klatką schodową wejść na piętro, gdzie znajdują się dwie obszerne sypialnie jednoosobowe i łazienka, oraz sypialnia dwuosobowa oraz oddzielna garderoba.Konstrukcja
Ściany zewnętrzne: szkielet drewnianyŚciany wewnętrzne: szkielet drewniany
Strop: drewniany
Pokrycie dachu: blachodachówka
Elewacje: tynk cienkowarstwowy na styropianie
Ogrzewanie: gazowe
EP 70 projekt spełnia WT2021
Rzuty
Parter
- wiatrołap2.38m²
- hol7.27m²
- łazienka4.91m²
- pomieszczenie techniczne3.87m²
- kuchnia8.50m²
- pokój dzienny+aneks jadalny28.17m²
- pokój8.65m²
- schody3.32m²
- taras 15.19m²
- taras 210.29m²
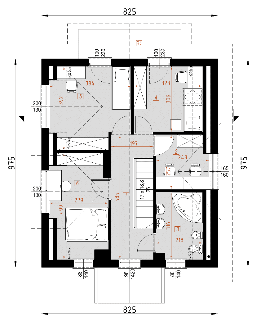
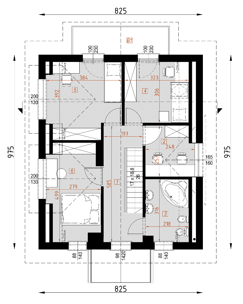
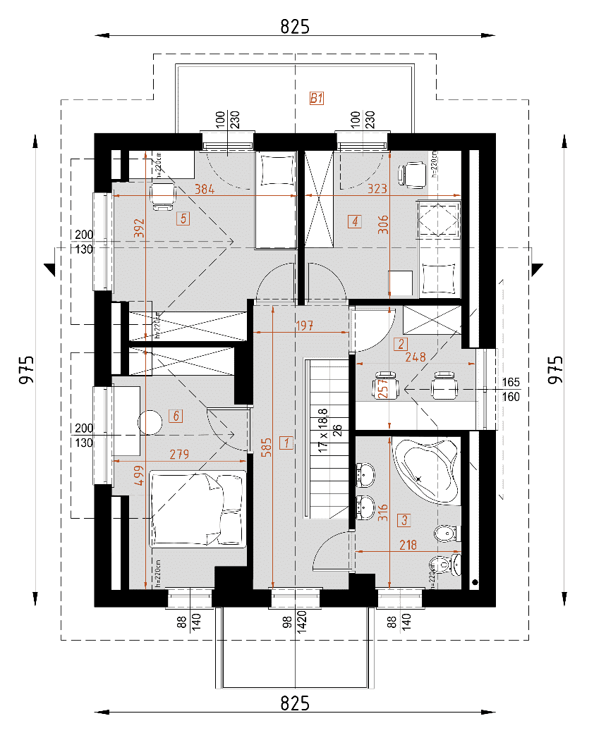
Poddasze
Dane techniczne
- Powierzchnia użytkowa117.83 m²
- Powierzchnia zabudowy82.02 m²
- Liczba łazienek2
- Liczba pokoi5
- Kubatura565 m³
- Wysokość domu8.96 m
- Minimalne wymiary działki16.21 x 18.61m
- GarażBez garażu
- Rodzaj dachuDwuspadowy
- Kąt nach. dachu43°
Zawartość projektu
*-ważne informacje dodatkowe, zmiany z dnia 22.05.2023r.
Projekty szkieletów, które nadal są koncepcjami, nie będą miały rysunków układów ścian i zestawienia drewna ścian (zestawienie więźby zostaje bez zmian).
Plomby w projektach pozostają bez zmian. Nie rozplombowany projekt będzie można zwrócić na dotychczasowych zasadach.
Projekty domów jednorodzinnych oraz garaży sprzedajemy w 5 egzemplarzach - 3 egzemplarze architektoniczno-budowlane oraz 2 egzemplarze techniczne.
Projekt architektoniczno-budowlany stanowi część projektu budowlanego, który jest podstawą do wydania Decyzji o pozwoleniu na budowę. Projekt budowlany składa się z:
- projektu architektoniczno-budowlanego,
- projektu technicznego,
- projektu zagospodarowania działki.
Część architektoniczno-konstrukcyjną:
- rzut fundamentów – dokładne rozmieszczenie fundamentów, wymiary ław fundamentowych i głębokość ich posadowienia.
- rzuty wszystkich kondygnacji (np. parter, piwnica, piętro) – rozmieszczenie i wymiary wszystkich pomieszczeń, rozmieszczenie i wielkość otworów okiennych i drzwiowych, rozmieszczenie kominów, sugerowana aranżacja wnętrz.
- rzut więźby dachowej – wymiary i rozmieszczenie elementów konstrukcji dachu.
- rzut dachu – wymiary dachu, kąt nachylenia wszystkich połaci dachu, rozmieszczenie okien połaciowych, lukarn, kominów.
- przekroje pionowe – rysunki budynku po pionowym przecięciu, pokazują wszystkie elementy konstrukcji budynku, czyli warstwy podłogi, stropów, dachu.
- elewacje (frontowa, dwie elewacje boczne, ogrodowa) – dokładny wygląd domu z każdej strony.
- zestawienie stolarki okiennej i drzwiowej – wymiary okien i drzwi wykorzystanych w projekcie
Część instalacyjną:
- schemat instalacji wodno-kanalizacyjnej
- schemat instalacji centralnego ogrzewania
- schemat instalacji elektrycznej
- schemat instalacji gazowej - jeśli jest przewidziana w projekcie.
Zmiany w projektach
- Razem z projektem możemy dostarczyć bezpłatnie podpisaną przez autora projektu zgodę na określone zmiany. W myśl ustawy o ochronie praw autorskich jest ona wymagana do wprowadzenia przez architekta adaptującego zmian adaptacyjnych w projekcie. Po otrzymaniu projektu należy udać się do lokalnego architekta, który naniesie dom na działkę i przygotuje projekt zagospodarowania działki oraz dokona zmian w projekcie.
Dodatki
Bezpłatne dodatki
GratisZestaw umów
GratisZmiany w projekcie
GratisTablica budowy
GratisDziennik budowy
GratisCharakterystyka energetyczna
Płatne dodatki

Dodatkowy egzemplarz projektu
450 zł

Kosztorys budowlany inwestorski
990 zł

Projekt wentylacji mechanicznej z rekuperacją
890 zł

Projekt ogrzewania podłogowego
790 zł

Projekt instalacji solarnej
990 zł











