Promocja ważna do
07-02-2026
- Typ projektuWolnostojący
- Powierzchnia użytkowa126.2 m²
- KondygnacjeParterowy, z poddaszem
- GarażBez garażu
- DachDwuspadowy
- Kąt nach. dachu38°
- Odbicie lustrzaneTak
- Czas realizacjido 10 dni roboczych Zobacz więcej >
Opis
Zgodność z WT 2021 i Eurokodami
Ze względu na dostosowywanie projektu do standardu WT 2021, czas realizacji może się różnić od standardowego.
Skontaktuj się z nami aby poznać szczegóły dotyczące wybranego projektu.
Opis projektu
Dom parterowy z użytkowym poddaszem, niepodpiwniczony, przeznaczony dla 4-5 osobowej rodziny. Rzut parteru podzielony na trzy strefy: ogólną – hall, kuchnia, jadalnia i pokój dzienny, część półprywatną z pokojem gościnnym wraz z osobną łazienką oraz część nocną z dwiema sypialniami i odrębną łazienką. Poddasze jest zaprojektowane jako pomieszczenie jednoprzestrzenne do zagospodarowania przez właściciela.
Konstrukcja
Ściany zewnętrzne z bloczków wapienno-piaskowych, ocieplone, posadowione na betonowych fundamentach. Ściany wewnętrzne z bloczków wapienno-piaskowych. Strop gęstożebrowy.
Elewacje pokryte tynkiem strukturalnym w systemie ociepleń Termo Organika. Pokrycie dachu - dachówka ceramiczna lub cementowa CREATON.
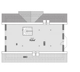
Rzuty
Parter
- 1/1 wiatrołap3.6
- 1/2 hall18.4
- 1/3 garderoba3.3
- 1/4 kuchnia10.8
- 1/5 spiżarnia3.6
- 1/6 salon +jadalnia32.6
- 1/7 pokój12.6
- 1/8 pokój16.3
- 1/9 łazienka5.2
- 1/10 pokój14
- 1/11 łazienka2.9
- 1/12 kotłownia2.9
Poddasze
Dane techniczne
- Powierzchnia użytkowa126.2 m²
- Powierzchnia zabudowy164.6 m²
- Liczba łazienek2
- Liczba pokoi3
- Powierzchnia dachu261.6 m²
- Kubatura644.9 m³
- Wysokość domu8.3 m
- Minimalne wymiary działki19.32 x 23.62m
- GarażBez garażu
- Rodzaj dachuDwuspadowy
- Kąt nach. dachu38°
Zawartość projektu
Komplet dokumentacji projektowej stanowi:
1. Trzy (3) egzemplarze projektu architektoniczno-budowlanego
- architektura – opis,
- architektura - rysunki.
2. Dwa (2) egzemplarze projektu technicznego:
- architektura - rysunki,
- konstrukcja - opis,
- konstrukcja - rysunki,
- instalacje sanitarne,
- instalacje sanitarne opis,
- instalacje elektryczne,
- instalacje elektryczne opis.
3. MATERIAŁY POMOCNICZE w 1 egzemplarzu.
- rysunki wykonawcze elementów żelbetowych,
- zestawienie stali zbrojeniowej,
- zestawienie elementów konstrukcyjnych więźby dachowej
- tabela elementów z kosztorysu stanu surowego zamkniętego (obejmującą robociznę, materiały i sprzęt)- dostępne dla projektów, które posiadają kosztorys
Każda dokumentacja projektowa przygotowywana jest na indywidualne zlecenie zamawiającego oraz jest zabezpieczona specjalną plombą z hologramem, której zerwanie lub usunięcie jest jednoznaczne z wykorzystaniem projektu.
Uprawnienia - wszystkie projekty domów mają stosowne uprawnienia i zaświadczenia potwierdzające przynależność do izb wszystkich projektantów, będących autorami prezentowanych na tej stronie koncepcji domów.
Zmiany w projekcie domu, które nie naruszają jego konstrukcji , możecie Państwo wprowadzać we współpracy z projektantem adaptującym projekt gotowy, bez konieczności konsultowania tego z autorem dokumentacji.
Poniżej prezentujemy zakres zmian, które nie wymagają zgody ze strony naszej Pracowni:
- Zmiany wymiarów fundamentów wynikające z dostosowania budynku do lokalnych warunków gruntowych.
- Wprowadzenie całkowitego lub częściowego podpiwniczenia budynku pod warunkiem nie wynoszenia poziomu parteru w stosunku do poziomu terenu.
- Zaprojektowanie użycia innych materiałów na konstrukcję budynku (ściany stropy) przy zachowaniu wymaganych przepisami i normami parametrów oraz pod warunkiem zachowania walorów użytkowych budynku.
- Rodzaj stropów – przy zachowaniu układu konstrukcji i wymaganych przepisami oraz normami parametrów.
- Materiały ścian zewnętrznych i wykończeniowych (tynki, posadzki, dachówki, izolacja cieplna i przeciwwilgociowa) pod warunkiem utrzymania wymaganych parametrów (tj. np. wytrzymałość, ciepłochłonność).
- Program użytkowy wewnątrz budynku; np. przesunięcie lub likwidacja ścian działowych i zmiana lokalizacji, ilości i kształtu okien oraz drzwi, przy zachowaniu wymaganych przepisami i normami parametrów.
- Kąt nachylenia dachu do 10 proc. lub 5 stopni, pod warunkiem dostosowania konstrukcyjnego i zachowania formy architektonicznej.
- Zmiana przekrojów elementów konstrukcji dachowej wynikająca z dostosowania do materiałów pokrycia lub z dostosowania budynku do innych stref śniegowych i wiatrowych niż podano w projekcie.
- Kolorystyka elewacji, detali dekoracyjnych, kształtu podjazdów i tarasów.
- Instalacja: wodna, kanalizacyjna, gazowa, elektryczna i centralnego ogrzewania - pod warunkiem zachowania obowiązujących norm i przepisów prawa budowlanego.
- Realizacja projektu wg. lustrzanego odbicia.
Dodatki
Bezpłatne dodatki
GratisZestaw umów
GratisZmiany w projekcie
GratisTablica budowy
GratisDziennik budowy
Płatne dodatki

Projekt wentylacji mechanicznej
700 zł

Kosztorys
861 zł

Dodatkowy egzemplarz projektu
246 zł

Projekt instalacji centralnego ogrzewania zasilanego pompą ciepła
650 zł














