- Typ projektuWolnostojący
- StylNowoczesny
- Powierzchnia użytkowa156.62 m²
- KondygnacjeParterowy
- GarażDwustanowiskowy
- DachWielospadowy
- Odbicie lustrzaneTak
- Czas realizacjimax. czas realizacji 10 dni Zobacz więcej >
Opis
Zgodność z WT 2021 i Eurokodami
Ze względu na dostosowywanie projektu do standardu WT 2021, czas realizacji może się różnić od standardowego.
Skontaktuj się z nami aby poznać szczegóły dotyczące wybranego projektu.
Opis projektu
Projekt nowoczesnego parterowego domu z otwartą antresolą i garażem jednostanowiskowym przeznaczony dla 5-6 osobowej rodziny. Dom zbudowany na rzucie w kształcie litery „T”. Jedno skrzydło domu zawiera strefę dzienną, drugie strefę wejściową, a trzecie strefę nocną przeznaczoną dla domowników.
Strefa dzienna składa się z kuchni, jadalni i salonu, które tworzą wspólną, otwartą przestrzeń podniesioną nad salonem aż pod sam dach. Jadalnia połączona jest dużymi przeszklonymi drzwiami przesuwnymi z ogrodem poprzez obszerny, zadaszony taras. Obok kuchni znajduje się zamykana spiżarnia.
Strefa wejściowa składa się z zadaszonego podestu wejściowego, wiatrołapu z którego przeszklone drzwi prowadzą do holu i pozostałych pomieszczeń mieszkalnych a drugie, pełne, do wbudowanego garażu dwustanowiskowego. W centralnej części strefy wejściowej znajduje się pomieszczenie gospodarcze z kotłem gazowym.
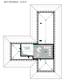
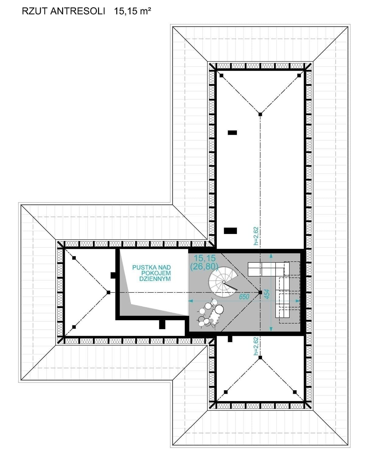
Strefa nocna składa się z trzech sypialni jednoosobowych, łazienki oraz sypialni dwuosobowej z wyjściem na niezależny, zadaszony taras, własną garderobą i łazienką. Na poddaszu, nad centralną częścią parteru znajduje się antresola otwarta poprzez pustkę powietrzną na salon. Antresola dostępna jest poprzez lekkie kręcone schody z holu.
Harmonia w jakiej połączone są wszystkie funkcje wewnątrz domu zadowoli najbardziej wyrafinowanych Melomanów.
Bryła budynku w kolorze białym, na fragmentach zastosowano naturalną okładzinę drewnianą. Pokrycie dachu z dachówki ceramicznej płaskiej w kolorze antracytowym. Konstrukcja ścian z bloczków sylikatowych. Konstrukcja dachu wielospadowego – drewniana. W projekcie zastosowano rozwiązania energooszczędne struktury budynku (wszystkie przegrody zewnętrzne: ściany, dach, podłogi na gruncie, okna, spełniają standardy termoizolacyjności wymagane przepisami na rok 2021).
Konstrukcja
Ściany: dwuwarstwowe: bloczek sylikatowy + styropian
Elewacje: tynk, okładzina drewniana
Stropy: żelbetowe
Schody: żelbetowe
Dach: ceramiczna dachówka płaska
Rzuty
Rzut parteru
- Wiatrołap5.51
- Spiżarnia2.32
- Kuchnia + Jadalnia24.32
- Salon24.41
- Hol22.61
- Kotłownia5.03
- Łazienka7.40
- Łazienka4.81
- Garderoba3.49
- Sypialnia15.60
- Sypialnia12.67
- Sypialnia13.99
- Sypialnia14.46
- Garaż33.67
Rzut antresoli
Usytuowanie na działce
Dane techniczne
- Powierzchnia użytkowa156.62 m²
- Powierzchnia zabudowy276.85 m²
- Liczba łazienek2
- Liczba pokoi4
- Powierzchnia dachu409.36 m²
- Kubatura1164.94 m³
- Wysokość domu6.59 m
- Minimalne wymiary działki29.84 x 25.55m
- GarażDwustanowiskowy
- Rodzaj dachuWielospadowy
Instalacja grzewcza
- Instalacja opcjonalna
Zawartość projektu
Zmiana: w przypadku dodatków do projektu, należy się skontaktować telefonicznie, wtedy zostaną udzielone konkretne informacje, ponieważ dodatki są zależne od projektu.
TRZY EGZEMPLARZE PROJEKTU ARCHITEKTONICZNO-BUDOWLANEGO ZAWIERAJĄCEGO:
– Szczegółowy opis techniczny domu.
– Rzuty poszczególnych kondygnacji w skali 1:100 – z pokazaniem rozmieszczenia pomieszczeń wraz z wymiarami i powierzchnią, przebiegiem ścian z lokalizacją otworów okiennych i drzwiowych . Dodatkowo pokazana jest aranżacja funkcjonalna każdego pomieszczenia wraz z rozrysowaniem mebli oraz poszczególnych urządzeń (kuchennych, łazienkowych, kotłowni).
– Rzut więźby dachowej – pokazany układ elementów konstrukcyjnych dachu oraz tabelaryczne zestawienie elementów więźby dachowej potrzebne do zamówienia materiału na jej wykonanie.
– Rzut połaci dachowych – pokazany kształt dachu z wymiarami oraz podaniem kąta nachylenia połaci dachowych. Zawiera informacje o rozmieszczeniu: kominów i układ ław kominiarskich, okien połaciowych, lukarn, wyłazu kominiarskiego, odwodnienia (rynien i rur spustowych).
– Przekroje – pokazany układ konstrukcyjny budynku po przecięciu go wzdłuż i w poprzek kalenicy od fundamentów, aż po dach z układem warstw budowlanych ścian, stropów, balkonów, tarasów, dachu i klatki schodowej.
– Elewacje – pokazują wygląd zewnętrzny domu od strony frontowej (od ulicy), ogrodowej i bocznych z układem wszystkich elementów widocznych od zewnątrz.
– Rzut fundamentów budynku
TRZY EGZEMPLARZE PROJEKTU TECHNICZNEGO ZAWIERAJĄCEGO:
a) opis techniczny i rysunki techniczne branży architektonicznej w skali 1:100 (rzuty poszczególnych kondygnacji, rzut więźby dachowej, rzut połaci dachowych, przekroje, elewacje, zestawienie warstw oraz zestawienia stolarki okiennej i drzwiowej – zestawienie wszystkich drzwi i okien domu z podaniem ich charakterystyki i wymiarów potrzebne do przygotowania ofert i zamówienia na etapie realizacji budynku.
b) opis techniczny irysunki techniczne projektu konstrukcji z elementami projektu wykonawczego (rys. w skali 1:100, 1:50 i 1:25)
– Obliczenia statyczno-wytrzymałościowe z opisem i określeniem wymiarów wszystkich elementów konstrukcyjnych domu – żelbetowych (fundamentów, ścian, stropów, nadproży, belek itp.) oraz drewnianych (więźba dachowa).
– Rzuty fundamentów i płyt stropowych określeniem poszczególnych pozycji konstrukcyjnych z obliczeń statyczno-wytrzymałościowych.
– Rysunki konstrukcyjne wykonawcze – (detale wieńców, nadproży z pokazaniem układu zbrojenia).
– Obliczeniowe zestawienie stali zbrojeniowej potrzebne do jej zakupu na etapie realizacji domu.
c) opis techniczny irysunki techniczne projektu instalacji wewnętrznych sanitarnych i grzewczych
Zawiera szczegółowe opisy, schematy techniczne oraz rysunki rzutów kondygnacji i przekrojów domu z pokazaniem osobno układów instalacji wodno-kanalizacyjnych, centralnego ogrzewania, gazu, kanalizacji deszczowej, wentylacji mechanicznej
c) opis techniczny irysunki techniczne projektu instalacji elektrycznej, teletechnicznej i odgromowej
Zawiera szczegółowe opisy, schemat tablicy bezpiecznikowej oraz rysunki rzutów kondygnacji i przekrojów domu z pokazaniem osobno rozmieszczenia instalacji elektrycznej, teletechnicznej oraz układ instalacji odgromowej chroniącej dom przed skutkami wyładowań atmosferycznych.
d) charakterystykę energetyczną budynku
Charakterystyka energetyczna budynku określa zapotrzebowanie budynku na energię niezbędną do zaspokojenia potrzeb związanych z jego użytkowaniem.
ZARÓWNO W PROJEKCIE ARCHITEKTONICZNO-BUDOWLANYM JAKI I TECHNICZNYM ZNAJDUJĄ SIĘ:
Kopie uprawnień projektantów
We wszystkich egzemplarzach projektu załączone są komplety dokumentów potwierdzających uprawnienia poszczególnych projektantów oraz wpisy do izb zawodowych w czasie opracowania dokumentacji.
Zgoda na zmiany i adaptacje projektu
Zgoda określa warunki oraz zakres dopuszczalnych zmian do wykonania przez architekta adaptującego projekt. Jakie zmiany są dopuszczone do wprowadzenia można sprawdzić w zakładce Adaptacje – Zmiany w projekcie.
Zakres zmian, na które wyrażamy zgodę:
– zmiana technologii w zakresie użytych materiałów ściennych, izolacyjnych i wykończeniowych, pod warunkiem zachowania wymaganych właściwości użytkowych przegrody,
– zmiana rodzaju stropów pod warunkiem zachowania istniejących wytrzymałości i układu konstrukcyjnego,
– dopasowanie fundamentów do lokalnych warunków gruntowo-wodnych,
– wprowadzenie częściowego lub całkowitego podpiwniczenia budynku pod warunkiem zachowania istniejącej wysokości cokołu,
– zmiana wysokości ścian kolankowych poddasza w zakresie 25 cm
– zmiana kąta nachylenia połaci dachowych w granicach 5% pod warunkiem zachowania istniejących wytrzymałości i układu konstrukcyjnego,
– zmiana ilości, wielkości i układu okien dachowych,
– zmiana pokrycia dachowego na lżejsze,
– zmiana ilości, wielkości i usytuowania otworów okiennych i drzwiowych
– zmiana układu funkcjonalnego – przeznaczenia, wielkości i ilości pomieszczeń na kondygnacjach mieszkalnych,
– zmiana wysokości pomieszczeń w zakresie 25 cm
– przesunięcie lub likwidacja niektórych ścian działowych i wewnętrznych otworów drzwiowych, przy zachowaniu nośności wewnętrznego układu konstrukcyjnego budynku),
– zmiana układu schodów wewnętrznych w zakresie szerokości biegów schodowych, liczby stopni i wymiarów, materiału konstrukcyjnego
– zmiana kształtu i wielkości tarasów zewnętrznych parteru,
– zmiana obrysu zewnętrznego budynku,
– dodanie lub likwidacja balkonu,
– zmiana elementów wykończeniowych i elewacyjnych oraz kolorystyki budynku,
– zmiana wewnętrznych instalacji sanitarnych i elektrycznej wynikające z lokalnych warunków dostawy mediów,
– likwidacja kominów wentylacji grawitacyjnej, wynikająca z zastosowania układu wentylacji mechanicznej z rekuperacją
Jeśli chcecie Państwo wprowadzić zmiany przekraczające zakres, na który wyrażamy zgodę, prosimy o kontakt.
Dodatki
Bezpłatne dodatki
GratisZestaw umów
GratisZmiany w projekcie
GratisTablica budowy
GratisDziennik budowy








