Projekt domu Dolomit II z garażem 2st.
- Typ projektuWolnostojący
- Powierzchnia użytkowa160.5 m²
- Kondygnacje
- GarażDwustanowiskowy
- DachWielospadowy
- Kąt nach. dachu25°
- Odbicie lustrzaneTak
- Czas realizacjimax. czas realizacji 10 dni Zobacz więcej >
Opis
Zgodność z WT 2021 i Eurokodami
Ze względu na dostosowywanie projektu do standardu WT 2021, czas realizacji może się różnić od standardowego.
Skontaktuj się z nami aby poznać szczegóły dotyczące wybranego projektu.
Opis projektu
Projekt gotowy Dolomit II to propozycja dla dużych rodzin.Budynek w kształcie litery T z dachem wielospadowym o nowoczesnym kształcie nada się na działki o szerokości frontu 24 m.Program funkcjonalny to wiatrołap, garderoba, WC, jednoprzestrzenny salon z kuchnią i jadalnią, pomieszczenie CO, a w strefie nocnej cztery sypialnie (jedna typy master bedroom z własną łazienka) oraz wspólna łazienką.
Konstrukcja
fundamenty: betonowe
ściany: porotherm+styropian
rodzaj stropu: teriva bis
elewacje: tynk strukturalny
pokrycie dachu: dachówka cem. lub cer.
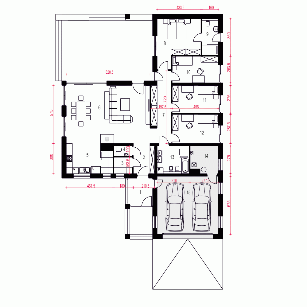
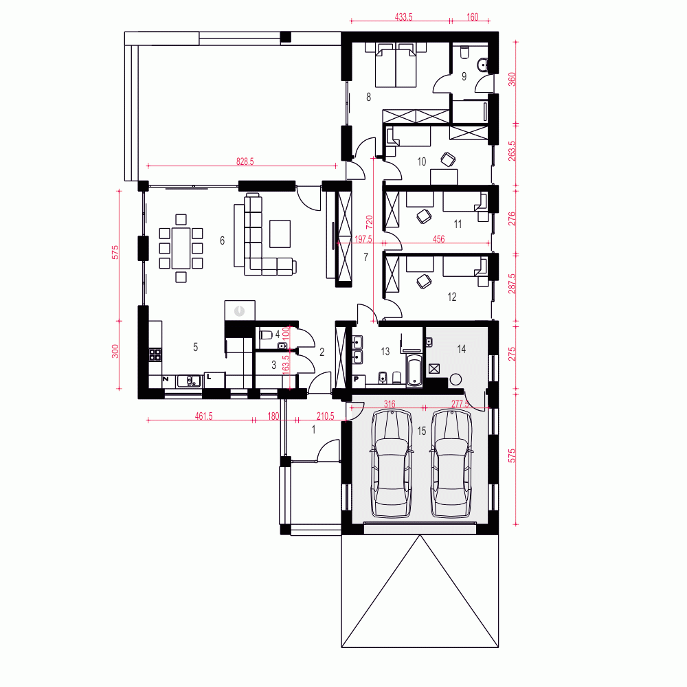
Rzuty
Parter
- m²
- 1. Wiatrołap7.9
- 2. Hol6.1
- 3. Garderoba2.8
- 4. WC1.7
- 5. Kuchnia, spiżarnia13.1
- 6. Salon47.2
- 7. Korytarz13.2
- 8. Pokój17.3
- 9. Łazienka5.6
- 10. Pokój11.8
- 11. Pokój12.4
- 12. Pokój12.9
- 13. Łazienka8.5
- 14. Pom. techniczne + CO*7.2
- 15. Garaż*33.8
Przekrój
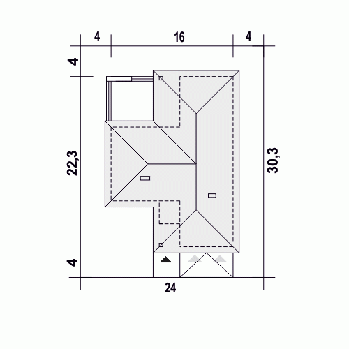
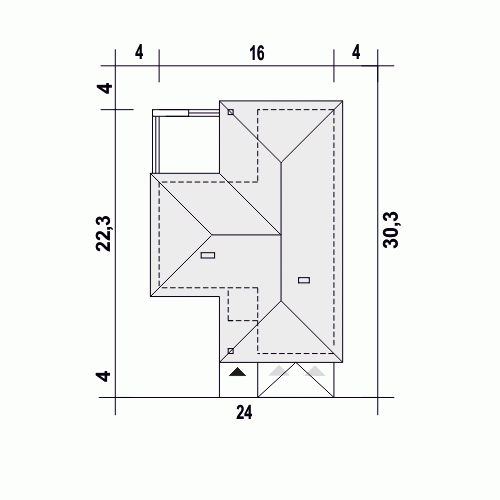
Usytuowanie na działce
Dane techniczne
- Powierzchnia użytkowa160.5 m²
- Powierzchnia zabudowy250.7 m²
- KominekTak
- Liczba łazienek2
- Liczba pokoi5
- Powierzchnia dachu374.3 m²
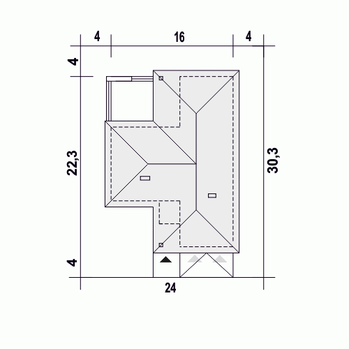
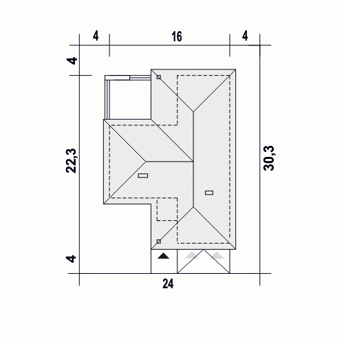
- Długość domu22.3 m
- Szerokość domu16 m
- Wysokość domu6.1 m
- Minimalne wymiary działki30.3 x 24m
- GarażDwustanowiskowy
- Rodzaj dachuWielospadowy
- Kąt nach. dachu25°
Instalacja grzewcza
- Instalacja grzewczaGaz
Zawartość projektu
Zgodnie ze znowelizowaną Ustawą Prawo Budowlane art.34 ust.3, na projekt budowlany składają się trzy części:
- projekt zagospodarowania działki lub terenu
- projekt architektoniczno-budowlany
- projekt techniczny
Nasze projekty oferujemy w 3 egzemplarzach, zawierających projekt architektoniczno-budowlany i projekt techniczny. Projekt zagospodarowania działki lub terenu nie wchodzi w skład projektu oferowanego do sprzedaży. Projekt ten należy zlecić we własnym zakresie lokalnemu projektantowi, który opracuje go na podstawie danych zawartych w projekcie architektoniczno-budowlanym i technicznym, po dostosowaniu projektu do warunków lokalnych i wymagań inwestora.
UWAGA: wszystkie egzemplarze projektu zabezpieczone są hologramami, w części rysunkowej posiadają nadruki zabezpieczające w kolorze zielonym. Zalecamy aby po otrzymaniu przesyłki kontrolować czy na pierwszych stronach projektu znajduje się hologram i czy na rysunkach widoczne są w/w nadruki potwierdzające oryginalność projektu.
Wyrażamy zgodę na wszelkie zmiany zgodne z obowiązującymi przepisami pod warunkiem wprowadzenia ich przez uprawnioną osobę.
Wszystkie zmiany wymienione powyżej powinny być naniesione na oryginał projektu katalogowego trwałą techniką graficzną w kolorze czerwonym lub dołączone jako aneks i podpisane przez osobę uprawnioną dokonująca adaptacji.
**ważne informacje
Projekt w fazie koncepcji dostępny z wydłużonym terminem realizacji. Przy zamówieniu ustalamy termin i pobieramy zadatek 50% podstawowej ceny projektu (jako koszty usługi przygotowania dokumentacji do standardu projektu gotowego, w przypadku rezygnacji z usługi, zadatek nie podlega zwrotowi).
Cena za dodatkowy egzemplarz projektu jest zależna od nazwy projektu!
Dodatki
Bezpłatne dodatki
GratisZestaw umów
GratisZmiany w projekcie
GratisTablica budowy
GratisDziennik budowy
Płatne dodatki

Kosztorys - stan wykończony
540 zł

Projekt wentylacji mechanicznej
1 000 zł
















