Projekt domu Dom Dla Ciebie 1 B
- Typ projektuWolnostojący
- Powierzchnia użytkowa133.7 m²
- Kondygnacje
- GarażBez garażu
- DachDwuspadowy
- Kąt nach. dachu40°
- Odbicie lustrzaneTak
- Czas realizacjimax. czas realizacji 10 dni Zobacz więcej >
Opis
Zgodność z WT 2021 i Eurokodami
Ze względu na dostosowywanie projektu do standardu WT 2021, czas realizacji może się różnić od standardowego.
Skontaktuj się z nami aby poznać szczegóły dotyczące wybranego projektu.
Opis projektu
Dom Dla Ciebie 1 w wariancie bez garażu to dom z serii domów stylowych. Ten projekt uroczego domu z poddaszem użytkowym jest przeznaczony dla 4ro osobowej rodziny. Dom zaprojektowany został z zachowaniem podziału na dwie strefy: ogólnie dostępną i prywatną. Strefa ogólnie dostępna przewidziana jest na parterze. mamy tu wiatrołap z wnękowymi szafami, hol, kuchnię ze spiżarnią, salon z jadalnią i kominkiem oraz pokój od frontu, który może służyć jako gabinet. Ponadto mamy tu niedużą łazienkę z prysznicem oraz kotłownię z pralnią. Na poddasze prowadzą jednobiegowe schody, którymi ostaniemy się do przedpokoju prowadzącego do 3 wygodnych i dobrze oświetlonych pokoi z balkonami. Ponadto jest tu przewidziana ogólnie dostępną łazienka z narożną wanną i prysznicem. Poddasze wygospodarowano pod dwuspadowym dachem zaprojektowanym na tradycyjnej więźbie dachowej opartej na ściance kolankowej. Projekt domu Dom Dla Ciebie 1, to propozycja dla szukających projektu domu tradycyjnego o stylowej architekturze oraz funkcjonalnym wnętrzu.
Konstrukcja
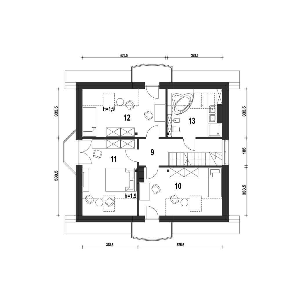
Rzuty
Parter
- m²
- 1. Wiatrołap5
- 2. Hol8.6
- 3. Kuchnia+Spiżarnia10.4
- 4. Salon+Jadalnia30.7
- 5. Łazienka4.2
- 6. Kotłownia+pralnia*8.6
- 7. Schody3.6
- 8. Pokój11
Piętro
Dane techniczne
- Powierzchnia użytkowa133.7 m²
- Powierzchnia zabudowy104.7 m²
- KominekTak
- Liczba łazienek2
- Liczba pokoi5
- Powierzchnia dachu183 m²
- Kubatura391 m³
- Długość domu11.5 m
- Szerokość domu9.7 m
- Wysokość domu8.7 m
- Minimalne wymiary działki17.7 x 19.5m
- GarażBez garażu
- Rodzaj dachuDwuspadowy
- Kąt nach. dachu40°
Instalacja grzewcza
- Instalacja grzewczaGaz
- Instalacja opcjonalna
Zawartość projektu
Zgodnie ze znowelizowaną Ustawą Prawo Budowlane art.34 ust.3, na projekt budowlany składają się trzy części:
- projekt zagospodarowania działki lub terenu
- projekt architektoniczno-budowlany
- projekt techniczny
Nasze projekty oferujemy w 3 egzemplarzach, zawierających projekt architektoniczno-budowlany i projekt techniczny. Projekt zagospodarowania działki lub terenu nie wchodzi w skład projektu oferowanego do sprzedaży. Projekt ten należy zlecić we własnym zakresie lokalnemu projektantowi, który opracuje go na podstawie danych zawartych w projekcie architektoniczno-budowlanym i technicznym, po dostosowaniu projektu do warunków lokalnych i wymagań inwestora.
UWAGA: wszystkie egzemplarze projektu zabezpieczone są hologramami, w części rysunkowej posiadają nadruki zabezpieczające w kolorze zielonym. Zalecamy aby po otrzymaniu przesyłki kontrolować czy na pierwszych stronach projektu znajduje się hologram i czy na rysunkach widoczne są w/w nadruki potwierdzające oryginalność projektu.
Wyrażamy zgodę na wszelkie zmiany zgodne z obowiązującymi przepisami pod warunkiem wprowadzenia ich przez uprawnioną osobę.
Wszystkie zmiany wymienione powyżej powinny być naniesione na oryginał projektu katalogowego trwałą techniką graficzną w kolorze czerwonym lub dołączone jako aneks i podpisane przez osobę uprawnioną dokonująca adaptacji.
**ważne informacje
Projekt w fazie koncepcji dostępny z wydłużonym terminem realizacji. Przy zamówieniu ustalamy termin i pobieramy zadatek 50% podstawowej ceny projektu (jako koszty usługi przygotowania dokumentacji do standardu projektu gotowego, w przypadku rezygnacji z usługi, zadatek nie podlega zwrotowi).
Cena za dodatkowy egzemplarz projektu jest zależna od nazwy projektu!
Dodatki
Bezpłatne dodatki
GratisZestaw umów
GratisZmiany w projekcie
GratisTablica budowy
GratisDziennik budowy
Płatne dodatki

Kosztorys - stan wykończony
540 zł

Projekt wentylacji mechanicznej
1 000 zł









