Projekt domu Dom Dla Ciebie 1 z garażem
- Typ projektuWolnostojący
- Powierzchnia użytkowa134.4 m²
- Kondygnacje
- GarażJednostanowiskowy
- DachDwuspadowy
- Kąt nach. dachu40°
- Odbicie lustrzaneTak
- Czas realizacjimax. czas realizacji 10 dni Zobacz więcej >
Opis
Zgodność z WT 2021 i Eurokodami
Ze względu na dostosowywanie projektu do standardu WT 2021, czas realizacji może się różnić od standardowego.
Skontaktuj się z nami aby poznać szczegóły dotyczące wybranego projektu.
Opis projektu
Dom Dla Ciebie 1 w wariancie z przybudowanym garażem to projekt domu z poddaszem użytkowym z nowej serii projektów stylowych naszego autorstwa. Ten uroczy dom przeznaczony jest dla 4ro osobowej rodziny , zaprojektowany jest z zachowaniem podziału na dwie strefy: dzienną na parterze i nocną na poddaszu. Na parterze mamy zaprojektowany wiatrołap w którym mamy miejsce na wnękowe szafy, następnie mamy hol z którego dostaniemy sie do kuchni ze spiżarnią, do salonu z jadalnią i kominkiem oraz pokoju usytuowanego od frontu, który może być wykorzystywany jako gabinet. Przy schodach mamy zaprojektowaną łazienkę z prysznicem oraz przejściową pralnię z której dostaniemy się do garażu oraz kotłowni. Poddasze obejmuje trzy ustawne i dobrze doświetlone pokoje, każdy pokój z własnym balkonem. Przy schodach zaprojektowano ogólnie dostępną łazienkę z narożną wanną i prysznicem. Nad garażem mamy do dyspozycji strych który można wykorzystać na etapie adaptacji jako dodatkowe pomieszczenie np.: pokój, garderobę lub pomieszczenie rekreacyjne. Poddasze zaprojektowane jest pod dwuspadowym dachem opartym na tradycyjnej więźbie i ściance kolankowej. Projekt Dom Dla Ciebie 1, to idealna propozycją domu dla osób poszukujących tradycyjnego domu o stylowej architekturze i przemyślanej funkcji.
Konstrukcja
fundamenty: betonowe
ściany zewnętrzne: porotherm+styropian termo organika
rodzaj stropu: teriva i
elewacje: tynk strukturalny, okładzina klinkierowa
pokrycie dachu: dachówka cementowa, ceramiczna lub blacha dachówko podobna
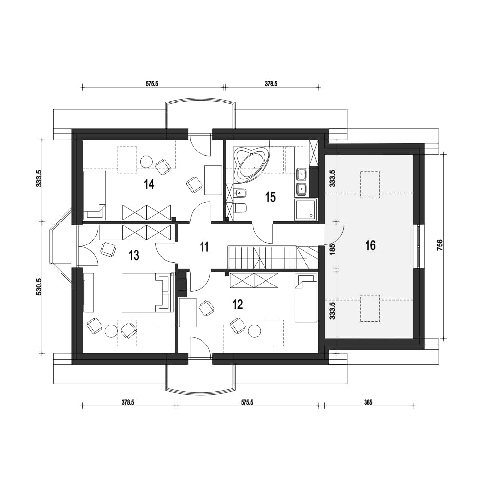
Rzuty
Parter
- m²
- 1. Wiatrołap5
- 2. Hol8.6
- 3. Kuchnia+Spiżarnia10.4
- 4. Salon+Jadalnia31.5
- 5. Łazienka4.2
- 6. Pralnia*8.5
- 7. Schody3.5
- 8. Pokój11
- 9. Kotłownia*6.6
- 10. Garaż*20.2
Piętro
Dane techniczne
- Powierzchnia użytkowa134.4 m²
- Powierzchnia zabudowy137.8 m²
- KominekTak
- Liczba łazienek2
- Liczba pokoi5
- Powierzchnia dachu239.5 m²
- Kubatura581 m³
- Długość domu9.7 m
- Szerokość domu15.4 m
- Wysokość domu8.7 m
- Minimalne wymiary działki17.7 x 23.4m
- GarażJednostanowiskowy
- Rodzaj dachuDwuspadowy
- Kąt nach. dachu40°
Instalacja grzewcza
- Instalacja grzewczaGaz
- Instalacja opcjonalna
Zawartość projektu
Zgodnie ze znowelizowaną Ustawą Prawo Budowlane art.34 ust.3, na projekt budowlany składają się trzy części:
- projekt zagospodarowania działki lub terenu
- projekt architektoniczno-budowlany
- projekt techniczny
Nasze projekty oferujemy w 3 egzemplarzach, zawierających projekt architektoniczno-budowlany i projekt techniczny. Projekt zagospodarowania działki lub terenu nie wchodzi w skład projektu oferowanego do sprzedaży. Projekt ten należy zlecić we własnym zakresie lokalnemu projektantowi, który opracuje go na podstawie danych zawartych w projekcie architektoniczno-budowlanym i technicznym, po dostosowaniu projektu do warunków lokalnych i wymagań inwestora.
UWAGA: wszystkie egzemplarze projektu zabezpieczone są hologramami, w części rysunkowej posiadają nadruki zabezpieczające w kolorze zielonym. Zalecamy aby po otrzymaniu przesyłki kontrolować czy na pierwszych stronach projektu znajduje się hologram i czy na rysunkach widoczne są w/w nadruki potwierdzające oryginalność projektu.
Wyrażamy zgodę na wszelkie zmiany zgodne z obowiązującymi przepisami pod warunkiem wprowadzenia ich przez uprawnioną osobę.
Wszystkie zmiany wymienione powyżej powinny być naniesione na oryginał projektu katalogowego trwałą techniką graficzną w kolorze czerwonym lub dołączone jako aneks i podpisane przez osobę uprawnioną dokonująca adaptacji.
**ważne informacje
Projekt w fazie koncepcji dostępny z wydłużonym terminem realizacji. Przy zamówieniu ustalamy termin i pobieramy zadatek 50% podstawowej ceny projektu (jako koszty usługi przygotowania dokumentacji do standardu projektu gotowego, w przypadku rezygnacji z usługi, zadatek nie podlega zwrotowi).
Cena za dodatkowy egzemplarz projektu jest zależna od nazwy projektu!
Dodatki
Bezpłatne dodatki
GratisZestaw umów
GratisZmiany w projekcie
GratisTablica budowy
GratisDziennik budowy
Płatne dodatki

Kosztorys - stan wykończony
540 zł

Projekt wentylacji mechanicznej
1 000 zł









