Projekt domu Dom Dla Ciebie 2 A1 z garażem 2st.
- Typ projektuWolnostojący
- Powierzchnia użytkowa130.4 m²
- Kondygnacje
- GarażDwustanowiskowy
- DachDwuspadowy
- Kąt nach. dachu40°
- Odbicie lustrzaneTak
- Czas realizacjimax. czas realizacji 10 dni Zobacz więcej >
Opis
Zgodność z WT 2021 i Eurokodami
Ze względu na dostosowywanie projektu do standardu WT 2021, czas realizacji może się różnić od standardowego.
Skontaktuj się z nami aby poznać szczegóły dotyczące wybranego projektu.
Opis projektu
Dom Dla Ciebie 2 w wariancie z przybudowanym garażem dwustanowiskowym, to projekt domu dwukondygnacyjnego - z poddaszem użytkowym. Ten atrakcyjny dom zaprojektowany jest dla 4ro osobowej rodziny z zachowaniem podziału na dwie strefy: dzienną na parterze i nocną na poddaszu. Na parterze tego domu zaprojektowany mamy wiatrołap w z miejscem na wnękowe szafy, następnie hol z którego dostaniemy się do kuchni ze spiżarnią, do salonu z jadalnią i kominkiem oraz do pokoju usytuowanego od frontu budynku - pokój ten może być wykorzystywany jako gabinet, np na etapie adaptacji. Przy schodach mamy przewidzianą niewielką ale wygodną łazienkę z prysznicem, a także przejściową pralnię, z której dostaniemy się do garażu oraz kotłowni. Poddasze tego domu obejmuje trzy ustawne i wygodne pokoje, a przy schodach zaprojektowano ogólnie dostępną łazienkę z narożną wanną i prysznicem. Nad garażem mamy do dyspozycji strych który można wykorzystać, np.: na etapie adaptacji jako dodatkowe pomieszczenie: pokój, garderobę lub pomieszczenie rekreacyjne. Poddasze zaprojektowane jest pod dwuspadowym dachem na tradycyjnej więźbie ze śianką kolankową. Projekt Dom Dla Ciebie 2, to idealna propozycją domu dla osób poszukujących ekonomicznego w budowie i energooszczędnego domu o stylowej, współczesnej architekturze i przemyślanej funkcji.
Konstrukcja
Rzuty
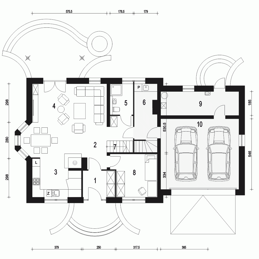
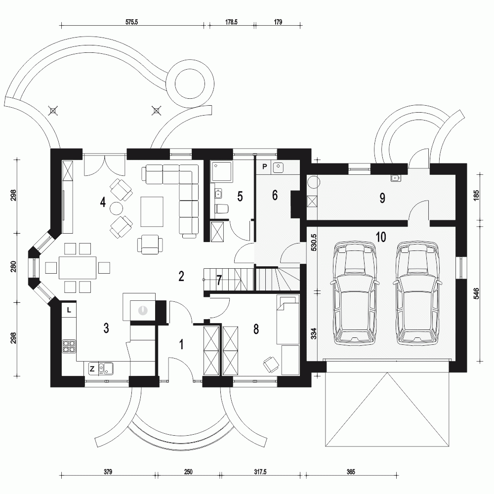
Parter
- m²
- 1. Wiatrołap5
- 2. Hol8.6
- 3. Kuchnia+Spiżarnia10.4
- 4. Salon+Jadalnia30.7
- 5. Łazienka4.2
- 6. Pralnia*8.5
- 7. Schody3.6
- 8. Pokój11
- 9. Kotłownia*11
- 10. Garaż*33.4
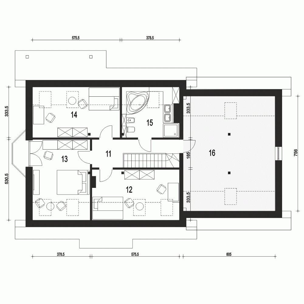
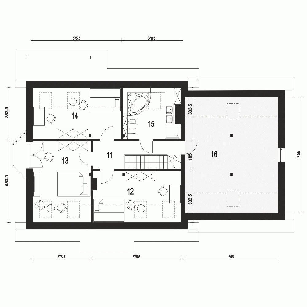
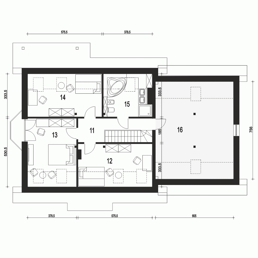
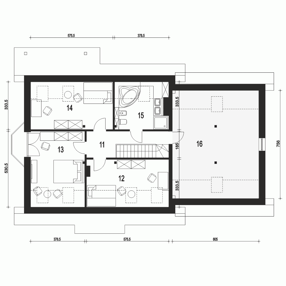
Piętro
Przekrój
Usytuowanie na działce
Dane techniczne
- Powierzchnia użytkowa130.4 m²
- Powierzchnia zabudowy158.2 m²
- KominekTak
- Liczba łazienek2
- Liczba pokoi5
- Powierzchnia dachu278.5 m²
- Długość domu9.7 m
- Szerokość domu17.8 m
- Wysokość domu8.7 m
- Minimalne wymiary działki17.7 x 25.8m
- GarażDwustanowiskowy
- Rodzaj dachuDwuspadowy
- Kąt nach. dachu40°
Instalacja grzewcza
- Instalacja grzewczaGaz
Zawartość projektu
Zgodnie ze znowelizowaną Ustawą Prawo Budowlane art.34 ust.3, na projekt budowlany składają się trzy części:
- projekt zagospodarowania działki lub terenu
- projekt architektoniczno-budowlany
- projekt techniczny
Nasze projekty oferujemy w 3 egzemplarzach, zawierających projekt architektoniczno-budowlany i projekt techniczny. Projekt zagospodarowania działki lub terenu nie wchodzi w skład projektu oferowanego do sprzedaży. Projekt ten należy zlecić we własnym zakresie lokalnemu projektantowi, który opracuje go na podstawie danych zawartych w projekcie architektoniczno-budowlanym i technicznym, po dostosowaniu projektu do warunków lokalnych i wymagań inwestora.
UWAGA: wszystkie egzemplarze projektu zabezpieczone są hologramami, w części rysunkowej posiadają nadruki zabezpieczające w kolorze zielonym. Zalecamy aby po otrzymaniu przesyłki kontrolować czy na pierwszych stronach projektu znajduje się hologram i czy na rysunkach widoczne są w/w nadruki potwierdzające oryginalność projektu.
Wyrażamy zgodę na wszelkie zmiany zgodne z obowiązującymi przepisami pod warunkiem wprowadzenia ich przez uprawnioną osobę.
Wszystkie zmiany wymienione powyżej powinny być naniesione na oryginał projektu katalogowego trwałą techniką graficzną w kolorze czerwonym lub dołączone jako aneks i podpisane przez osobę uprawnioną dokonująca adaptacji.
**ważne informacje
Projekt w fazie koncepcji dostępny z wydłużonym terminem realizacji. Przy zamówieniu ustalamy termin i pobieramy zadatek 50% podstawowej ceny projektu (jako koszty usługi przygotowania dokumentacji do standardu projektu gotowego, w przypadku rezygnacji z usługi, zadatek nie podlega zwrotowi).
Cena za dodatkowy egzemplarz projektu jest zależna od nazwy projektu!
Dodatki
Bezpłatne dodatki
GratisZestaw umów
GratisZmiany w projekcie
GratisTablica budowy
GratisDziennik budowy
Płatne dodatki

Kosztorys - stan wykończony
540 zł

Projekt wentylacji mechanicznej
1 000 zł








