Projekt domu Dom Dla Ciebie 2 W2 A1 z garażem 2st.
- Typ projektuWolnostojący
- Powierzchnia użytkowa135.7 m²
- Kondygnacje
- GarażDwustanowiskowy
- DachDwuspadowy
- Kąt nach. dachu40°
- Odbicie lustrzaneTak
- Czas realizacjimax. czas realizacji 10 dni Zobacz więcej >
Opis
Zgodność z WT 2021 i Eurokodami
Ze względu na dostosowywanie projektu do standardu WT 2021, czas realizacji może się różnić od standardowego.
Skontaktuj się z nami aby poznać szczegóły dotyczące wybranego projektu.
Opis projektu
Dom Dla Ciebie 2 w2 (wersja 2) w wariancie z przybudowanym garażem, to projekt domu dwukondygnacyjnego - z poddaszem użytkowym. Ten atrakcyjny dom zaprojektowany jest dla 4ro osobowej rodziny z zachowaniem podziału na dwie strefy: dzienną na parterze i nocną na poddaszu. W stosunku do poprzedniej wersji projektu mamy tu przewidziane zmiany funkcji w obrębie parteru. Projekt przewiduje większa kuchnię, większy salon z jadalnią. Ponadto zmieniona została lokalizacja pomieszczeń łazienki - w tej wersji zlokalizowane są od frontu oraz pokoju - w tej wersji pokój zlokalizowany został od strony ogrodu. Poza tymi zmianami reszta pomieszczeń jest podobny, tzn wiatrołap i schody pozostały w zasadzie bez zmian, a hol główny jest obszerniejszy i możemy dostać się nim bezpośrednio do garażu. Poddasze tego domu obejmuje trzy ustawne i wygodne pokoje sypialne i ogólnie dostępną łazienkę z narożną wanną i prysznicem. Nad garażem mamy do dyspozycji strych który bardzo łatwo można wykorzystać, np.: na etapie adaptacji jako dodatkowe pomieszczenie: pokój, garderobę lub pomieszczenie rekreacyjne. Poddasze zaprojektowane jest pod dwuspadowym dachem na tradycyjnej więźbie ze ścianką kolankową. Projekt Dom Dla Ciebie 2 w2, to idealna propozycją domu dla osób poszukujących ekonomicznego w budowie i energooszczędnego domu o stylowej, współczesnej architekturze i przemyślanej funkcji.
Konstrukcja
Rzuty
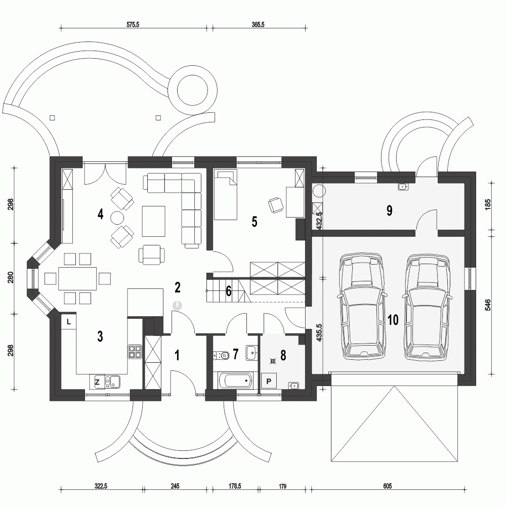
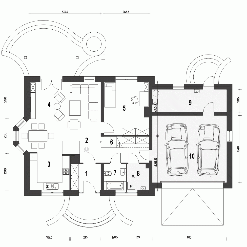
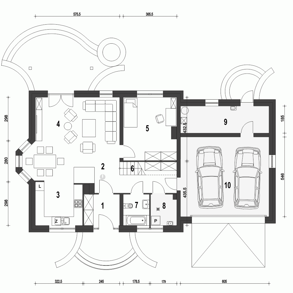
Parter
- m²
- 1. Wiatrołap5.1
- 2. Hol9.5
- 3. Kuchnia9.2
- 4. Salon+Jadalnia32.6
- 5. Pokój15.2
- 6. Schody3.5
- 7. Łazienka3.7
- 8. Pralnia*3.6
- 9. Kotłownia*11
- 10. Garaż*32.7
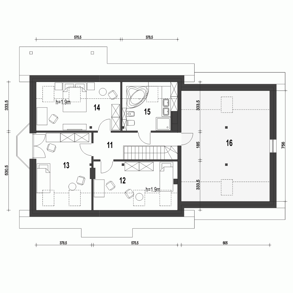
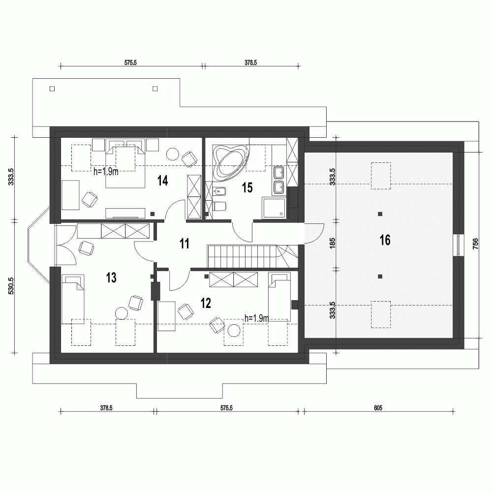
Piętro
- m²
- 11. Przedpokój7.1
- 12. Sypialnia12.9
- 13. Sypialnia15.9
- 14. Sypialnia13.1
- 15. Łazienka7.9
- 16. Strych*24.2
Usytuowanie na działce
Dane techniczne
- Powierzchnia użytkowa135.7 m²
- Powierzchnia zabudowy158.2 m²
- KominekTak
- Liczba łazienek2
- Liczba pokoi5
- Powierzchnia dachu274 m²
- Kubatura645 m³
- Długość domu9.7 m
- Szerokość domu17.8 m
- Wysokość domu8.7 m
- Minimalne wymiary działki17.7 x 25.8m
- GarażDwustanowiskowy
- Rodzaj dachuDwuspadowy
- Kąt nach. dachu40°
Instalacja grzewcza
- Instalacja grzewczaGaz
Zawartość projektu
Zgodnie ze znowelizowaną Ustawą Prawo Budowlane art.34 ust.3, na projekt budowlany składają się trzy części:
- projekt zagospodarowania działki lub terenu
- projekt architektoniczno-budowlany
- projekt techniczny
Nasze projekty oferujemy w 3 egzemplarzach, zawierających projekt architektoniczno-budowlany i projekt techniczny. Projekt zagospodarowania działki lub terenu nie wchodzi w skład projektu oferowanego do sprzedaży. Projekt ten należy zlecić we własnym zakresie lokalnemu projektantowi, który opracuje go na podstawie danych zawartych w projekcie architektoniczno-budowlanym i technicznym, po dostosowaniu projektu do warunków lokalnych i wymagań inwestora.
UWAGA: wszystkie egzemplarze projektu zabezpieczone są hologramami, w części rysunkowej posiadają nadruki zabezpieczające w kolorze zielonym. Zalecamy aby po otrzymaniu przesyłki kontrolować czy na pierwszych stronach projektu znajduje się hologram i czy na rysunkach widoczne są w/w nadruki potwierdzające oryginalność projektu.
Wyrażamy zgodę na wszelkie zmiany zgodne z obowiązującymi przepisami pod warunkiem wprowadzenia ich przez uprawnioną osobę.
Wszystkie zmiany wymienione powyżej powinny być naniesione na oryginał projektu katalogowego trwałą techniką graficzną w kolorze czerwonym lub dołączone jako aneks i podpisane przez osobę uprawnioną dokonująca adaptacji.
**ważne informacje
Projekt w fazie koncepcji dostępny z wydłużonym terminem realizacji. Przy zamówieniu ustalamy termin i pobieramy zadatek 50% podstawowej ceny projektu (jako koszty usługi przygotowania dokumentacji do standardu projektu gotowego, w przypadku rezygnacji z usługi, zadatek nie podlega zwrotowi).
Cena za dodatkowy egzemplarz projektu jest zależna od nazwy projektu!
Dodatki
Bezpłatne dodatki
GratisZestaw umów
GratisZmiany w projekcie
GratisTablica budowy
GratisDziennik budowy
Płatne dodatki

Kosztorys - stan wykończony
540 zł

Projekt wentylacji mechanicznej
1 000 zł







