- Typ projektuWolnostojący
- Powierzchnia użytkowa109.07 m²
- KondygnacjeParterowy, z poddaszem
- GarażJednostanowiskowy
- DachWielospadowy
- Kąt nach. dachu35°
- Odbicie lustrzaneNie
- Czas realizacjimax. czas realizacji 10 dni Zobacz więcej >
Opis
Zgodność z WT 2021 i Eurokodami
Ze względu na dostosowywanie projektu do standardu WT 2021, czas realizacji może się różnić od standardowego.
Skontaktuj się z nami aby poznać szczegóły dotyczące wybranego projektu.
Opis projektu
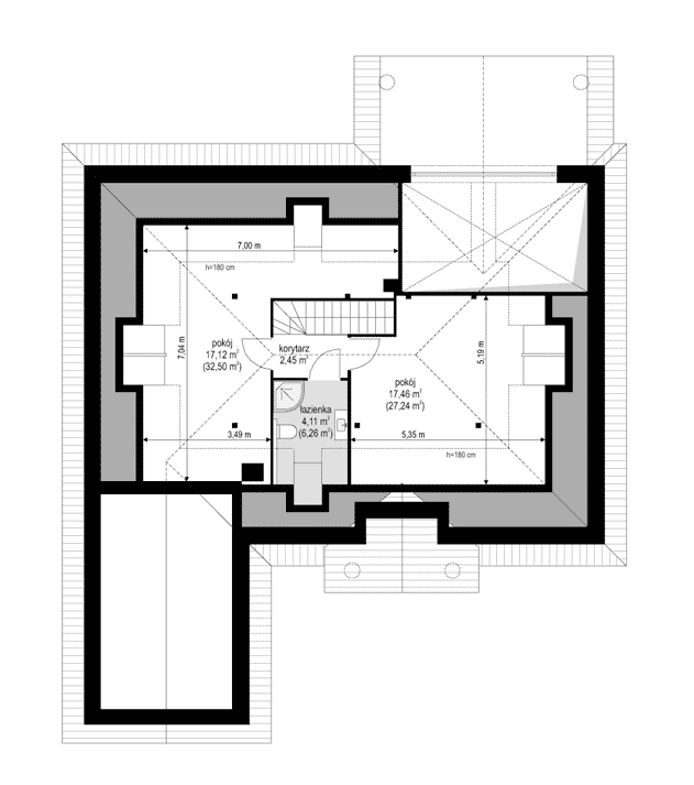
Projekt domu Dom na parkowej 5 jest to kolejny projekt z popularnej serii „Domów na parkowej”, czyli wersja z dachem o większym kącie nachylenia, oraz węższej bryle i pojedynczym garażu. Dom na parkowej 5 jest mniejszy od wersji bazowej i nadaje się na węższą działkę. Dach o kącie 35 stopni z kolei pozwoli sprostać ostrzejszym warunkom zabudowy, a poza tym uzyskujemy nad parterem większe poddasze użytkowe (właściwie strych, który można zaadaptować na poddasze użytkowe jeśli jest taka potrzeba). Architektura domu to nawiązanie do amerykańskich willi z przedmieść, oraz do polskiego dworku, ale w nowocześniejszym ujęciu. Bryła budynku jest prostokątna, przekryta czterospadowym dachem, z dobudowanym wystającym nieco do przodu garażem. W ten sposób przed domem tworzy się większa i bardziej reprezentacyjna część frontowa. Wejście domu zostało podkreślone pięknym frontowym portalem z szerokimi drzwiami z naświetlami po bokach. Od strony ogrodowej mamy z kolei duży zadaszony taras, oraz szerokie przeszklenie łączące salon z tarasem i ogrodem. Wnętrze domu podzielono funkcjonalnie na trzy części: dzienną, nocną i gospodarczo-garażową. Z ładnego przedsionka przechodzimy szerokimi drzwiami na wprost do części dziennej, z salonem, kuchnią i holem. Z części dziennej przechodzimy do sypialni - mamy tutaj trzy sypialnie oraz łazienkę. Sypialnie dzieci mają wbudowane szafy, sypialnia rodziców – garderobę. Z przedsionka możemy też przedostać się do pomieszczenia gospodarczego i garażu. Na strychu mamy miejsce do zaadaptowania na poddasze składające się z dwóch pokoi i łazienki. Projekt domu Dom na parkowej 5 to doskonała propozycja dla osób planujących niewielki dom, ale nie chcących rezygnować z urody, ani godzić się na maksymalne uproszczenie detalu architektonicznego. Projekt domu Dom na parkowej 5 dzięki prostej bryle i konstrukcji będzie niedrogi w realizacji, a dom dzięki zastosowaniu nowoczesnych i energooszczędnych materiałów, oraz instalacji, będzie też tani w późniejszej eksploatacji. Zapraszamy do zapoznania się z pełną ofertą pracowni MG Projekt: projekt domu Dom na parkowej, projekt domu Dom na parkowej 2, projekt domu Dom na parkowej 3, projekt domu Dom na parkowej 4, projekt domu Dom na parkowej 6, projekt domu Dom na parkowej 7 A, projekt domu Dom na parkowej 7 B.
Konstrukcja
- Fundamentybetonowe ławy i ściany fundamentowe z bloczków betonowych
- Ściany zewnętrzneściany murowane - pustaki porotherm 25 + styropian + tynk cienkowarstwowy
- Stropmonolityczny żelbetowy nad parterem
- Elewacjetynk cienkowarstwowy
- Pokrycie dachudachówka
Rzuty
Dane techniczne
- Powierzchnia użytkowa109.07 m²
- Powierzchnia netto113.46 m²
- Powierzchnia zabudowy170.45 m²
- KominekTak
- Liczba łazienek3
- Liczba pokoi6
- Powierzchnia dachu271.8 m²
- Kubatura671 m³
- Długość domu17.85 m
- Szerokość domu14.3 m
- Wysokość domu7.61 m
- Poddaszedo adaptacji
- Minimalne wymiary działki24.85 x 22.3m
- GarażJednostanowiskowy
- Rodzaj dachuWielospadowy
- Kąt nach. dachu35°
Koszty budowy
- Stan surowy219185 zł
- Stan surowy zamknięty295172 zł
- Koszt wykończenia292423 zł
- Koszt instalacji77218 zł
Zawartość projektu
W komplecie nowej wersji dokumentacji projektowej znajdują się 3 egzemplarze projektu architektoniczno-budowlanego oraz 3 egzemplarze projektu technicznego
Projekt architektoniczno-budowlany zawierający:
-opis architektoniczny z elementami konstrukcji,
-część rysunkowa: rzut parteru, poddasza/piętra, rzut dachu w skali 1:100, przekroje skala 1:50,
elewacje skala 1:100.
Projekt techniczny zawierający:
-opis techniczny i konstrukcyjny (obliczenia statyczne - w zależności od projektu włączone w projekt lub stanowiące odrębną teczkę).
Część rysunkowa architektura i konstrukcja:
-rzuty fundamentów, parteru, poddasza, stropu, więźby, dachu / w skali 1:50,
-przekroje przez budynek / budynek skali 1:50,
-elewacje budynku / w skali 1:50 (*niektóre projekty posiadają rysunki w skali 1:100 lub 1:75),
-zestawienie stolarki budowlanej okiennej i drzwiowej,
-szczegóły konstrukcji i ewentualne szczegóły budowlane,
Część instalacyjna:
-część opisowa do projektów instalacji elektrycznych, wodno-kanalizacyjnych, grzewczych, gazowych (jeśli występują).
Część rysunkowa do projektów instalacji:
-schematy instalacji elektrycznych, schemat rozdzielni, plan instalacji odgromowej,
-schematy instalacji wodno-kanalizacyjnej i ciepłej wody,
-schematy instalacji grzewczych,
-schemat instalacji gazowej (jeśli występują).
Do projektu dołączane jest zestawienie materiałowe, z wykazem elementów drewnianych oraz stali budowlanej.
Do projektu dołączone są kopie uprawnień wszystkich projektantów, oraz aktualne zaświadczenia o przynależności do izb zawodowych.
Projekt zawiera oświadczenie projektantów o poprawności projektu w świetle Prawa Budowlanego, a także zawiera informację dotyczącą bezpieczeństwa i ochrony zdrowia ( BIOZ).
Do projektu dołączona jest także zgoda na zmiany adaptacyjne. Zgoda dołączana jest do każdego projektu bezpłatnie. Na Państwa życzenie zakres zgody na zmiany możemy dowolnie rozszerzyć.
Pracownia zezwala na następujące zmiany i odstępstwa od projektu architektoniczno-budowlanego w trakcie jego przystosowywania do lokalizacji:
- Zmianę obrysu zewnętrznego ścian zewnętrznych.
- Zmianę obrysu wewnętrznego ścian zewnętrznych.
- Zmianę układu ścian wewnętrznych działowych.
- Zmianę funkcji, ilości i usytuowania poszczególnych pomieszczeń na dowolnej kondygnacji w projekcie.
- Zmianę ukształtowania, ilości i kąta nachylenia połaci dachowych.
- Zmianę ilości, umiejscowienia i wielkości otworów okiennych i drzwiowych.
- Zmianę rodzaju materiału i technologii wykonania ścian zewnętrznych oraz wewnętrznych oraz ścian fundamentowych.
- Zmianę rodzaju i technologii wykonania stropów nad dowolną kondygnacją.
- Zmianę umiejscowienia, kształtu i materiału wykonania schodów w budynku.
- Zmianę wielkości, kształtu i materiałów, bądź likwidacja: tarasów, podestów i balkonów.
- Likwidację lub dodanie dowolnej ilości:
- lukarn,
- wykuszy,
- podcieni,
- balkonów,
- loggii,
- kolumn,
- pilastrów,
- ganków,
- werand.
- Zmianę materiałów wykończeniowych, instalacyjnych, izolacyjnych.
- Zmianę rodzaju pokrycia dachowego.
- Doprojektowanie bądź likwidacja podpiwniczenia - częściowego lub całkowitego.
Dodatki
Bezpłatne dodatki
GratisZestaw umów
GratisZmiany w projekcie
PromocjaProjekt szamba szczelnego
GratisTablica budowy
GratisDziennik budowy
Płatne dodatki

Pakiet wentylacja mechaniczna i kominek DGP
550 zł

Kosztorys inwestorski
600 zł

Pakiet odkurzacz centralny
550 zł

Wersja elektroniczna projektu
600 zł

Pakiet instalacja solarna
550 zł

Pakiet ogrzewanie podłogowe
550 zł

Pakiet powietrzna pompa ciepła
550 zł

Pakiet płaszcz wodny
550 zł

Pakiet kotłownia na paliwo stałe
550 zł

Pakiet klimatyzacja w domu
550 zł

Projekt ogrodzenia
750 zł

Pakiet instalacja fotowoltaiczna
550 zł

Pakiet kominek z DGP
500 zł

Pakiet gruntowa pompa ciepła
550 zł

Projekt altan i grilów ogrodowych
850 zł

Dodatkowy egzemplarz do projektu
650 zł













