- Typ projektuWolnostojący
- Powierzchnia użytkowa151.65 m²
- KondygnacjeParterowy, z poddaszem
- GarażJednostanowiskowy
- DachWielospadowy
- Kąt nach. dachu35°
- Odbicie lustrzaneNie
- Czas realizacjimax. czas realizacji 10 dni Zobacz więcej >
Opis
Zgodność z WT 2021 i Eurokodami
Ze względu na dostosowywanie projektu do standardu WT 2021, czas realizacji może się różnić od standardowego.
Skontaktuj się z nami aby poznać szczegóły dotyczące wybranego projektu.
Opis projektu
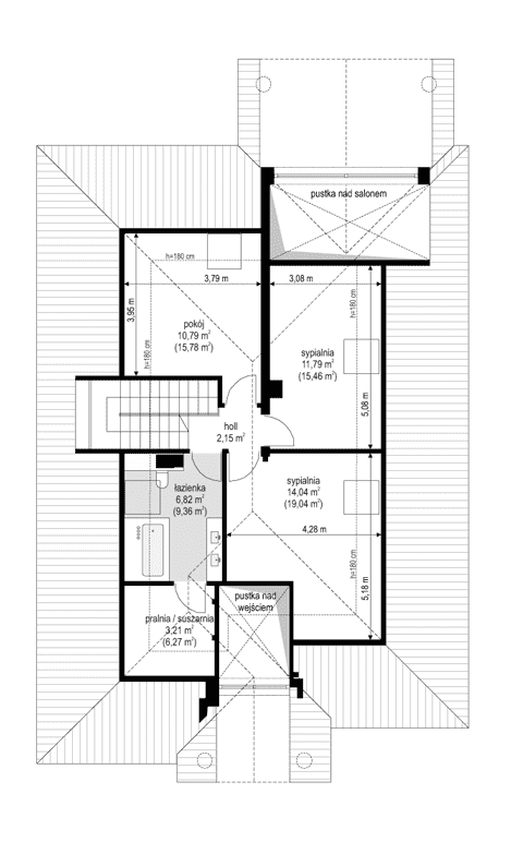
Projekt domu Dom na parkowej 7B to kolejny projekt z cieszącej się popularnością serii projektów: Dom na Parkowej. Budynek zaprojektowano w podobnej stylistyce do innych „parkowych”, z zastosowaniem identycznych detali, ale jego bryła jest zasadniczo inna - przystosowana do budowy domu na wąskiej działce, mającej szerokość nawet poniżej 18-tu metrów. Projekt domu Dom na parkowej 7B zakomponowano na planie prostokąta, którego krótszy bok przylega do frontu działki i drogi dojazdowej. Bryłę przykryto czterospadowych dachem o kącie nachylenia 35 stopni, skrywającym w sobie poddasze użytkowe z sypialniami dziecięcymi. Do domu wchodzimy reprezentacyjnym portykiem wejściowym, z łukowym sklepieniem i frontowymi drzwiami z naświetlami wprost do przedsionka i wnętrza budynku. Po obu stronach podcienia wejściowego pozostają : duże kuchenne okno, oraz wrota garażowe. Od strony elewacji tylnej - ogrodowej, mamy uroczy zadaszony taras z pięknym szerokim oknem salonu z łukowym naświetlem, łączącym wnętrze z tarasem i otaczającym dom ogrodem. Na parterze budynku przewidziano przestrzeń dzienną połączonego salonu, holu i kuchni, dalej część gospodarczą, z garażem, kotłownią i pralnią, oraz apartament rodziców z sypialnią, łazienką i garderobą. Na poddaszu mamy trzy pokoje, oraz łazienkę. Nad częścią salonu przewidziano otwarcie przestrzenne – pustkę, odkrywającą sufit, aby uzyskać więcej oddechu, urozmaicić salon i otworzyć się na piękne wysokie okno na taras. Dom na Parkowej 7B to elegancka, reprezentacyjna niewielka willa. Projekt domu Dom na parkowej 7B zaprojektowany z klasą i smakiem, przewidziany na niedużą działkę i obliczony na rozsądny budżet. Budynek ma zwartą bryłę i prostą konstrukcję. Budowa domu nie powinna przysporzyć wielu kłopotów, a koszty eksploatacji, dzięki doskonałym izolacjom i nowoczesnym instalacjom będą niskie. Projekt domu Dom na parkowej 7B to doskonała propozycja dla Inwestorów lubiących klasyczną architekturę podmiejskich willi i dworku polskiego, ale planujących zmieścić się w sensownym budżecie z samą budową. Zapraszamy do zapoznania się z pełną ofertą pracowni MG Projekt: projekt domu Dom na parkowej, projekt domu Dom na parkowej 2, projekt domu Dom na parkowej 3, projekt domu Dom na parkowej 4, projekt domu Dom na parkowej 5, projekt domu Dom na parkowej 6, projekt domu Dom na parkowej 7 A.
Konstrukcja
- Fundamentybetonowe ławy i ściany fundamentowe z bloczków betonowych
- Ściany zewnętrzneściany murowane - pustaki porotherm 25 + styropian
- Stropmonolityczny betonowy
- Elewacjetynk cienkowarstwowy
- Pokrycie dachudachówka
Rzuty
Dane techniczne
- Powierzchnia użytkowa151.65 m²
- Powierzchnia netto158.36 m²
- Powierzchnia zabudowy165.45 m²
- KominekTak
- Liczba łazienek3
- Liczba pokoi5
- Powierzchnia dachu262.1 m²
- Kubatura730 m³
- Długość domu19.15 m
- Szerokość domu10.8 m
- Wysokość domu7.73 m
- Poddaszeużytkowe
- Minimalne wymiary działki25.45 x 17.8m
- GarażJednostanowiskowy
- Rodzaj dachuWielospadowy
- Kąt nach. dachu35°
Koszty budowy
- Stan surowy239349 zł
- Stan surowy zamknięty328660 zł
- Koszt wykończenia319200 zł
- Koszt instalacji114118 zł
Zawartość projektu
W komplecie nowej wersji dokumentacji projektowej znajdują się 3 egzemplarze projektu architektoniczno-budowlanego oraz 3 egzemplarze projektu technicznego
Projekt architektoniczno-budowlany zawierający:
-opis architektoniczny z elementami konstrukcji,
-część rysunkowa: rzut parteru, poddasza/piętra, rzut dachu w skali 1:100, przekroje skala 1:50,
elewacje skala 1:100.
Projekt techniczny zawierający:
-opis techniczny i konstrukcyjny (obliczenia statyczne - w zależności od projektu włączone w projekt lub stanowiące odrębną teczkę).
Część rysunkowa architektura i konstrukcja:
-rzuty fundamentów, parteru, poddasza, stropu, więźby, dachu / w skali 1:50,
-przekroje przez budynek / budynek skali 1:50,
-elewacje budynku / w skali 1:50 (*niektóre projekty posiadają rysunki w skali 1:100 lub 1:75),
-zestawienie stolarki budowlanej okiennej i drzwiowej,
-szczegóły konstrukcji i ewentualne szczegóły budowlane,
Część instalacyjna:
-część opisowa do projektów instalacji elektrycznych, wodno-kanalizacyjnych, grzewczych, gazowych (jeśli występują).
Część rysunkowa do projektów instalacji:
-schematy instalacji elektrycznych, schemat rozdzielni, plan instalacji odgromowej,
-schematy instalacji wodno-kanalizacyjnej i ciepłej wody,
-schematy instalacji grzewczych,
-schemat instalacji gazowej (jeśli występują).
Do projektu dołączane jest zestawienie materiałowe, z wykazem elementów drewnianych oraz stali budowlanej.
Do projektu dołączone są kopie uprawnień wszystkich projektantów, oraz aktualne zaświadczenia o przynależności do izb zawodowych.
Projekt zawiera oświadczenie projektantów o poprawności projektu w świetle Prawa Budowlanego, a także zawiera informację dotyczącą bezpieczeństwa i ochrony zdrowia ( BIOZ).
Do projektu dołączona jest także zgoda na zmiany adaptacyjne. Zgoda dołączana jest do każdego projektu bezpłatnie. Na Państwa życzenie zakres zgody na zmiany możemy dowolnie rozszerzyć.
Pracownia zezwala na następujące zmiany i odstępstwa od projektu architektoniczno-budowlanego w trakcie jego przystosowywania do lokalizacji:
- Zmianę obrysu zewnętrznego ścian zewnętrznych.
- Zmianę obrysu wewnętrznego ścian zewnętrznych.
- Zmianę układu ścian wewnętrznych działowych.
- Zmianę funkcji, ilości i usytuowania poszczególnych pomieszczeń na dowolnej kondygnacji w projekcie.
- Zmianę ukształtowania, ilości i kąta nachylenia połaci dachowych.
- Zmianę ilości, umiejscowienia i wielkości otworów okiennych i drzwiowych.
- Zmianę rodzaju materiału i technologii wykonania ścian zewnętrznych oraz wewnętrznych oraz ścian fundamentowych.
- Zmianę rodzaju i technologii wykonania stropów nad dowolną kondygnacją.
- Zmianę umiejscowienia, kształtu i materiału wykonania schodów w budynku.
- Zmianę wielkości, kształtu i materiałów, bądź likwidacja: tarasów, podestów i balkonów.
- Likwidację lub dodanie dowolnej ilości:
- lukarn,
- wykuszy,
- podcieni,
- balkonów,
- loggii,
- kolumn,
- pilastrów,
- ganków,
- werand.
- Zmianę materiałów wykończeniowych, instalacyjnych, izolacyjnych.
- Zmianę rodzaju pokrycia dachowego.
- Doprojektowanie bądź likwidacja podpiwniczenia - częściowego lub całkowitego.
Dodatki
Bezpłatne dodatki
GratisZestaw umów
GratisZmiany w projekcie
PromocjaProjekt szamba szczelnego
GratisTablica budowy
GratisDziennik budowy
Płatne dodatki

Pakiet wentylacja mechaniczna i kominek DGP
550 zł

Kosztorys inwestorski
600 zł

Pakiet odkurzacz centralny
550 zł

Wersja elektroniczna projektu
600 zł

Pakiet instalacja solarna
550 zł

Pakiet ogrzewanie podłogowe
550 zł

Pakiet powietrzna pompa ciepła
550 zł

Pakiet płaszcz wodny
550 zł

Pakiet kotłownia na paliwo stałe
550 zł

Pakiet klimatyzacja w domu
550 zł

Projekt ogrodzenia
750 zł

Pakiet instalacja fotowoltaiczna
550 zł

Pakiet kominek z DGP
500 zł

Pakiet gruntowa pompa ciepła
550 zł

Projekt altan i grilów ogrodowych
850 zł

Dodatkowy egzemplarz do projektu
650 zł

















