Projekt domu Dom przy Alabastrowej 52
- Typ projektuWolnostojący
- StylNowoczesny
- Powierzchnia użytkowa125 m²
- Kondygnacjez poddaszem
- GarażJednostanowiskowy
- DachDwuspadowy
- Kąt nach. dachu40°
- Odbicie lustrzaneTak
- Czas realizacjimax. czas realizacji 10 dni Zobacz więcej >
Opis
Zgodność z WT 2021 i Eurokodami
Ze względu na dostosowywanie projektu do standardu WT 2021, czas realizacji może się różnić od standardowego.
Skontaktuj się z nami aby poznać szczegóły dotyczące wybranego projektu.
Opis projektu
Dom przy Alabastrowej 52 to projekt domu z użytkowym poddaszem, o zwartej bryle i dwuspadowym dachu. Projekt należy do grupy domów energooszczędnych, zawiera wentylację mechaniczną z rekuperacją oraz schemat instalacji solarnej. W projekcie przewidziano ogrzewanie gazowe. Nowoczesna stylistyka charakteryzuje się kolorystyką w odcieniach czerni i bieli, szklanymi balkonami oraz dużymi przeszkleniami. Ciekawym elementem dekoracyjnym, lecz i funkcjonalnym jest pergola ocieniająca taras. Na parterze przewidziano doskonale doświetlony salon, z którego można wyjść na taras. Ponadto do dyspozycji mamy dużą kuchnię, łazienkę oraz dodatkowy pokój. Zaplecze gospodarcze stanowią; kotłownia i garaż z jednym miejscem postojowym oraz pomieszczenie gospodarcze, zlokalizowane pod schodami. Na poddaszu zaprojektowano trzy przytulne i jasne sypialnie oraz drugą łazienkę, z pomieszczeniem na pralnię. Do dyspozycji mieszkańców oddano ponadto dużą garderobę, dostępną z korytarza.Alabastrowa 52 to oszczędny dom,który po wybudowaniu można ekonomicznie użytkować. Przewidziana technologia budowy - murowana, posiada aktualną charakterystykę energetyczną według WT 2021. Szczegóły projektu na https://www.galeriadomow.pl/projekty-domow/projekt-dom-przy-alabastrowej-52.htmlKonstrukcja
Ściany zewnętrzne: pustak 25 cm, styropian 20 cm.Ściany nośne: pustak 25 cm.
Strop: monolityczny żelbetowy.
Dach: kąt nachylenia 40°, pokrycie - dachówka ceramiczna lub betonowa.
Rzuty
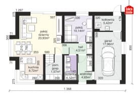
Parter
- 1 - Wiatrołap4.93 m²
- 2 - Hall4.51 m²
- 3 - Łazienka4.12 m²
- 4 - Pom. gosp.1.57 m²
- 5 - Kuchnia8.72 m²
- 6 - Pokój dzienny23.93 m²
- 7 - Pokój10.14 m²
- 8 - Kotłownia5.42 m²
- 9 - Garaż17.96 m²
Poddasze
- 1 - Hall + schody12.78 m²
- 2 - Pokój10.74 m²
- 3 - Pokój11.65 m²
- 4 - Garderoba6.74 m²
- 5 - Pralnia + suszarnia3.59 m²
- 6 - Łazienka9.77 m²
- 7 - Garderoba4.15 m²
- 8 - Pokój12.84 m²
Przekrój
Sytuacja
Dane techniczne
- Powierzchnia użytkowa125 m²
- Powierzchnia zabudowy113.04 m²
- KominekTak
- Liczba łazienek2
- Liczba pokoi6
- Kubatura637.24 m³
- Wysokość domu8.26 m
- Minimalne wymiary działki21.68 x 16.5m
- GarażJednostanowiskowy
- Rodzaj dachuDwuspadowy
- Kąt nach. dachu40°
Instalacja grzewcza
- Instalacja grzewczainstalacja solarna, instalacja wentylacji mechanicznej
Zawartość projektu
Każdy egzemplarz dokumentacji składa się z z 6 egzemplarzy.Architekt wykonujący przystosowanie projektu gotowego tworzy projekt budowlany składający się z dwóch części - projektu architektoniczno-budowlanego (3 egzemplarze) oraz projektu technicznego (3 egzemplarze).
Projekt gotowy zawiera:
-projekt architektoniczny - zawierający opis oraz rysunki techniczne,
-projekt konstrukcyjny - składający się z opisu, obliczeń statycznych, rysunków oraz zestawień stali konstrukcyjnej i elementów więźby
-projekt wewnętrznych instalacji sanitarnych i grzewczych obejmujący instalacje: c.o., wodną, kanalizacyjną i gazową - zawierający opis, rysunki techniczne i zestawienia materiałów
-projekt wewnętrznej instalacji elektrycznej i odgromowej - składający się z opisu oraz rysunków technicznych.
We wszystkich egzemplarzach znajdą Państwo dołączony komplet uprawnień oraz niezbędne zaświadczenia projektantów o wpisach do izb zawodowych.
Zgoda na zmiany w pełnym zakresie dołączana jest automatycznie do projektu gotowego. Projektant dokonujący adaptacji projektu może wprowadzić następujące zmiany:
- wynikające z dostosowania budynku do warunków lokalnych
- zmiana technologii w zakresie użytych materiałów
- zmiana ilości, wielkości i usytuowania otworów okiennych i drzwiowych
- zmiana funkcji niektórych pomieszczeń
- zmiana wysokości pomieszczeń
- przesunięcie lub likwidacja niektórych ścian działowych
- zmiana obrysu zewnętrznego budynku
- adaptacja poddasza na cele mieszkalne
- zmiana wysokości ścian kolankowych
- zmiana geometrii połaci dachowych: kąta nachylenia, ilości i układu połaci dachowych (np. zmiana z wielospadowego, na dwuspadowy lub odwrotnie)
- zmiana lukarn na okna połaciowe (lub odwrotnie)
- zmiany szerokości biegów schodowych, liczby stopni i wymiarów schodów
- instalacji wewnętrznych
- zmiana ilości, wielkości i usytuowania trzonów kominowych
- zmiana wielkości i kształtu tarasów zewnętrznych
- wprowadzenie częściowego (całkowitego) podpiwniczenia budynku lub rezygnacja z podpiwniczenia
- dobudowanie garażu (wiaty garażowej) lub rezygnacja z garażu
- wykonanie lustrzanego odbicia
- likwidacja lub dodanie balkonu
- zmiana formy wejścia do budynku
- dobudowa do istniejącego budynku lub zestawienie w zabudowie bliźniaczej
- zmiana sposobu użytkowania budynku
- zmiany w układzie konstrukcji budynku na podstawie opracowania przez uprawnionego inżyniera budownictwa lądowego
Zmiany powyższe powinny być zaznaczone kolorem czerwonym w projekcie gotowym i podpisane przez osobę uprawnioną. W uzasadnionych przypadkach należy wykonać rysunki zamienne. Za zakres i poprawność przystosowania projektu gotowego (w tym wprowadzonych zmian) oraz za jego zgodność z obowiązującymi normami i przepisami budowlanymi w dniu składania projektu do zatwierdzenia, odpowiedzialność ponosi projektant przystosowujący projekt gotowy. Obowiązki z tytułu sprawowania nadzoru autorskiego przyjmuje na siebie projektant przystosowujący projekt gotowy.
Inne warianty tego projektu
Dodatki
Bezpłatne dodatki
GratisZestaw umów
GratisZmiany w projekcie
GratisTablica budowy
GratisDziennik budowy














