- Typ projektuWolnostojący
- StylNowoczesny
- Powierzchnia użytkowa177.65 m²
- Kondygnacjez poddaszem
- GarażDwustanowiskowy
- DachDwuspadowy
- Kąt nach. dachu40°
- Odbicie lustrzaneTak
- Czas realizacjimax. czas realizacji 10 dni Zobacz więcej >
Opis
Zgodność z WT 2021 i Eurokodami
Ze względu na dostosowywanie projektu do standardu WT 2021, czas realizacji może się różnić od standardowego.
Skontaktuj się z nami aby poznać szczegóły dotyczące wybranego projektu.
Opis projektu
Konstrukcja
Ściany zewnętrzne: pustak 25 cm, styropian 20 cm.Ściany nośne: pustak 25 cm.
Strop: monolityczny żelbetowy.
Dach: kąt nachylenia 40°, pokrycie - dachówka ceramiczna lub betonowa.
Rzuty
Parter
- 1 - wiatrołap8.44 m²
- 2 - hall4.36 m²
- 3 - spiżarnia1.17 m²
- 4 - kuchnia11.27 m²
- 5 - pokój dzienny32.98 m²
- 6 - pokój19.32 m²
- 7 - pralnia2.54 m²
- 8 - łazienka4.26 m²
- 9 - kotłownia10.72 m²
- 10 - garaż31.67 m²
Poddasze
- 1 - hall + schody13.51 m²
- 2 - pokój19.8 m²
- 3 - łazienka3.31 m²
- 4 - garderoba2.79 m²
- 5 - strych5.46 m²
- 6 - łazienka10.85 m²
- 7 - pokój13.21 m²
- 8 - pokój11.61 m²
- 9 - pokój8.64 m²
- 10 - pokój8.92 m²
- 11 - garderoba3.21 m²
Przekrój
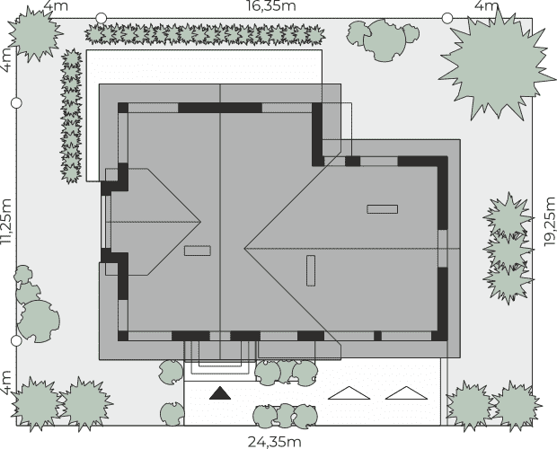
Sytuacja
Dane techniczne
- Powierzchnia użytkowa177.65 m²
- Powierzchnia zabudowy163.01 m²
- KominekTak
- Liczba łazienek3
- Liczba pokoi7
- Kubatura881.34 m³
- Wysokość domu8.42 m
- Minimalne wymiary działki24.35 x 19.25m
- GarażDwustanowiskowy
- Rodzaj dachuDwuspadowy
- Kąt nach. dachu40°
Instalacja grzewcza
- Instalacja grzewczainstalacja wentylacji mechanicznej
Zawartość projektu
Każdy egzemplarz dokumentacji składa się z z 6 egzemplarzy.Architekt wykonujący przystosowanie projektu gotowego tworzy projekt budowlany składający się z dwóch części - projektu architektoniczno-budowlanego (3 egzemplarze) oraz projektu technicznego (3 egzemplarze).
Projekt gotowy zawiera:
-projekt architektoniczny - zawierający opis oraz rysunki techniczne,
-projekt konstrukcyjny - składający się z opisu, obliczeń statycznych, rysunków oraz zestawień stali konstrukcyjnej i elementów więźby
-projekt wewnętrznych instalacji sanitarnych i grzewczych obejmujący instalacje: c.o., wodną, kanalizacyjną i gazową - zawierający opis, rysunki techniczne i zestawienia materiałów
-projekt wewnętrznej instalacji elektrycznej i odgromowej - składający się z opisu oraz rysunków technicznych.
We wszystkich egzemplarzach znajdą Państwo dołączony komplet uprawnień oraz niezbędne zaświadczenia projektantów o wpisach do izb zawodowych.
Zgoda na zmiany w pełnym zakresie dołączana jest automatycznie do projektu gotowego. Projektant dokonujący adaptacji projektu może wprowadzić następujące zmiany:
- wynikające z dostosowania budynku do warunków lokalnych
- zmiana technologii w zakresie użytych materiałów
- zmiana ilości, wielkości i usytuowania otworów okiennych i drzwiowych
- zmiana funkcji niektórych pomieszczeń
- zmiana wysokości pomieszczeń
- przesunięcie lub likwidacja niektórych ścian działowych
- zmiana obrysu zewnętrznego budynku
- adaptacja poddasza na cele mieszkalne
- zmiana wysokości ścian kolankowych
- zmiana geometrii połaci dachowych: kąta nachylenia, ilości i układu połaci dachowych (np. zmiana z wielospadowego, na dwuspadowy lub odwrotnie)
- zmiana lukarn na okna połaciowe (lub odwrotnie)
- zmiany szerokości biegów schodowych, liczby stopni i wymiarów schodów
- instalacji wewnętrznych
- zmiana ilości, wielkości i usytuowania trzonów kominowych
- zmiana wielkości i kształtu tarasów zewnętrznych
- wprowadzenie częściowego (całkowitego) podpiwniczenia budynku lub rezygnacja z podpiwniczenia
- dobudowanie garażu (wiaty garażowej) lub rezygnacja z garażu
- wykonanie lustrzanego odbicia
- likwidacja lub dodanie balkonu
- zmiana formy wejścia do budynku
- dobudowa do istniejącego budynku lub zestawienie w zabudowie bliźniaczej
- zmiana sposobu użytkowania budynku
- zmiany w układzie konstrukcji budynku na podstawie opracowania przez uprawnionego inżyniera budownictwa lądowego
Zmiany powyższe powinny być zaznaczone kolorem czerwonym w projekcie gotowym i podpisane przez osobę uprawnioną. W uzasadnionych przypadkach należy wykonać rysunki zamienne. Za zakres i poprawność przystosowania projektu gotowego (w tym wprowadzonych zmian) oraz za jego zgodność z obowiązującymi normami i przepisami budowlanymi w dniu składania projektu do zatwierdzenia, odpowiedzialność ponosi projektant przystosowujący projekt gotowy. Obowiązki z tytułu sprawowania nadzoru autorskiego przyjmuje na siebie projektant przystosowujący projekt gotowy.
Dodatki
Bezpłatne dodatki
GratisZestaw umów
GratisZmiany w projekcie
GratisTablica budowy
GratisDziennik budowy














