- Typ projektuWolnostojący
- StylNowoczesny
- Powierzchnia użytkowa89.53 m²
- Kondygnacjez poddaszem
- GarażJednostanowiskowy
- DachDwuspadowy
- Kąt nach. dachu40°
- Odbicie lustrzaneTak
- Czas realizacjimax. czas realizacji 10 dni Zobacz więcej >
Opis
Zgodność z WT 2021 i Eurokodami
Ze względu na dostosowywanie projektu do standardu WT 2021, czas realizacji może się różnić od standardowego.
Skontaktuj się z nami aby poznać szczegóły dotyczące wybranego projektu.
Opis projektu
Dom przy Migdałowej 4 to budynek jednorodzinny z dachem dwuspadowym przygotowany z myślą o wąskich działkach. Prosta konstrukcja dachu oraz forma budynku sprawiają, iż jest to dom oszczędny w budowie i nie sprawia trudności w trakcie realizacji. Wnętrze dzieli się na strefę dzienną, na parterze i nocną, na poddaszu. Przestronny salon posiada szerokie przeszklenia, co sprawia iż przyjemnie otwiera się na zieloną strefę ogrodu. Znalazło się w nim miejsce na kominek, narożną sofę oraz stół jadalniany. Kuchnia również posiada duże okno, przez co pracuje się w niej przyjemnie. Na parterze zaprojektowano również niewielką łazienkę, pralnię i spiżarnię. Poddasze mieści 3 pokoje, główną łazienkę oraz garderobę. Każdy pokój ma dostęp do balkonów. Sypialnia małżeńska wychodzi na okazały taras. Nowoczesna estetyka, energooszczędne rozwiązania i przemyślany układ wnętrza sprawiają, iż dom jest ciekawą propozycją, szczególnie dla inwestorów posiadających wąskie działki.Konstrukcja
Ściany zewnętrzne: pustak 25 cm, styropian 20 cm.Ściany nośne: pustak 25 cm.
Strop: monolityczny żelbetowy.
Dach: kąt nachylenia 40°, pokrycie - dachówka ceramiczna lub betonowa.
Rzuty
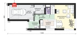
Parter
- 1 - Wiatrołap4.27 m²
- 2 - Hall6.05 m²
- 3 - Garaż20.4 m²
- 4 - Kotłownia5.2 m²
- 5 - WC0.81 m²
- 6 - Pokój dzienny25.07 m²
- 7 - Kuchnia8 m²
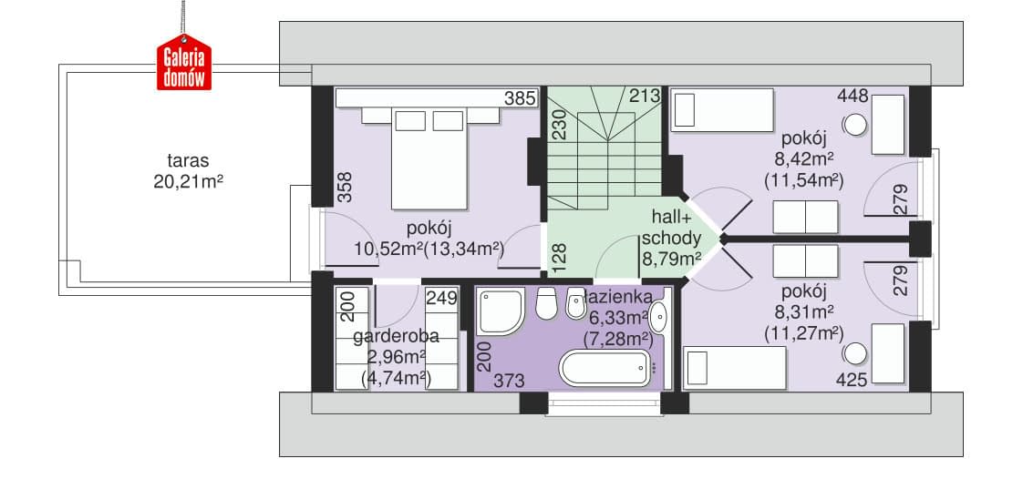
Poddasze
- 1 - Hall + schody8.79 m²
- 2 - Pokój8.42 m²
- 3 - Pokój8.31 m²
- 4 - Łazienka6.33 m²
- 5 - Garderoba2.96 m²
- 6 - Pokój10.52 m²
- 7 - Taras20.21 m²
Przekrój
Sytuacja
Dane techniczne
- Powierzchnia użytkowa89.53 m²
- Powierzchnia zabudowy97.93 m²
- KominekTak
- Liczba łazienek2
- Liczba pokoi4
- Kubatura518.7 m³
- Wysokość domu7.45 m
- Minimalne wymiary działki24.3 x 13.6m
- GarażJednostanowiskowy
- Rodzaj dachuDwuspadowy
- Kąt nach. dachu40°
Instalacja grzewcza
- Instalacja grzewczainstalacja solarna, instalacja wentylacji mechanicznej
Zawartość projektu
Każdy egzemplarz dokumentacji składa się z z 6 egzemplarzy.Architekt wykonujący przystosowanie projektu gotowego tworzy projekt budowlany składający się z dwóch części - projektu architektoniczno-budowlanego (3 egzemplarze) oraz projektu technicznego (3 egzemplarze).
Projekt gotowy zawiera:
-projekt architektoniczny - zawierający opis oraz rysunki techniczne,
-projekt konstrukcyjny - składający się z opisu, obliczeń statycznych, rysunków oraz zestawień stali konstrukcyjnej i elementów więźby
-projekt wewnętrznych instalacji sanitarnych i grzewczych obejmujący instalacje: c.o., wodną, kanalizacyjną i gazową - zawierający opis, rysunki techniczne i zestawienia materiałów
-projekt wewnętrznej instalacji elektrycznej i odgromowej - składający się z opisu oraz rysunków technicznych.
We wszystkich egzemplarzach znajdą Państwo dołączony komplet uprawnień oraz niezbędne zaświadczenia projektantów o wpisach do izb zawodowych.
Zgoda na zmiany w pełnym zakresie dołączana jest automatycznie do projektu gotowego. Projektant dokonujący adaptacji projektu może wprowadzić następujące zmiany:
- wynikające z dostosowania budynku do warunków lokalnych
- zmiana technologii w zakresie użytych materiałów
- zmiana ilości, wielkości i usytuowania otworów okiennych i drzwiowych
- zmiana funkcji niektórych pomieszczeń
- zmiana wysokości pomieszczeń
- przesunięcie lub likwidacja niektórych ścian działowych
- zmiana obrysu zewnętrznego budynku
- adaptacja poddasza na cele mieszkalne
- zmiana wysokości ścian kolankowych
- zmiana geometrii połaci dachowych: kąta nachylenia, ilości i układu połaci dachowych (np. zmiana z wielospadowego, na dwuspadowy lub odwrotnie)
- zmiana lukarn na okna połaciowe (lub odwrotnie)
- zmiany szerokości biegów schodowych, liczby stopni i wymiarów schodów
- instalacji wewnętrznych
- zmiana ilości, wielkości i usytuowania trzonów kominowych
- zmiana wielkości i kształtu tarasów zewnętrznych
- wprowadzenie częściowego (całkowitego) podpiwniczenia budynku lub rezygnacja z podpiwniczenia
- dobudowanie garażu (wiaty garażowej) lub rezygnacja z garażu
- wykonanie lustrzanego odbicia
- likwidacja lub dodanie balkonu
- zmiana formy wejścia do budynku
- dobudowa do istniejącego budynku lub zestawienie w zabudowie bliźniaczej
- zmiana sposobu użytkowania budynku
- zmiany w układzie konstrukcji budynku na podstawie opracowania przez uprawnionego inżyniera budownictwa lądowego
Zmiany powyższe powinny być zaznaczone kolorem czerwonym w projekcie gotowym i podpisane przez osobę uprawnioną. W uzasadnionych przypadkach należy wykonać rysunki zamienne. Za zakres i poprawność przystosowania projektu gotowego (w tym wprowadzonych zmian) oraz za jego zgodność z obowiązującymi normami i przepisami budowlanymi w dniu składania projektu do zatwierdzenia, odpowiedzialność ponosi projektant przystosowujący projekt gotowy. Obowiązki z tytułu sprawowania nadzoru autorskiego przyjmuje na siebie projektant przystosowujący projekt gotowy.
Dodatki
Bezpłatne dodatki
GratisZestaw umów
GratisZmiany w projekcie
GratisTablica budowy
GratisDziennik budowy












