- Typ projektuWolnostojący
- StylNowoczesny
- Powierzchnia użytkowa92.57 m²
- Kondygnacjez poddaszem
- GarażJednostanowiskowy
- DachDwuspadowy
- Kąt nach. dachu40°
- Odbicie lustrzaneTak
- Czas realizacjimax. czas realizacji 10 dni Zobacz więcej >
Opis
Zgodność z WT 2021 i Eurokodami
Ze względu na dostosowywanie projektu do standardu WT 2021, czas realizacji może się różnić od standardowego.
Skontaktuj się z nami aby poznać szczegóły dotyczące wybranego projektu.
Opis projektu
Dom w Migdałowej 7 to projekt domu jednorodzinnego o powierzchni użytkowej 92,57 m². Dom z poddaszem użytkowym i dachem dwuspadowym posiada garaż w bryle głównej budynku. Migdałowa 7 doskonale nadaje się do realizacji na wąskich działkach, o minimalnej szerokości 13,5 m. Układ funkcjonalny składa się z 4 pokoi, kuchni, 2 łazienek, garderoby oraz kotłowni. Na parterze znajduje się nasłoneczniona część dzienna z salonem o powierzchni 25 m² oraz otwartą kuchnią. Poddasze to przytulna część nocna. Znajdziemy tu 3 wygodne sypialnie z dostępem do francuskich balkonów oraz główną łazienkę. Sypialnia typu master bedroom wychodzi na przestronny taras. Projekt opracowany zgodnie z normami technicznymi WT 2021. Został zaprojektowany z myślą o warunkach, jakie powinny w przyszłości spełniać projekty domów zeroemisyjnych.Konstrukcja
Ściany zewnętrzne: pustak 25 cm, styropian 20 cm.Ściany nośne: pustak 25 cm.
Strop: monolityczny żelbetowy.
Dach: kąt nachylenia 40°, pokrycie - dachówka ceramiczna lub betonowa.
Rzuty
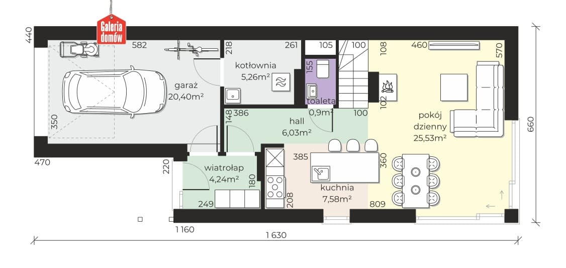
Parter
- 1 - wiatrołap4.24 m²
- 2 - hall6.03 m²
- 3 - garaż20.4 m²
- 4 - kotłownia5.26 m²
- 5 - toaleta0.9 m²
- 6 - pokój dzienny25.53 m²
- 7 - kuchnia7.58 m²
Poddasze
- 1 - hall + schody8.79 m²
- 2 - pokój9.49 m²
- 3 - pokój9.29 m²
- 4 - łazienka5.55 m²
- 5 - garderoba3.56 m²
- 6 - pokój11.61 m²
- 7 - taras20.68 m²
Przekrój
Sytuacja
Dane techniczne
- Powierzchnia użytkowa92.57 m²
- Powierzchnia zabudowy97.93 m²
- KominekTak
- Liczba łazienek2
- Liczba pokoi4
- Kubatura565 m³
- Wysokość domu7.82 m
- Minimalne wymiary działki24.3 x 13.6m
- GarażJednostanowiskowy
- Rodzaj dachuDwuspadowy
- Kąt nach. dachu40°
Instalacja grzewcza
- Instalacja grzewczainstalacja wentylacji mechanicznej
Zawartość projektu
Każdy egzemplarz dokumentacji składa się z z 6 egzemplarzy.Architekt wykonujący przystosowanie projektu gotowego tworzy projekt budowlany składający się z dwóch części - projektu architektoniczno-budowlanego (3 egzemplarze) oraz projektu technicznego (3 egzemplarze).
Projekt gotowy zawiera:
-projekt architektoniczny - zawierający opis oraz rysunki techniczne,
-projekt konstrukcyjny - składający się z opisu, obliczeń statycznych, rysunków oraz zestawień stali konstrukcyjnej i elementów więźby
-projekt wewnętrznych instalacji sanitarnych i grzewczych obejmujący instalacje: c.o., wodną, kanalizacyjną i gazową - zawierający opis, rysunki techniczne i zestawienia materiałów
-projekt wewnętrznej instalacji elektrycznej i odgromowej - składający się z opisu oraz rysunków technicznych.
We wszystkich egzemplarzach znajdą Państwo dołączony komplet uprawnień oraz niezbędne zaświadczenia projektantów o wpisach do izb zawodowych.
Zgoda na zmiany w pełnym zakresie dołączana jest automatycznie do projektu gotowego. Projektant dokonujący adaptacji projektu może wprowadzić następujące zmiany:
- wynikające z dostosowania budynku do warunków lokalnych
- zmiana technologii w zakresie użytych materiałów
- zmiana ilości, wielkości i usytuowania otworów okiennych i drzwiowych
- zmiana funkcji niektórych pomieszczeń
- zmiana wysokości pomieszczeń
- przesunięcie lub likwidacja niektórych ścian działowych
- zmiana obrysu zewnętrznego budynku
- adaptacja poddasza na cele mieszkalne
- zmiana wysokości ścian kolankowych
- zmiana geometrii połaci dachowych: kąta nachylenia, ilości i układu połaci dachowych (np. zmiana z wielospadowego, na dwuspadowy lub odwrotnie)
- zmiana lukarn na okna połaciowe (lub odwrotnie)
- zmiany szerokości biegów schodowych, liczby stopni i wymiarów schodów
- instalacji wewnętrznych
- zmiana ilości, wielkości i usytuowania trzonów kominowych
- zmiana wielkości i kształtu tarasów zewnętrznych
- wprowadzenie częściowego (całkowitego) podpiwniczenia budynku lub rezygnacja z podpiwniczenia
- dobudowanie garażu (wiaty garażowej) lub rezygnacja z garażu
- wykonanie lustrzanego odbicia
- likwidacja lub dodanie balkonu
- zmiana formy wejścia do budynku
- dobudowa do istniejącego budynku lub zestawienie w zabudowie bliźniaczej
- zmiana sposobu użytkowania budynku
- zmiany w układzie konstrukcji budynku na podstawie opracowania przez uprawnionego inżyniera budownictwa lądowego
Zmiany powyższe powinny być zaznaczone kolorem czerwonym w projekcie gotowym i podpisane przez osobę uprawnioną. W uzasadnionych przypadkach należy wykonać rysunki zamienne. Za zakres i poprawność przystosowania projektu gotowego (w tym wprowadzonych zmian) oraz za jego zgodność z obowiązującymi normami i przepisami budowlanymi w dniu składania projektu do zatwierdzenia, odpowiedzialność ponosi projektant przystosowujący projekt gotowy. Obowiązki z tytułu sprawowania nadzoru autorskiego przyjmuje na siebie projektant przystosowujący projekt gotowy.
Dodatki
Bezpłatne dodatki
GratisZestaw umów
GratisZmiany w projekcie
GratisTablica budowy
GratisDziennik budowy













