- Typ projektuWolnostojący
- Powierzchnia użytkowa192.84 m²
- KondygnacjePiętrowy
- GarażDwustanowiskowy
- DachWielospadowy
- Kąt nach. dachu25°
- Odbicie lustrzaneNie
- Czas realizacjimax. czas realizacji 10 dni Zobacz więcej >
Opis
Zgodność z WT 2021 i Eurokodami
Ze względu na dostosowywanie projektu do standardu WT 2021, czas realizacji może się różnić od standardowego.
Skontaktuj się z nami aby poznać szczegóły dotyczące wybranego projektu.
Opis projektu
Wariant projektu z powiększonym garażem, zmienionym układem pomieszczeń, likwidacja otworu w stropie.
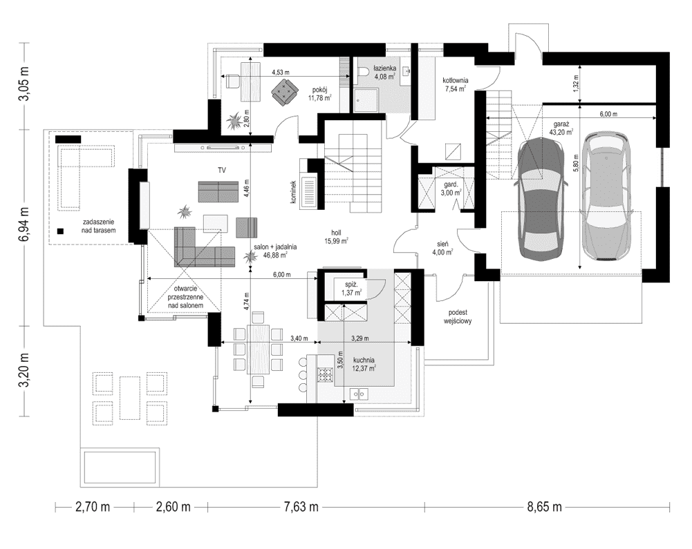
Projekt domu Dom z widokiem 3 jest wariantową wersją popularnego projektu Dom z widokiem. Dom z Widokiem 3 został dość znacznie zmniejszony, jego powierzchnia jest o 30 % mniejsza, podobnie jak koszty realizacji budynku. Jednocześnie dom nie stracił na reprezentacyjnym wyglądzie, ani na programie użytkowym i funkcjonalności wnętrz. Został po prostu "odchudzony" tam, gdzie można było sobie na to pozwolić. W rezultacie powstała elegancka niewielka miejska rezydencja - piętrowa, składająca się z zasadniczej dwukondygnacyjnej i kilku parterowych brył. Projekt domu Dom z widokiem 3 dedykowany jest w szczególności na trudniejsze działki, z niekorzystną orientacją wjazdu w stosunku do nasłonecznienia - z ogrodem z boku lub przodu domu. Architektura domostwa to spokojna nowoczesność, z dopasowanymi harmonijnie materiałami wykończeniowymi i detalami. Jedną z głównych atrakcji jest tutaj piękne okno narożne w salonie i pustka z przestrzennym otwarciem na antresolę na piętrze. To zasadniczy fragment kształtujący całość wnętrza domu. Uzupełnieniem są: przeszklony przestronny przedsionek, częściowo otwarta kuchnia oddzielona prostopadłościenną bryłą spiżarni i zabudowy kuchennej, reprezentacyjne schody połączone ze ścianą kominkową.Parter Domu z Widokiem to także jadalnia, dodatkowy pokój (gabinet, lub sypialnia gościnna), łazienka, kotłownia i garaż, z dodatkową przestrzenią magazynowo-gospodarczą i własnym strychem. Na piętrze przewidziano trzy sypialnie, w tym apartament rodziców z własną oddzielną łazienką i garderobą, ogólnodostępną łazienkę i antresolę - bibliotekę. We wnętrzu przewidziano wszystko, co może być potrzebne do komfortowego życia 4-5 domownikom. Dom z widokiem 3, tak jak pozostałe projekty domów z serwii, dzięki tarasom i podcieniowi, pięknie łączy się z otaczającym ogrodem. Duże przeszklenia dodatkowo otwierają budynek na otaczającą przyrodę. Dom został zaprojektowany jako energooszczędny (bardzo łatwo zaadaptować go do standardu NF40). Stosunek powierzchni do uzyskanego efektu jest w projekcie bardzo korzystny. Projekt domu Dom z widokiem 3 będzie niedrogi w eksploatacji, a sama budowa będzie zdecydowanie mniej kosztowna niż w przypadku pierwszego projektu. Pracownia oferuje też wersję domku w odbiciu lustrzanym, wariant projektu głębszy o 100+120 cm, ze zmienionym układem pomieszczeń na parterze i piętrze, pompą ciepła oraz dostosowaniem do NF40 (Dom z Widokiem 3 wariant B). Zapraszamy do zapoznania się z pełną ofertą pracowni MG Projekt tej serii: Dom z widokiem, Dom z widokiem 2, Dom z widokiem 2C, , Dom z widokiem 3F, Dom z widokiem 4, Dom z widokiem 5, Dom z widokiem 6, Dom z widokiem 6B, Dom z widokiem B, Dom z widokiem E
Konstrukcja
- Fundamentybetonowe ławy i ściany fundamentowe z bloczków betonowych
- Ściany zewnętrzneściany murowane - pustaki porotherm 25 + styropian + tynk cienkowarstwowy
- Stropmonolityczny żelbetowe nad parterem i piętrem
- Elewacjetynk cienkowarstwowy na styropianie
- Pokrycie dachudachówka ceramiczna
Rzuty
Dane techniczne
- Powierzchnia użytkowa192.84 m²
- Powierzchnia netto203.44 m²
- Powierzchnia zabudowy204.31 m²
- KominekTak
- Liczba łazienek3
- Liczba pokoi5
- Powierzchnia dachu309.4 m²
- Kubatura1053 m³
- Długość domu13.19 m
- Szerokość domu19.08 m
- Wysokość domu8.82 m
- Minimalne wymiary działki21.19 x 30.08m
- GarażDwustanowiskowy
- Rodzaj dachuWielospadowy
- Kąt nach. dachu25°
Koszty budowy
- Stan surowy318765 zł
- Stan surowy zamknięty401845 zł
- Koszt wykończenia344051 zł
- Koszt instalacji107221 zł
Zawartość projektu
W komplecie nowej wersji dokumentacji projektowej znajdują się 3 egzemplarze projektu architektoniczno-budowlanego oraz 3 egzemplarze projektu technicznego
Projekt architektoniczno-budowlany zawierający:
-opis architektoniczny z elementami konstrukcji,
-część rysunkowa: rzut parteru, poddasza/piętra, rzut dachu w skali 1:100, przekroje skala 1:50,
elewacje skala 1:100.
Projekt techniczny zawierający:
-opis techniczny i konstrukcyjny (obliczenia statyczne - w zależności od projektu włączone w projekt lub stanowiące odrębną teczkę).
Część rysunkowa architektura i konstrukcja:
-rzuty fundamentów, parteru, poddasza, stropu, więźby, dachu / w skali 1:50,
-przekroje przez budynek / budynek skali 1:50,
-elewacje budynku / w skali 1:50 (*niektóre projekty posiadają rysunki w skali 1:100 lub 1:75),
-zestawienie stolarki budowlanej okiennej i drzwiowej,
-szczegóły konstrukcji i ewentualne szczegóły budowlane,
Część instalacyjna:
-część opisowa do projektów instalacji elektrycznych, wodno-kanalizacyjnych, grzewczych, gazowych (jeśli występują).
Część rysunkowa do projektów instalacji:
-schematy instalacji elektrycznych, schemat rozdzielni, plan instalacji odgromowej,
-schematy instalacji wodno-kanalizacyjnej i ciepłej wody,
-schematy instalacji grzewczych,
-schemat instalacji gazowej (jeśli występują).
Do projektu dołączane jest zestawienie materiałowe, z wykazem elementów drewnianych oraz stali budowlanej.
Do projektu dołączone są kopie uprawnień wszystkich projektantów, oraz aktualne zaświadczenia o przynależności do izb zawodowych.
Projekt zawiera oświadczenie projektantów o poprawności projektu w świetle Prawa Budowlanego, a także zawiera informację dotyczącą bezpieczeństwa i ochrony zdrowia ( BIOZ).
Do projektu dołączona jest także zgoda na zmiany adaptacyjne. Zgoda dołączana jest do każdego projektu bezpłatnie. Na Państwa życzenie zakres zgody na zmiany możemy dowolnie rozszerzyć.
Pracownia zezwala na następujące zmiany i odstępstwa od projektu architektoniczno-budowlanego w trakcie jego przystosowywania do lokalizacji:
- Zmianę obrysu zewnętrznego ścian zewnętrznych.
- Zmianę obrysu wewnętrznego ścian zewnętrznych.
- Zmianę układu ścian wewnętrznych działowych.
- Zmianę funkcji, ilości i usytuowania poszczególnych pomieszczeń na dowolnej kondygnacji w projekcie.
- Zmianę ukształtowania, ilości i kąta nachylenia połaci dachowych.
- Zmianę ilości, umiejscowienia i wielkości otworów okiennych i drzwiowych.
- Zmianę rodzaju materiału i technologii wykonania ścian zewnętrznych oraz wewnętrznych oraz ścian fundamentowych.
- Zmianę rodzaju i technologii wykonania stropów nad dowolną kondygnacją.
- Zmianę umiejscowienia, kształtu i materiału wykonania schodów w budynku.
- Zmianę wielkości, kształtu i materiałów, bądź likwidacja: tarasów, podestów i balkonów.
- Likwidację lub dodanie dowolnej ilości:
- lukarn,
- wykuszy,
- podcieni,
- balkonów,
- loggii,
- kolumn,
- pilastrów,
- ganków,
- werand.
- Zmianę materiałów wykończeniowych, instalacyjnych, izolacyjnych.
- Zmianę rodzaju pokrycia dachowego.
- Doprojektowanie bądź likwidacja podpiwniczenia - częściowego lub całkowitego.
Dodatki
Bezpłatne dodatki
GratisZestaw umów
GratisZmiany w projekcie
PromocjaProjekt szamba szczelnego
GratisTablica budowy
GratisDziennik budowy
Płatne dodatki

Pakiet wentylacja mechaniczna i kominek DGP
550 zł

Kosztorys inwestorski
600 zł

Pakiet odkurzacz centralny
550 zł

Wersja elektroniczna projektu
600 zł

Pakiet instalacja solarna
550 zł

Pakiet ogrzewanie podłogowe
550 zł

Pakiet powietrzna pompa ciepła
550 zł

Pakiet płaszcz wodny
550 zł

Pakiet kotłownia na paliwo stałe
550 zł

Pakiet klimatyzacja w domu
550 zł

Projekt ogrodzenia
750 zł

Pakiet instalacja fotowoltaiczna
550 zł

Pakiet kominek z DGP
500 zł

Pakiet gruntowa pompa ciepła
550 zł

Projekt altan i grilów ogrodowych
850 zł

Dodatkowy egzemplarz do projektu
650 zł
























