- Typ projektuWolnostojący
- Powierzchnia użytkowa146.25 m²
- KondygnacjePiętrowy
- GarażJednostanowiskowy
- DachWielospadowy
- Kąty nach. dachu23.8°, 24.9°
- Odbicie lustrzaneNie
- Czas realizacjimax. czas realizacji 10 dni Zobacz więcej >
Opis
Zgodność z WT 2021 i Eurokodami
Ze względu na dostosowywanie projektu do standardu WT 2021, czas realizacji może się różnić od standardowego.
Skontaktuj się z nami aby poznać szczegóły dotyczące wybranego projektu.
Opis projektu
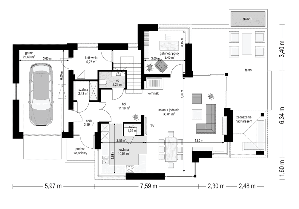
Projekt domu Dom z widokiem 5 to nowość z cieszącej się popularnością serii projektów „Dom z widokiem”, najmniejszy wariant tego projektu. Dom przy niewielkiej powierzchni i umiarkowanych kosztach budowy zawiera większość elementów i detali architektonicznych pierwotnego projektu, a jednocześnie ma wygodne i funkcjonalne wnętrze. Projekt domu Dom z widokiem 5 to budynek piętrowy, przykryty wielospadowym dachem. Jego główna bryła ma dach kopertowy. Do rdzenia domu dobudowano fragment piętrowy, oraz kilka parterowych części : nad garażem, kuchnią czy nad zadaszeniem tarasu. Całość sylwetki domu to jest atrakcyjna i nowoczesna, ozdobiona ciekawymi detalami, kamiennymi okładzinami ścian i dużymi przeszkleniami otwierającymi wnętrze na ogród. Wejście do domu zaakcentowano narożnym podcieniem i szerokimi drzwiami z naświetlami. Narożne okno kuchenne daje szeroki widok na podjazd i wejście na działkę. Elewacja ogrodowa to przede wszystkim piękne narożne okna salonu i sypialni rodziców powyżej, oraz praktyczne zadaszenie nad częścią tarasu. Wnętrze : na parter wchodzimy przez przestronny przedsionek z szatnią i przejściem do garażu, oraz kotłowni, wprost do holu otwierającego się na salon i reprezentacyjne schody. Kuchnia ze spiżarką znajduje się blisko wejścia. Salon z wydzielonym aneksem jadalnym otwiera dom na otaczający go taras. Na parterze znajduje się jeszcze dodatkowy pokój - np. gabinet. Na piętrze mamy trzy sypialnie i dwie łazienki oraz pralnię. Sypialnie dzieci mają wbudowane szafy. Sypialnia rodziców to osobny apartament z własną łazienką i garderobą, oraz pięknym widokiem na ogród. Projekt domu Dom z widokiem 5 jest zgrabny i praktyczny - jest spełnieniem marzeń o podmiejskiej wilii dla Inwestorów, którzy nie planują wydać na nią dużych pieniędzy, lub nie dysponują zbyt wielką działką. Dom jest energooszczędny, dość prosty i niedrogi w budowie. Bardzo łatwo można przystosować projekt do standardu NF40. Zapraszamy do zapoznania się z pełną ofertą pracowni MG Projekt tej serii: Dom z widokiem, Dom z widokiem 2, Dom z widokiem 2C, Dom z widokiem 3, Dom z widokiem 3F, Dom z widokiem 4, Dom z widokiem 6, Dom z widokiem 6B, Dom z widokiem B, Dom z widokiem E.
Konstrukcja
- Fundamentybetonowe ławy i ściany fundamentowe z bloczków betonowych
- Ściany zewnętrzneściany murowane - pustaki porotherm 25 + styropian + tynk cienkowarstwowy
- Stropmonolityczny żelbetowy
- Elewacjetynk cienkowarstwowy na styropianie
- Pokrycie dachudachówka ceramiczna
Rzuty
Dane techniczne
- Powierzchnia użytkowa146.25 m²
- Powierzchnia netto151.52 m²
- Powierzchnia zabudowy136.18 m²
- KominekTak
- Liczba łazienek3
- Liczba pokoi5
- Powierzchnia dachu254.23 m²
- Kubatura802 m³
- Długość domu11.34 m
- Szerokość domu16.04 m
- Wysokość domu8.46 m
- Minimalne wymiary działki19.34 x 24.34m
- GarażJednostanowiskowy
- Rodzaj dachuWielospadowy
- Kąty nach. dachu23.8°, 24.9°
Koszty budowy
- Stan surowy245742 zł
- Stan surowy zamknięty336890 zł
- Koszt wykończenia287796 zł
- Koszt instalacji107043 zł
Zawartość projektu
W komplecie nowej wersji dokumentacji projektowej znajdują się 3 egzemplarze projektu architektoniczno-budowlanego oraz 3 egzemplarze projektu technicznego
Projekt architektoniczno-budowlany zawierający:
-opis architektoniczny z elementami konstrukcji,
-część rysunkowa: rzut parteru, poddasza/piętra, rzut dachu w skali 1:100, przekroje skala 1:50,
elewacje skala 1:100.
Projekt techniczny zawierający:
-opis techniczny i konstrukcyjny (obliczenia statyczne - w zależności od projektu włączone w projekt lub stanowiące odrębną teczkę).
Część rysunkowa architektura i konstrukcja:
-rzuty fundamentów, parteru, poddasza, stropu, więźby, dachu / w skali 1:50,
-przekroje przez budynek / budynek skali 1:50,
-elewacje budynku / w skali 1:50 (*niektóre projekty posiadają rysunki w skali 1:100 lub 1:75),
-zestawienie stolarki budowlanej okiennej i drzwiowej,
-szczegóły konstrukcji i ewentualne szczegóły budowlane,
Część instalacyjna:
-część opisowa do projektów instalacji elektrycznych, wodno-kanalizacyjnych, grzewczych, gazowych (jeśli występują).
Część rysunkowa do projektów instalacji:
-schematy instalacji elektrycznych, schemat rozdzielni, plan instalacji odgromowej,
-schematy instalacji wodno-kanalizacyjnej i ciepłej wody,
-schematy instalacji grzewczych,
-schemat instalacji gazowej (jeśli występują).
Do projektu dołączane jest zestawienie materiałowe, z wykazem elementów drewnianych oraz stali budowlanej.
Do projektu dołączone są kopie uprawnień wszystkich projektantów, oraz aktualne zaświadczenia o przynależności do izb zawodowych.
Projekt zawiera oświadczenie projektantów o poprawności projektu w świetle Prawa Budowlanego, a także zawiera informację dotyczącą bezpieczeństwa i ochrony zdrowia ( BIOZ).
Do projektu dołączona jest także zgoda na zmiany adaptacyjne. Zgoda dołączana jest do każdego projektu bezpłatnie. Na Państwa życzenie zakres zgody na zmiany możemy dowolnie rozszerzyć.
Pracownia zezwala na następujące zmiany i odstępstwa od projektu architektoniczno-budowlanego w trakcie jego przystosowywania do lokalizacji:
- Zmianę obrysu zewnętrznego ścian zewnętrznych.
- Zmianę obrysu wewnętrznego ścian zewnętrznych.
- Zmianę układu ścian wewnętrznych działowych.
- Zmianę funkcji, ilości i usytuowania poszczególnych pomieszczeń na dowolnej kondygnacji w projekcie.
- Zmianę ukształtowania, ilości i kąta nachylenia połaci dachowych.
- Zmianę ilości, umiejscowienia i wielkości otworów okiennych i drzwiowych.
- Zmianę rodzaju materiału i technologii wykonania ścian zewnętrznych oraz wewnętrznych oraz ścian fundamentowych.
- Zmianę rodzaju i technologii wykonania stropów nad dowolną kondygnacją.
- Zmianę umiejscowienia, kształtu i materiału wykonania schodów w budynku.
- Zmianę wielkości, kształtu i materiałów, bądź likwidacja: tarasów, podestów i balkonów.
- Likwidację lub dodanie dowolnej ilości:
- lukarn,
- wykuszy,
- podcieni,
- balkonów,
- loggii,
- kolumn,
- pilastrów,
- ganków,
- werand.
- Zmianę materiałów wykończeniowych, instalacyjnych, izolacyjnych.
- Zmianę rodzaju pokrycia dachowego.
- Doprojektowanie bądź likwidacja podpiwniczenia - częściowego lub całkowitego.
Dodatki
Bezpłatne dodatki
GratisZestaw umów
GratisZmiany w projekcie
PromocjaProjekt szamba szczelnego
GratisTablica budowy
GratisDziennik budowy
Płatne dodatki

Pakiet wentylacja mechaniczna i kominek DGP
550 zł

Kosztorys inwestorski
600 zł

Pakiet odkurzacz centralny
550 zł

Wersja elektroniczna projektu
600 zł

Pakiet instalacja solarna
550 zł

Pakiet ogrzewanie podłogowe
550 zł

Pakiet powietrzna pompa ciepła
550 zł

Pakiet płaszcz wodny
550 zł

Pakiet kotłownia na paliwo stałe
550 zł

Pakiet klimatyzacja w domu
550 zł

Projekt ogrodzenia
750 zł

Pakiet instalacja fotowoltaiczna
550 zł

Pakiet kominek z DGP
500 zł

Pakiet gruntowa pompa ciepła
550 zł

Projekt altan i grilów ogrodowych
850 zł

Dodatkowy egzemplarz do projektu
650 zł















