- Typ projektuWolnostojący
- Powierzchnia użytkowa346.61 m²
- KondygnacjePiętrowy
- GarażDwustanowiskowy
- DachWielospadowy
- Kąt nach. dachu20°
- Odbicie lustrzaneNie
- Czas realizacjimax. czas realizacji 10 dni Zobacz więcej >
Opis
Zgodność z WT 2021 i Eurokodami
Ze względu na dostosowywanie projektu do standardu WT 2021, czas realizacji może się różnić od standardowego.
Skontaktuj się z nami aby poznać szczegóły dotyczące wybranego projektu.
Opis projektu
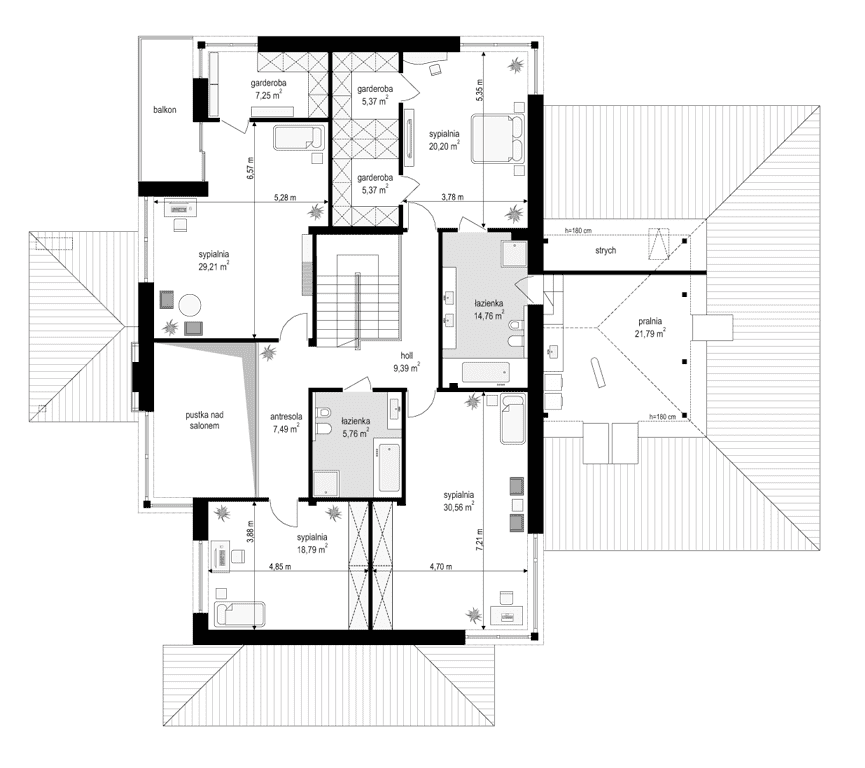
Projekt domu Dom z widokiem E to wersja wariantowa popularnego projektu Dom z widokiem. Projekt różni się od podstawowego wariantu zwiększoną bryłą i powierzchnią zabudowy (główna bryła budynku przedłużona jest o niemal 2 metry), oraz zmienionym – zmniejszonym nachyleniem połaci dachowych, przez co budynek jest trochę niższy. Dom jest też nieco węższy – ma węższy salon, przez co zmieści się na węższej działce i ma węższą elewację frontową niż w podstawowym projekcie. Projekt domu Dom z widokiem E został zaprojektowany jako dwukondygnacyjna nowoczesna miejska willa, składająca się z głównej piętrowej bryły przykrytej czterospadowym dachem, oraz dobudowanej części garażowej -parterowej, przykrytej trzyspadowym niższym dachem. Wygląd domu podkreślają charakterystyczne narożne duże przeszklenia , oraz ściany podzielone poziomymi pasami o zróżnicowanym wykończeniu - z kamienia, drewna lub tynku. Elewacja ogrodowa (boczna) przez cofnięcie salonu jest niemal jedną długą ścianą otwierającą dom na otaczający ogród. Wejście domu podkreślone jest wciętym podcieniem z podestem i szerokimi drzwiami wejściowymi z naświetlami. Od strony ogrodu z kolei elewację ozdabia częściowe zadaszenie tarasu i szerokie okna balkonowe. Wnętrze domu podzielono na część dzienną i gospodarczą na parterze, oraz sypialnie na piętrze. Do domu wchodzimy obszernym przedsionkiem z szatnią wprost do reprezentacyjnego holu i dalej do salonu, jadalni i kuchni. Nad salonem nie przewidziano pustki - jedynym połączeniem przestrzeni parteru z piętrem jest szeroki otwór schodów dwubiegowych. Na parterze przewidziano też dodatkowy pokój - gabinet lub sypialnię gościnną, łazienkę, kotłownię, oraz ładny garaż z zapleczem gospodarczym. Na piętrze mamy trzy bazowe sypialnie z dwiema łazienkami (w tym apartament rodziców z łazienką i garderobą), oraz miejsce na dodatkowe dwa pokoje – przestrzeń do dowolnego wykorzystania i aranżacji. Projekt domu Dom z widokiem E jest luksusową willą o dużej przestrzeni, do wygodnego komfortowego mieszkania. Dla dowolnie dużej rodziny. Budynek dzięki zastosowaniu energooszczędnych rozwiązań instalacyjnych i nowoczesnych ciepłych materiałów, będzie niedrogi w późniejszej eksploatacji. Zapraszamy do zapoznania się z pełną ofertą pracowni MG Projekt tej serii: Dom z widokiem, Dom z widokiem 2, Dom z widokiem 2C, Dom z widokiem 3, Dom z widokiem 3F, Dom z widokiem 4, Dom z widokiem 5, Dom z widokiem 6, Dom z widokiem 6B, Dom z widokiem B.
Konstrukcja
- Fundamentybetonowe ławy i ściany fundamentowe z bloczków betonowych
- Ściany zewnętrzneściany murowane - pustaki porotherm 25 + styropian
- Stropżelbetowy monolityczny nad parterem i piętrem
- Elewacjetynk cienkowarstwowy na styropianie
- Pokrycie dachudachówka ceramiczna
Rzuty
Dane techniczne
- Powierzchnia użytkowa346.61 m²
- Powierzchnia netto377.89 m²
- Powierzchnia zabudowy301.58 m²
- KominekTak
- Liczba łazienek4
- Liczba pokoi5
- Powierzchnia dachu454 m²
- Kubatura1823 m³
- Długość domu20 m
- Szerokość domu22.83 m
- Wysokość domu9 m
- Minimalne wymiary działki28 x 29.83m
- GarażDwustanowiskowy
- Rodzaj dachuWielospadowy
- Kąt nach. dachu20°
Koszty budowy
- Stan surowy500166 zł
- Stan surowy zamknięty663980 zł
- Koszt wykończenia485038 zł
- Koszt instalacji103280 zł
Zawartość projektu
W komplecie nowej wersji dokumentacji projektowej znajdują się 3 egzemplarze projektu architektoniczno-budowlanego oraz 3 egzemplarze projektu technicznego
Projekt architektoniczno-budowlany zawierający:
-opis architektoniczny z elementami konstrukcji,
-część rysunkowa: rzut parteru, poddasza/piętra, rzut dachu w skali 1:100, przekroje skala 1:50,
elewacje skala 1:100.
Projekt techniczny zawierający:
-opis techniczny i konstrukcyjny (obliczenia statyczne - w zależności od projektu włączone w projekt lub stanowiące odrębną teczkę).
Część rysunkowa architektura i konstrukcja:
-rzuty fundamentów, parteru, poddasza, stropu, więźby, dachu / w skali 1:50,
-przekroje przez budynek / budynek skali 1:50,
-elewacje budynku / w skali 1:50 (*niektóre projekty posiadają rysunki w skali 1:100 lub 1:75),
-zestawienie stolarki budowlanej okiennej i drzwiowej,
-szczegóły konstrukcji i ewentualne szczegóły budowlane,
Część instalacyjna:
-część opisowa do projektów instalacji elektrycznych, wodno-kanalizacyjnych, grzewczych, gazowych (jeśli występują).
Część rysunkowa do projektów instalacji:
-schematy instalacji elektrycznych, schemat rozdzielni, plan instalacji odgromowej,
-schematy instalacji wodno-kanalizacyjnej i ciepłej wody,
-schematy instalacji grzewczych,
-schemat instalacji gazowej (jeśli występują).
Do projektu dołączane jest zestawienie materiałowe, z wykazem elementów drewnianych oraz stali budowlanej.
Do projektu dołączone są kopie uprawnień wszystkich projektantów, oraz aktualne zaświadczenia o przynależności do izb zawodowych.
Projekt zawiera oświadczenie projektantów o poprawności projektu w świetle Prawa Budowlanego, a także zawiera informację dotyczącą bezpieczeństwa i ochrony zdrowia ( BIOZ).
Do projektu dołączona jest także zgoda na zmiany adaptacyjne. Zgoda dołączana jest do każdego projektu bezpłatnie. Na Państwa życzenie zakres zgody na zmiany możemy dowolnie rozszerzyć.
Pracownia zezwala na następujące zmiany i odstępstwa od projektu architektoniczno-budowlanego w trakcie jego przystosowywania do lokalizacji:
- Zmianę obrysu zewnętrznego ścian zewnętrznych.
- Zmianę obrysu wewnętrznego ścian zewnętrznych.
- Zmianę układu ścian wewnętrznych działowych.
- Zmianę funkcji, ilości i usytuowania poszczególnych pomieszczeń na dowolnej kondygnacji w projekcie.
- Zmianę ukształtowania, ilości i kąta nachylenia połaci dachowych.
- Zmianę ilości, umiejscowienia i wielkości otworów okiennych i drzwiowych.
- Zmianę rodzaju materiału i technologii wykonania ścian zewnętrznych oraz wewnętrznych oraz ścian fundamentowych.
- Zmianę rodzaju i technologii wykonania stropów nad dowolną kondygnacją.
- Zmianę umiejscowienia, kształtu i materiału wykonania schodów w budynku.
- Zmianę wielkości, kształtu i materiałów, bądź likwidacja: tarasów, podestów i balkonów.
- Likwidację lub dodanie dowolnej ilości:
- lukarn,
- wykuszy,
- podcieni,
- balkonów,
- loggii,
- kolumn,
- pilastrów,
- ganków,
- werand.
- Zmianę materiałów wykończeniowych, instalacyjnych, izolacyjnych.
- Zmianę rodzaju pokrycia dachowego.
- Doprojektowanie bądź likwidacja podpiwniczenia - częściowego lub całkowitego.
Dodatki
Bezpłatne dodatki
GratisZestaw umów
GratisZmiany w projekcie
PromocjaProjekt szamba szczelnego
GratisTablica budowy
GratisDziennik budowy
Płatne dodatki

Pakiet wentylacja mechaniczna i kominek DGP
550 zł

Kosztorys inwestorski
600 zł

Pakiet odkurzacz centralny
550 zł

Wersja elektroniczna projektu
600 zł

Pakiet instalacja solarna
550 zł

Pakiet ogrzewanie podłogowe
550 zł

Pakiet powietrzna pompa ciepła
550 zł

Pakiet płaszcz wodny
550 zł

Pakiet kotłownia na paliwo stałe
550 zł

Pakiet klimatyzacja w domu
550 zł

Projekt ogrodzenia
750 zł

Pakiet instalacja fotowoltaiczna
550 zł

Pakiet kominek z DGP
500 zł

Pakiet gruntowa pompa ciepła
550 zł

Projekt altan i grilów ogrodowych
850 zł

Dodatkowy egzemplarz do projektu
650 zł











