- Typ projektuWolnostojący
- Powierzchnia użytkowa260.93 m²
- KondygnacjePiętrowy
- GarażDwustanowiskowy
- DachWielospadowy
- Kąt nach. dachu25°
- Odbicie lustrzaneNie
- Czas realizacjimax. czas realizacji 10 dni Zobacz więcej >
Opis
Zgodność z WT 2021 i Eurokodami
Ze względu na dostosowywanie projektu do standardu WT 2021, czas realizacji może się różnić od standardowego.
Skontaktuj się z nami aby poznać szczegóły dotyczące wybranego projektu.
Opis projektu
Obniżony wariant projektu do 9m ze zmniejszonym cokołem i wysokością piętra do 2.5 m.
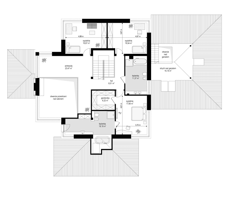
Projekt domu Dom z widokiem jest luksusową, nowoczesną willą jednorodzinną, przeznaczoną dla 4-6 domowników. Projekt domu Dom z Widokiem nadaje się do budowy nawet na działce z niekorzystnym usytuowaniem w stosunku do stron świata. Dom z Widokiem zaprojektowany został jako rozłożysta piętrowa rezydencja, połączona z otaczającym ogrodem licznymi przeszkleniami, oraz otwartymi i zadaszonymi tarasami.Bryła Domu z WidokiemBryła Domu z Widokiem składa się z zasadniczej części piętrowej i trzech parterowych skrzydeł, tworzących w całości układ litery "T". Projekt Dom z Widokiem jest na tyle uniwersalny, że może być postawiony na każdej działce. Część wejściowo-wjazdowa i część tarasowa od strony salonu tworzą dwa osobne półotwarte dziedzińce: frontowy i ogrodowy. Duże narożne okna z rzadkimi podziałami stanowią wizytówkę Domu z Widokiem. Elewację urozmaicają liczne detale, okładziny z piaskowca, boniowania tynku i drewniane wykończenia. Całość przykryta jest łagodnym dachem z szerokimi okapami. Projekt Dom z Widokiem ma nowoczesną, ale stonowaną architekturę. Emanuje z niej spokój i elegancja. Dzięki połączeniu dobrych sprawdzonych detali architektura domu z widokiem nigdy się nie zestarzeje i nie wyjdzie z mody. Jednymi z głównych atrakcji Domu z Widokiem są jego duże przeszklenia, a największą atrakcją jest dwukondygnacyjny szklany narożnik salonu, łączący pokój dzienny z pustką z tarasem i ogrodem. Pozostałe przeszklenia: w jadalni, w kuchni, sypialniach, czy przy wejściu do domku, dodatkowo potęgują efekt otwartości wnętrza.Dom z Widokiem wnętrzePrzestrzeń jest luksusem i wnętrze Domu z Widokiem zaprojektowano kierując się tą właśnie myślą. Parter budynku mieszkalnego to w dużej mierze otwarta duża część dzienna - salon, jadalnia, hol, kuchnia. Na parterze zmieściliśmy dodatkowy pokój - gabinet lub sypialnię gościnną. Piętro to sypialnie rodziców i dzieci z łazienkami i garderobami. Na piętrze mieści się duża antresola nad salonem, którą można wykorzystać jako dodatkowy pokój. Funkcjonalnie zaprojektowane wnętrze Domu z Widokeim zapewnia wygodne mieszkanie wszystkim domownikom. Projekt domu Dom z widokiem to dom dla osób wyjątkowych, z wizją, z pragnieniem życia w nietuzinkowym otoczeniu, wśród pięknych wnętrz.Dom z Widokiem jest energooszczędny, więc będzie tani w użytkowaniu. Kosztorysanci MG Projekt oszacowali koszty budowy domu Dom z Widokiem do stanu surowego zamkniętego na 381743 zł. Projekt domu Dom z Widokiem dostępny jest w odbiciu lustrzanym, kilku wariantach oraz w innych wersjach domu z widokiem: Dom z widokiem 2, Dom z widokiem 2C, Dom z widokiem 3, Dom z widokiem 3F, Dom z widokiem 4, Dom z widokiem 5, Dom z widokiem 6, Dom z widokiem 6B, Dom z widokiem B, Dom z widokiem E.
Konstrukcja
- Fundamentybetonowe ławy i ściany fundamentowe z bloczków betonowych
- Ściany zewnętrzneściany murowane - pustaki porotherm 25 + styropian + tynk cienkowarstwowy
- Stropmonolityczne żelbetowe (parter i piętro)
- Elewacjetynk cienkowarstwowy na styropianie
- Pokrycie dachudachówka ceramiczna
Rzuty
Dane techniczne
- Powierzchnia użytkowa260.93 m²
- Powierzchnia netto285.93 m²
- Powierzchnia zabudowy265.86 m²
- KominekTak
- Liczba łazienek3
- Liczba pokoi5
- Powierzchnia dachu426.2 m²
- Kubatura1620 m³
- Długość domu17.71 m
- Szerokość domu21.2 m
- Wysokość domu9 m
- Minimalne wymiary działki25.71 x 29.75m
- GarażDwustanowiskowy
- Rodzaj dachuWielospadowy
- Kąt nach. dachu25°
Koszty budowy
- Stan surowy349478 zł
- Stan surowy zamknięty520042 zł
- Koszt wykończenia404200 zł
- Koszt instalacji86265 zł
Zawartość projektu
W komplecie nowej wersji dokumentacji projektowej znajdują się 3 egzemplarze projektu architektoniczno-budowlanego oraz 3 egzemplarze projektu technicznego
Projekt architektoniczno-budowlany zawierający:
-opis architektoniczny z elementami konstrukcji,
-część rysunkowa: rzut parteru, poddasza/piętra, rzut dachu w skali 1:100, przekroje skala 1:50,
elewacje skala 1:100.
Projekt techniczny zawierający:
-opis techniczny i konstrukcyjny (obliczenia statyczne - w zależności od projektu włączone w projekt lub stanowiące odrębną teczkę).
Część rysunkowa architektura i konstrukcja:
-rzuty fundamentów, parteru, poddasza, stropu, więźby, dachu / w skali 1:50,
-przekroje przez budynek / budynek skali 1:50,
-elewacje budynku / w skali 1:50 (*niektóre projekty posiadają rysunki w skali 1:100 lub 1:75),
-zestawienie stolarki budowlanej okiennej i drzwiowej,
-szczegóły konstrukcji i ewentualne szczegóły budowlane,
Część instalacyjna:
-część opisowa do projektów instalacji elektrycznych, wodno-kanalizacyjnych, grzewczych, gazowych (jeśli występują).
Część rysunkowa do projektów instalacji:
-schematy instalacji elektrycznych, schemat rozdzielni, plan instalacji odgromowej,
-schematy instalacji wodno-kanalizacyjnej i ciepłej wody,
-schematy instalacji grzewczych,
-schemat instalacji gazowej (jeśli występują).
Do projektu dołączane jest zestawienie materiałowe, z wykazem elementów drewnianych oraz stali budowlanej.
Do projektu dołączone są kopie uprawnień wszystkich projektantów, oraz aktualne zaświadczenia o przynależności do izb zawodowych.
Projekt zawiera oświadczenie projektantów o poprawności projektu w świetle Prawa Budowlanego, a także zawiera informację dotyczącą bezpieczeństwa i ochrony zdrowia ( BIOZ).
Do projektu dołączona jest także zgoda na zmiany adaptacyjne. Zgoda dołączana jest do każdego projektu bezpłatnie. Na Państwa życzenie zakres zgody na zmiany możemy dowolnie rozszerzyć.
Pracownia zezwala na następujące zmiany i odstępstwa od projektu architektoniczno-budowlanego w trakcie jego przystosowywania do lokalizacji:
- Zmianę obrysu zewnętrznego ścian zewnętrznych.
- Zmianę obrysu wewnętrznego ścian zewnętrznych.
- Zmianę układu ścian wewnętrznych działowych.
- Zmianę funkcji, ilości i usytuowania poszczególnych pomieszczeń na dowolnej kondygnacji w projekcie.
- Zmianę ukształtowania, ilości i kąta nachylenia połaci dachowych.
- Zmianę ilości, umiejscowienia i wielkości otworów okiennych i drzwiowych.
- Zmianę rodzaju materiału i technologii wykonania ścian zewnętrznych oraz wewnętrznych oraz ścian fundamentowych.
- Zmianę rodzaju i technologii wykonania stropów nad dowolną kondygnacją.
- Zmianę umiejscowienia, kształtu i materiału wykonania schodów w budynku.
- Zmianę wielkości, kształtu i materiałów, bądź likwidacja: tarasów, podestów i balkonów.
- Likwidację lub dodanie dowolnej ilości:
- lukarn,
- wykuszy,
- podcieni,
- balkonów,
- loggii,
- kolumn,
- pilastrów,
- ganków,
- werand.
- Zmianę materiałów wykończeniowych, instalacyjnych, izolacyjnych.
- Zmianę rodzaju pokrycia dachowego.
- Doprojektowanie bądź likwidacja podpiwniczenia - częściowego lub całkowitego.
Dodatki
Bezpłatne dodatki
GratisZestaw umów
GratisZmiany w projekcie
PromocjaProjekt szamba szczelnego
GratisTablica budowy
GratisDziennik budowy
Płatne dodatki

Pakiet wentylacja mechaniczna i kominek DGP
550 zł

Kosztorys inwestorski
600 zł

Pakiet odkurzacz centralny
550 zł

Wersja elektroniczna projektu
600 zł

Pakiet instalacja solarna
550 zł

Pakiet ogrzewanie podłogowe
550 zł

Pakiet powietrzna pompa ciepła
550 zł

Pakiet płaszcz wodny
550 zł

Pakiet kotłownia na paliwo stałe
550 zł

Pakiet klimatyzacja w domu
550 zł

Projekt ogrodzenia
750 zł

Pakiet instalacja fotowoltaiczna
550 zł

Pakiet kominek z DGP
500 zł

Pakiet gruntowa pompa ciepła
550 zł

Projekt altan i grilów ogrodowych
850 zł

Dodatkowy egzemplarz do projektu
650 zł




































