Projekt domu domek Lipowy 020 ES JKv3
Promocja ważna do
17-03-2026
- Typ projektuWolnostojący
- StylTradycyjny
- Powierzchnia użytkowa97.01 m²
- KondygnacjeParterowy, z poddaszem
- GarażBez garażu
- DachDwuspadowy
- Odbicie lustrzaneTak
- Czas realizacji5 dni roboczych Zobacz więcej >
Opis
Zgodność z WT 2021 i Eurokodami
Ze względu na dostosowywanie projektu do standardu WT 2021, czas realizacji może się różnić od standardowego.
Skontaktuj się z nami aby poznać szczegóły dotyczące wybranego projektu.
Rzuty
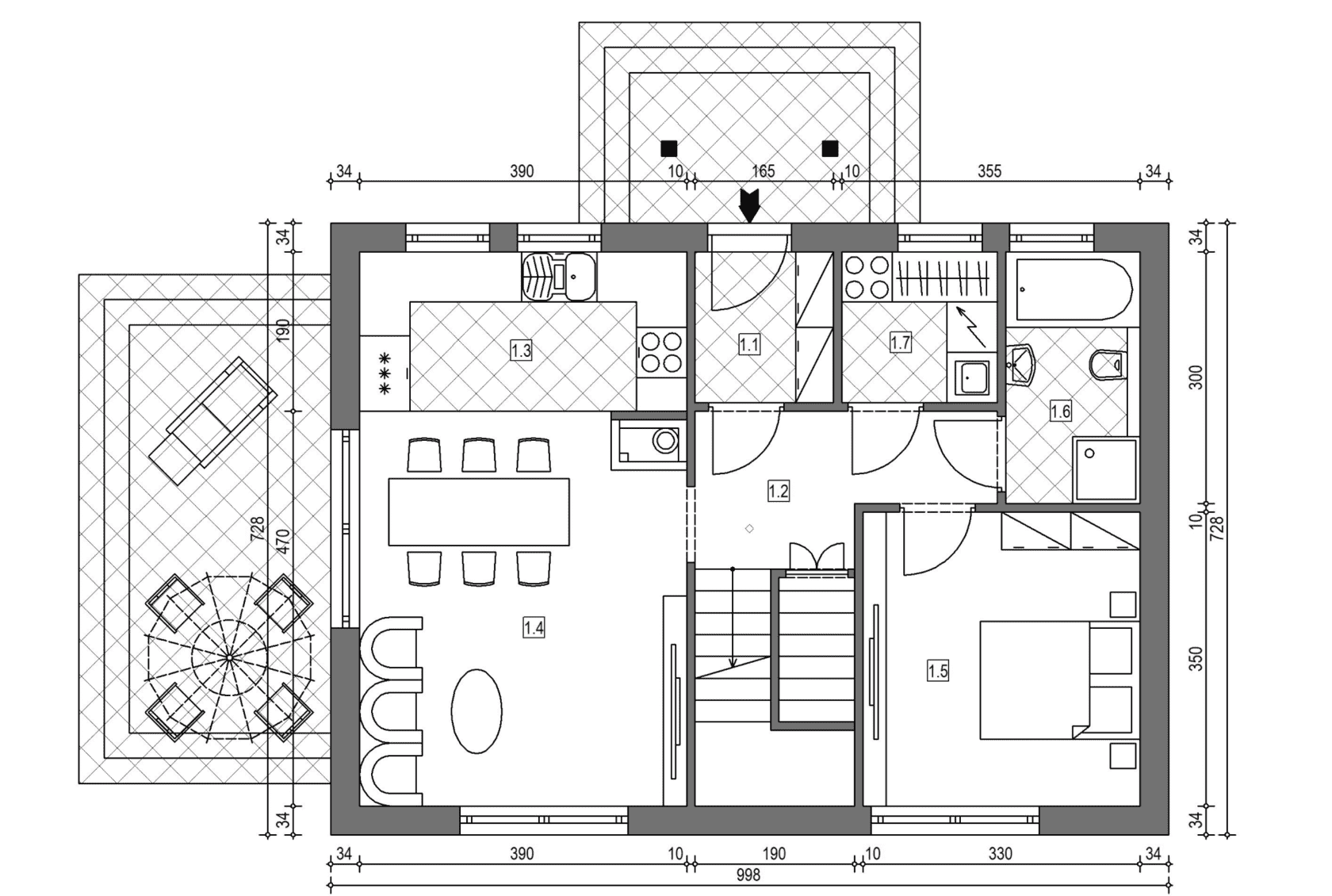
Rzut parteru
- 1.1 Przedsionek2.87
- 1.2 Hall i korytarz10.55
- 1.3 Aneks kuchenny7.29
- 1.4 Pokój dzienny18.34
- 1.5 Pokój11.72
- 1.6 Łazienka4.66
- 1.7 Pom. techniczne3.22
Rzut poddasza
- 2.1 Korytarz2.07
- 2.2 Sypialnia 111.42
- 2.3 Garderoba3.60
- 2.4 Łazienka3.49
- 2.5 Sypialnia 213.52
- 2.6 Garderoba4.27
Przekrój
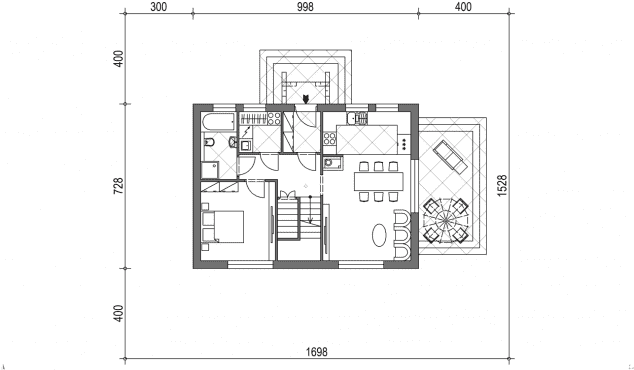
Usytuowanie na działce
Dane techniczne
- Powierzchnia użytkowa97.01 m²
- Powierzchnia zabudowy73 m²
- Liczba łazienek2
- Liczba pokoi3
- Długość domu7.28 m
- Szerokość domu9.98 m
- Wysokość domu7.55 m
- Minimalne wymiary działki16.98 x 15.28m
- GarażBez garażu
- Rodzaj dachuDwuspadowy
Instalacja grzewcza
- Instalacja opcjonalna
Zawartość projektu
Co zawiera projekt:
Projekt arch. - budowlany:
-część opisowa i rysunkowa:
- elewacje,
- rzuty,
- przekroje.
Projekt techniczny:
- konstrukcja:
- rzuty,
- przkroje,
- szczegóły konstrukcyjne
- zestawienie głównych materiałów konstr.
- założenia i wyniki obliczeń stat. – wytrz.
- instalacje: – schematy (z doborem urządzeń):
- ogrzewania,
- wentylacji,
- wody,
- kanalizacji,
- elektr.,
- dwie charakterystyki energetyczne dla dwóch źródeł ciepła.
Dodatki
Bezpłatne dodatki
GratisZestaw umów
GratisZmiany w projekcie
GratisTablica budowy
GratisDziennik budowy












